Home Tour: $100,000 Renovation for young creative couple’s 5-room HDB in Geylang East

A rare 1980s corner unit is reimagined through trust and friendship—becoming a couple’s first home filled with books, plants, music, and light.

Bathed in daylight and framed by greenery, the reconfigured flat feels open and welcoming from the moment you step inside.
Courtesy of Medium Specific. Photography by Accident.
Share this article

On the third floor of a low-rise block in Geylang East, sunlight filters in through leafy trees, softening the edges of a flat defined by its unusual geometry. This 5-room HDB, built in 1986, caught Elliot and Jeanette’s attention with its unusual geometry.

“I think it was the acute angle that kind of sealed the deal,” says Elliot, who admits it was love at first sight for him. “You rarely see a HDB with this kind of layout… What drew us to the place is the greenery outside the house. Almost every window looks out to greenery.”

Designed by Medium Specific’s interior designer Ulrich Chia, who also happens to be the Elliot’s lifelong friend, the 1,431 sq ft HDB flat has been given a thoughtful overhaul. “It was kind of automatically him,” Elliot shares. “We’ve been best friends our whole lives.”

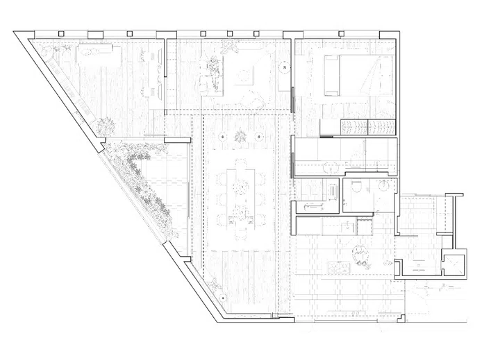
Floor plan of the flat, showing how the acute-angled corner shapes the dining, living and balcony zones.

Floor plan of the flat, showing how the acute-angled corner shapes the dining, living and balcony zones.

Courtesy of Medium Specific

For Ulrich, the project was equally personal: “As a result of the friendship I share with Elliot and Jeanette, I have somewhat of an intimate understanding of who they are, and what they like,” he says. “It was a real privilege to have them put their absolute trust in me.”

The result is a complete transformation of the 5-room HDB flat into a bright and flexible home. Celebrating the acute corner in its architecture while reflecting the couple’s creative pursuits and everyday rituals—from cooking and music to reading and gardening—the apartment now flows with ease from one room to another.

Who lives here: A creative couple in their 30s—Elliot, a freelance director of photography, and Jeanette, a senior producer
Home: 5-room resale HDB flat in Geylang East, built in 1986
Size: 1,431 sq ft
Interior Designer: Ulrich Chia, Medium Specific

The reoriented kitchen as a welcoming threshold, with its island stove designed for cooking, hosting, and even photoshoots.

The reoriented kitchen as a welcoming threshold, with its island stove designed for cooking, hosting, and even photoshoots.

Courtesy of Medium Specific. Photography by Accident.

Rent HDB for Photoshoots

The home’s most striking move comes at the entry, where the kitchen was expanded and reoriented to greet visitors immediately. For homeowner Elliot, the kitchen island with its front-facing stove was non-negotiable.

“Usually the stove faces the wall,” he explains, adding that they intend to rent out the house for photoshoots. “When I’m shooting at other people’s houses, it’s very annoying for me because I can’t shoot their profiles and faces when they’re facing the wall. So that was one of my big requests.”

Back to top

The stove on the island faces outward, allowing the hosts to cook while engaging with guests—or simply enjoying the view.

The stove on the island faces outward, allowing the hosts to cook while engaging with guests—or simply enjoying the view.

Courtesy of Medium Specific. Photography by Accident.

Kitchen as Threshold Concept

Interior designer Ulrich amplified this idea into what he calls a “kitchen-as-threshold concept”. He recalls being inspired by a restaurant in Spain where the kitchen sat up front.

“I remember being quite struck by how sensorially rich and intimate the experience was, and I wanted to recreate that in Elliot and Jeanette’s home.” he says. “When Elliot and Jeanette are hosting, it also allows them to interact with their guests while preparing a meal.”

Back to top

Design details extend the acute motif into the kitchen, most notably in the angled drawer pulls.

Design details extend the acute motif into the kitchen, most notably in the angled drawer pulls.

Courtesy of Medium Specific. Photography by Accident.

HDB with Odd Corners

The HDB flat’s unusual geometry—its sharp, penknife-like corner—became the guiding motif of the renovation.

Inteiror designer Ulrich distilled the acute angle into details both big and small: from the recessed handles of the kitchen cabinetry to the subtle lines and chamfers that guide the eye across the home.

“As a distinctive feature of the space, I knew I wanted to extract the unique layout of the flat by distilling it into the design language of the project,” he explains. By playing with the form across different scales, it becomes something the owners encounter every day.

Back to top

From the island, the eye travels straight through to the chamfered bulkhead and the living area beyond—a deliberate move to connect the spaces.

From the island, the eye travels straight through to the chamfered bulkhead and the living area beyond—a deliberate move to connect the spaces.

Courtesy of Medium Specific. Photography by Accident.

Hacked Walls

Walls were hacked to reveal the acute corner in its entirety, opening up sightlines from the front door to the furthest end of the HDB flat.

Parapet walls and carved openings further extend the sense of inclusivity, connecting adjacent rooms while keeping them distinct. “This gave an otherwise loose layout, a subtle articulation,” interior designer Ulrich adds.

Back to top

The dining area is anchored by a vintage rug and oversized paper lanterns, with greenery spilling in from the balcony and a sightline into the study.

The dining area is anchored by a vintage rug and oversized paper lanterns, with greenery spilling in from the balcony and a sightline into the study.

Courtesy of Medium Specific. Photography by Accident.

Large Dining Room Design

From the entry kitchen, the space opens into a dining area conceived for large gatherings. “Jeanette’s family is quite big—12 people altogether including us—so we wanted a very big dining table,” says Elliot. Today, the table not only hosts family dinners but also doubles as a flexible workspace when Jeanette works from home.

To give the room more presence, Ulrich manipulated the ceiling plane. “The ceiling heights of HDB flats are generally rather low. In order to create the illusion of an expansive living room, I had to introduce a juxtaposition with the spaces around it,” he explains.

By lowering the ceiling along the entryway, then angling the cornice above the dining room, he created a sense of release as you enter the dining area, making the space feel taller and more open.

Back to top

A chamfered bulkhead turns an awkward corner into a sculptural gesture while concealing air-conditioning conduits.

A chamfered bulkhead turns an awkward corner into a sculptural gesture while concealing air-conditioning conduits.

Courtesy of Medium Specific. Photography by Accident.

Bulkhead Ceiling Edge

In the dining area, the acute angle motif reappears in the chamfered bulkhead that runs along the ceiling’s edge. Concealing air-conditioning services while echoing the flat’s geometry, it contributes to the illusion of height and expansiveness.

Homeowner Elliot recalls how this detail took shape: “One day Ulrich came in and said, ‘why not let’s just do it like that?’ We would never have thought of that—it’s a pleasant surprise.”

Back to top

Walls were removed to connect the kitchen, dining, and living areas, establishing unobstructed sightlines across the flat.

Walls were removed to connect the kitchen, dining, and living areas, establishing unobstructed sightlines across the flat.

Courtesy of Medium Specific. Photography by Accident.

Balcony Design

Beside the dining sits the balcony—lovingly reinstated after the previous owners had absorbed it into the interior. For homeowners Elliot and Jeanette, bringing it back was non-negotiable. “Both of us garden,” Elliot shares. “Jeanette got me into plants. I added an auto misting system so we don’t really have to do much—just enjoy how it looks.”

Terracotta tiles were chosen here for their warmth and practicality. “I really like terracotta,” Elliot explains how he was inspired by Pinterest. “We decided on terracotta for the balcony because terracotta is quite durable… we wanted something hardy.” The balcony now thrives as a lush buffer between the interiors and the surrounding trees, intensifying the home’s connection to nature.

The acute motif resurfaces here too. A small window cut into the wall between the balcony and the study draws the eye diagonally across the flat, reinforcing its penknife-like geometry.

“I was able to express the acute corner in the plan with the insertion of a small window in the wall between the balcony and the study, thereby creating an unobstructed line of sight from the entrance of the unit to the furthest end of the room,” says Ulrich. This window frames multiple views at once—the greenery outside, the living area inside, and the acute angle that defines the unit.”

Back to top

A glimpse into the study from the balcony through the cut-out parapet window.

A glimpse into the study from the balcony through the cut-out parapet window.

Courtesy of Medium Specific. Photography by Accident.

Study Room Design

The study sits at the flat’s most dramatic acute angle, where the triangular plan converges into a sharp corner. Rather than disguising it, homeowners Elliot and Jeanette embraced the geometry, filling the room with their passions.

Floor-to-ceiling shelves line one plane with a lifetime of books, while guitars, amplifiers, and music gear claim the other—Elliot plays in a band, and this space doubles as his personal jamming studio.

Guitars, books, and art converge in the flat’s sharpest corner—a flexible room that doubles as a creative retreat and a workout space, reflecting the couple’s evolving pursuits.

Guitars, books, and art converge in the flat’s sharpest corner—a flexible room that doubles as a creative retreat and a workout space, reflecting the couple’s evolving pursuits.

Courtesy of Medium Specific. Photography by Accident.

Jeanette’s creativity finds its place here too. “Some of the art pieces are done by Jeanette,” Elliot proudly shares. “The one beside my amp is done by Jeanette... The books are her precious items, her babies, so she organises them like a library.” The result is a study that feels more like a lived-in atelier: a mix of literature, sound, and colour that constantly evolves as they add to their collections.

Back to top

Collected rather than curated, the living room grows from a rust-hued sofa and bookshelves into a layered space shaped by Carousell finds, spontaneous purchases, and personal mementoes.

Collected rather than curated, the living room grows from a rust-hued sofa and bookshelves into a layered space shaped by Carousell finds, spontaneous purchases, and personal mementoes.

Courtesy of Medium Specific. Photography by Accident.

Living Room Design

The living room carries the most personal imprint of Elliot and Jeanette’s evolving style. Rather than buying everything new to a strict colour scheme, the couple assembled the space organically over time—a mix of spontaneous buys, Carousell finds, and personal items.

“Basically, the colours and furniture bring out our personalities. I wouldn’t say we have any favourite colours,” Elliot muses. “We’ll browse and think, ‘Actually this might suit the house.’ Then we’ll buy and try it on, so it’s very organic.”

This approach lends the space an eclectic warmth: a low, rust-hued sofa anchors the space, while shelves spill over with books, records, and mementoes. Even the coffee table, picked up second-hand on Carousell, has become a centrepiece that ties their TV meals to this ethos of reuse.

“We’ll eat in the living room sometimes, eat and watch TV,” Elliot adds. “Our TV is movable so we’ll roll it out to the living room if we want to watch there, or back to the bedroom if we want to watch there.”

Back to top

Jeanette designed the common bathroom, opting for playful colour contrasts including a navy sinktop.

Jeanette designed the common bathroom, opting for playful colour contrasts including a navy sinktop.

Courtesy of Medium Specific. Photography by Accident.

Bathroom Design

The HDB flat’s two bathrooms were reworked with a restrained palette that balances warmth and utility, but each carries a distinct personality shaped by its interior designer.

“For the toilets, I feel like the two designs are quite different,” Elliot reflects. “Jeanette designed the toilet in the kitchen because she likes more playful colours. Actually, it was meant to be green, but they didn’t have enough of the tiles we wanted… So we went with navy blue sink top tiles instead.”

The result is a common bathroom that feels textured and lively, with vertical brown tiles and a deep-blue counter lending rhythm and warmth. It ties back to the terracotta of the kitchen and balcony while embracing a slightly more playful character.

Back to top

 Muted tiles and integrated lighting give the master bathroom a calm and pared-back atmosphere.

Muted tiles and integrated lighting give the master bathroom a calm and pared-back atmosphere.

Courtesy of Medium Specific. Photography by Accident.
Vertical brown tiles introduce warmth and texture, balanced by simple fittings.

Vertical brown tiles introduce warmth and texture, balanced by simple fittings.

Courtesy of Medium Specific. Photography by Accident.

Master Bathroom Design

The master bathroom, on the other hand, bears Elliot’s hand. Here, large-format tiles in muted tones and integrated mirror lighting create a calm, pared-down backdrop. The clean lines of the vanity and basin prioritise clarity and function, offering a counterpoint to the common bath’s tactile palette.

Together, the pair highlight how even within a cohesive home, subtle design differences reflect individual personalities—one contemplative and minimal, the other warm and expressive.

Back to top

Framed by trees, the couple look out from their Geylang East flat — a home redefined by acute geometry, trust, and years of friendship.

Framed by trees, the couple look out from their Geylang East flat — a home redefined by acute geometry, trust, and years of friendship.

Courtesy of Medium Specific. Photography by Accident.

$100,000 Renovation Cost

The renovation itself took three to four months and cost $100,000 for the core works, excluding furniture and appliances. Yet the process was not without hurdles. “There had been major delays with HDB’s approval of the demolition works due to a structural stiffener that was embedded in one of the walls. The delay on HDB’s end caused us to push back the construction,” interior designer Ulrich recalls.

Despite the challenges, homeowner Elliot describes the renovation as an unusually fluid collaboration. Having been friends for years, he and Ulrich were able to navigate unexpected site conditions with humour and trust, letting the design evolve along the way. The result is a home that reflects both the architect’s sensitivity to space and the couple’s instinctive, organic approach to furnishing.

“We’re happy,” homeowner Elliot says simply. What began as a flat defined by its awkward acute angle has become a warm, characterful home—one shaped as much by friendship as by design.

Back to top

Share this article