AMO Residence Review: 10 pros & cons of this new Ang Mo Kio condo

AMO Residences exterior aerial view. Image from AMO Residences website
AMO Residences exterior aerial view. Image from AMO Residences website
Share this article

Ang Mo Kio is a popular neighbourhood that many consider to be on the city fringe. Residents love the area for its well-loved eateries and the sprawling Bishan-Ang Mo Kio Park. New 99-year leasehold condo AMO Residence, expected to receive its Temporary Occupation Permit (TOP) in 2026, offers the chance to live in this vibrant neighbourhood.

Developed by UOL Group, Singapore Land Group and Kheng Leong Company, AMO Residence is located in District 20 at Ang Mo Kio Rise, a stone’s throw from the scenic Bishan-Ang Mo Kio Park and about 11 minutes’ walk from Mayflower MRT. This attractive location in a sought-after neighbourhood justifies the condo’s relatively high prices.

AMO Residence Condo Review (Summary Table)

AMO Residence SingaporeCondo Details
TOP Date31 December 2026
Location21 Ang Mo Kio Rise
Showflat21 Ang Mo Kio Rise
Balance Units1
Launch Price$2,100 psf average
Current Price$1,871,520 to $5,878,000 ($2,027 psf to $2,629 psf)
Total units372
Freehold/ Lease99-year leasehold
AmenitiesSwimming pools, aqua gym, tennis court, kid’s play area, barbecue pits
MRTMayflower MRT Station
Bus service132, 165, 166, 169, 262

*Information from 99.co, Propertyguru, and other property listing websites is accurate as of time of writing.

AMO Residences Price

At AMO Residence’s launch in July 2022, 98% of the available units were sold at an average price of about $2,100 psf. Part of the hype was due to it being the first major private development in Ang Mo Kio in over eight years.

Today, half a year later, almost all units have been purchased from the developer, with some being put up for sale at $1,871,520 to $5,878,000 ($2,027 psf to $2,629 psf) on PropertyGuru.

It is too early to comment on the capital gains enjoyed by investors, and as the development is still under construction, rental prices and yield are unavailable.

For comparison’s sake, let’s look at The Panorama, a 99-year leasehold condo located on Ang Mo Kio Avenue 2 about 10 minutes’ walk from Mayflower MRT. Units at The Panorama, which received its TOP in 2019, are currently selling for $818,000 to $2,500,000, which works out to a psf price of $1,782 to $2,150. We can thus see that prices of AMO Residence units are a bit higher, which is to expected given that it is a bit newer.

Back to top

AMO Residences site plan. Image from AMO Residences Brochure

AMO Residences site plan. Image from AMO Residences Brochure

AMO Residence Brochure

You can find the PDF brochure here. It enables you to take a peek at illustrations of the common areas and units and find out more about the shared amenities. You can also consult the floor plans of the various units.

You can find the AMO Residence balance units chart here. At the time of writing, there is only one penthouse unit still unsold.

Back to top

You will take 12 minutes to walk from Mayflower MRT Station (TE6) to AMO Residences. Image from Google Maps

You will take 12 minutes to walk from Mayflower MRT Station (TE6) to AMO Residences. Image from Google Maps

Location

Located at 21 Ang Mo Kio Rise, 11 minutes’ walk from Mayflower MRT station, AMO Residence occupies an attractive location in Ang Mo Kio, itself a sought-after city fringe neighbourhood.

The condo is a stone’s throw from the Bishan-Ang Mo Kio Park, one of the biggest and best-loved parks in Singapore, which in my opinion is great as it offers respite from the hustle and bustle of the city. It is also situated within a short distance from Lower Pierce Reservoir, offering abundant access to nature.

Near Sembawang Hills Food Centre

Another thing I like about AMO Residence is that it is within walking distance of lots of good food options, including Mellben Seafood and Sembawang Hills Food Centre.

The location is also convenient for families with kids as there are many schools in the area, including Mayflower Secondary School, Ang Mo Kio Primary School, Pierce Secondary School and Eunoia Junior College

Overall, I find AMO Residence’s location highly desirable as it is not far from the city centre and also has a range of attractive amenities, particularly related to food and nature.

Back to top

AMO Residences Floor Plan for a 2-bedroom (type B1) condo unit spanning 614 sq ft. Image from AMO Residences website

AMO Residences Floor Plan for a 2-bedroom (type B1) condo unit spanning 614 sq ft. Image from AMO Residences website

AMO Residence Floor Plan

You can find the floor plans here. The condo development consists of 2-bedroom, 3-bedroom, 4-bedroom and 5-bedroom units. All units come with a balcony.

2-Bedroom Condo Unit Floor Plan

The 2-bedroom units do not place the master bedroom and the common room side-by-side. They are either separated by the living room or a bathroom, which offers greater privacy. There are also premium 2-bedroom units that come with two bathrooms instead of just one. This can be useful for those who wish to rent out the rooms separately.

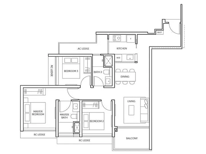
AMO Residences floor plan for a 3-bedroom (Type C1) condo unit spanning 958 sq ft. Image from AMO Residences website

AMO Residences floor plan for a 3-bedroom (Type C1) condo unit spanning 958 sq ft. Image from AMO Residences website

3-Bedroom Condo Unit Floor Plan

The 3-bedroom units offer the option of including a study. There are also 3-bedroom premium units with a second bathroom, some with a separate WC.

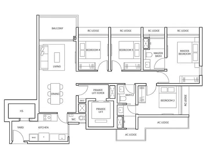
AMO Residences floor plan for a 4-bedroom (type D1) condo unit spanning 1,292 sq ft. Image from AMO Residence website

AMO Residences floor plan for a 4-bedroom (type D1) condo unit spanning 1,292 sq ft. Image from AMO Residence website

4-Bedroom Condo Unit Floor Plan

The 4-bedroom and 5-bedroom units are much more luxurious. They are equipped with a private lift that goes right up to the unit, as well as both a dry and wet kitchen. I think these units will be popular amongst those who are looking for a very luxurious feel at a relatively affordable price.

Back to top

AMO Residence Rent

AMO Residence is still under construction, so there is no information on rents at the moment.

3-bedroom units at The Panorama measuring 1,001 to 1,141 sq ft are currently commanding rents of $5,000 to $5,800. Such units are selling for about $2,080,000 to $2,500,000. AMO Residence, whose 3-bedroom units measure 958 to 1,141 sq ft will probably command comparable rents. This rental yield, in my opinion, is not that great.

Back to top

AMO Residence Condo Review

If you’re like me and covet an attractive city fringe location with good food options and access to nature, AMO Residence is a great option. There’s also lots to like for families with kids, with a decent selection of schools and Bishan-Ang Mo Kio Park so nearby.

One drawback is that due to its proximity to the city centre, the units are quite pricey. The rental yield is also nothing to shout about, especially considering the current high interest rate environment. So, this is not the best choice if you’re mainly buying it as an investment property to rent out.

Overall, AMO Residence is a good buy if you’re mainly looking for a home to live in and are willing to pay for a good location.

Pros of AMO Residences:

  • Attractive city fringe location
  • Walking distance to MRT station
  • Lots of good food options nearby
  • Very near Bishan-Ang Mo Kio Park
  • Easy access to nature
  • Decent selection of schools in the area
  • 4-room and 5-room units come with private lift

Cons of AMO Residences:

  • Pricey
  • Unexceptional rental yield
  • No one-bedroom units

Back to top

Share this article