8@BT Condominium Review: Next door to Beauty World MRT station

Artist's impression of 8@BT Condo.
Image 8at-bt Official Website
Share this article

8@BT Condominium is one of several new housing projects transforming the area surrounding Beauty World MRT station.

52.5% of the 158 units at the 99-year leasehold condo were sold at its launch on 21 September 2024, making it one of the year’s best-performing launches so far.

The development, helmed by Bukit Sembawang Estates Limited, will be located on Bukit Timah Link off Jalan Anak Bukit in District 21, right next door to Beauty World MRT Station. The condo is expected to receive its Temporary Occupation Permit (TOP) in 2027.

8@BT Condominium Review (Summary Table)

8@BT CondominiumDetails
TOP DateQ4 2027
Location6 Bukit Timah Link, Singapore 589943
Showroom398 Telok Kurau Road, Singapore 423902
Balance Units70
Launch PriceFrom $2,530 psf
Current Price$1,380,000 to $5,500,000 ($2,100.53 psf to $3,452.61 psf)
Total units158
Freehold/ Lease99-year leasehold
AmenitiesSwimming pools, gym, fitness room, barbecue pits, meeting room
MRTBeauty World
Bus service41, 52, 61, 66, 77, 157, 173, 174, 174E, 871, 970, 985

*Information from 99.co, PropertyGuru, and other property listing websites is accurate as of time of writing.

Artist's impression of aerial view of the 8@BT condo vicinity.

Artist's impression of aerial view of the 8@BT condo vicinity.

Image 8at-bt Official Website

8@BT Condominium Price

At 8@BT’s launch on 21 September 2024, units were sold at a starting price of $2,530 psf, and an average price of $2,719 psf.

At the moment, units are being sold for $1,380,000 to $5,500,000, or a psf price of $2,100.53 to $3,452.61 psf.

3-bedroom units measuring 1,001 to 1,163 sqft at 8@BT are currently selling for $2,480,000 to $3,081,000, or $2,477.52 psf to $2,830.17 psf.

For comparison’s sake, let’s look at nearby freehold condo The LINQ @ Beauty World, located at Upper Bukit Timah Road, also next door to Beauty World MRT station. The project was launched in 2020 and will obtain its TOP in 2025.

3-bedroom units at The LINQ @ Beauty World measuring 958 sqft are being put up for subsale for $2,750,000 to $2,790,000 ($2,879.56 to $2,912.32 psf) on PropertyGuru. These units have enjoyed good capital gains, partly due to being launched in 2020 during a property market slump caused by the COVID-19 pandemic.

That said, due to the ongoing rejuvenation of the Beauty World area and the new amenities in the works, including an integrated transport hub and new community spaces, properties in the area are likely to enjoy good potential for capital gains in the coming years.

Artist's impression of the 8@BT condo site plan.

Artist's impression of the 8@BT condo site plan.

Image 8@BT brochure

8@BT Condominium Site Plan

You can find the 8@BT Condominium site plan via the e-brochure here.

On the site plan, you can see the layout of the residential blocks and shared amenities within the development.

The medium-sized development has basic, no-frills shared amenities such as swimming pools, barbecue pits and a fitness room.

8@BT is a 4-minute walk from the nearest Beauty World MRT Station.

8@BT is a 4-minute walk from the nearest Beauty World MRT Station.

Screengrab from Google Maps

8@BT Condominium Location

The development is located at 6 and 8 Bukit Timah Link, with Jalan Jurong Kechil bordering it on the other side.

It is located just across the road from Beauty World MRT station, accessible in about two minutes on foot. Since opening in 2015, the MRT station has been a game changer in an area that was previously accessible only by bus and private transport. A new bus interchange is expected to be integrated with the MRT station in 2028.

8@BT is located at the most bustling part of Upper Bukit Timah, a stone’s throw from the upcoming Bukit Timah Community Building, which will house the Market & Hawker Centre and Community Club. It is expected to open in the second half of 2029.

It is also located an easy walking distance from the area’s main amenities, which include Bukit Timah Plaza, Beauty World Centre and the many eateries on Chun Tin Road and Cheong Chin Nam Road. The current Bukit Timah Food Centre is home to many popular eateries, and will be moved to the new Bukit Timah Community Building in 2029.

The development is also located close to many choice schools, including Methodist Girls’ School, Pei Hwa Presbyterian Primary School, Bukit Timah Primary School and Ngee Ann Polytechnic, and also enjoys quick access to Bukit Timah Road and its many elite schools.

I think this location is a fantastic one as it is extremely near the MRT station and bus interchange, as well as incredibly close to all the neighbourhood’s key amenities. For investors, the upcoming developments in the area are likely to give capital gains a big boost.

According to feng shui, the residential portion of 8@BT is build on triangular land, which may not be the best for home life, but can be beneficial to some people’s careers and businesses until the year 2043.

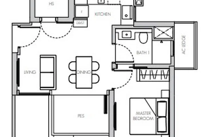
8@BT Condo 1-Bedroom TYPE A1(p) 55 sq m / 592 sq ft #01-07 floor plan.

8@BT Condo 1-Bedroom TYPE A1(p) 55 sq m / 592 sq ft #01-07 floor plan.

Image 8@BT Brochure

8@BT Condominium Floor Plan

You can find the 8@BT Condomium floor plans here via the e-brochure.

8@BT consists of 1-bedroom, 2-bedroom, 3-bedroom, 4-bedroom and penthouse units.

1 Bedroom

The 1-bedroom units measure 48 sqm (517 sqft) or 55 sqm (592 sqft). The entrances open up into the living and dining area, with an open kitchen. The bathroom is accessible from the living and dining area rather than the bedroom, which makes it convenient for those who receive guests.

8@BT Condo 2-Bedroom TYPE B2(p) 77 sq m / 829 sq ft #01-05 floor plan.

8@BT Condo 2-Bedroom TYPE B2(p) 77 sq m / 829 sq ft #01-05 floor plan.

Image 8@BT Brochure

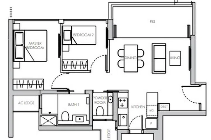
2-Bedroom

The 2-bedroom units measure 58 sqm (624 sqft) to 77 sqm (829 sqft). Each of the layouts lines up the bedrooms side by side, and the two bathrooms (the ensuite bathroom attached to the master bedroom and the shared bathroom) are located side by side on the other side of the corridor. This is a fairly typical layout Singapore residents should be familiar with.

8@BT Condo 3-Bedroom TYPE C1(p) 95 sq m / 1023 sq ft #01-01 floor plan.

8@BT Condo 3-Bedroom TYPE C1(p) 95 sq m / 1023 sq ft #01-01 floor plan.

Image 8@BT Brochure

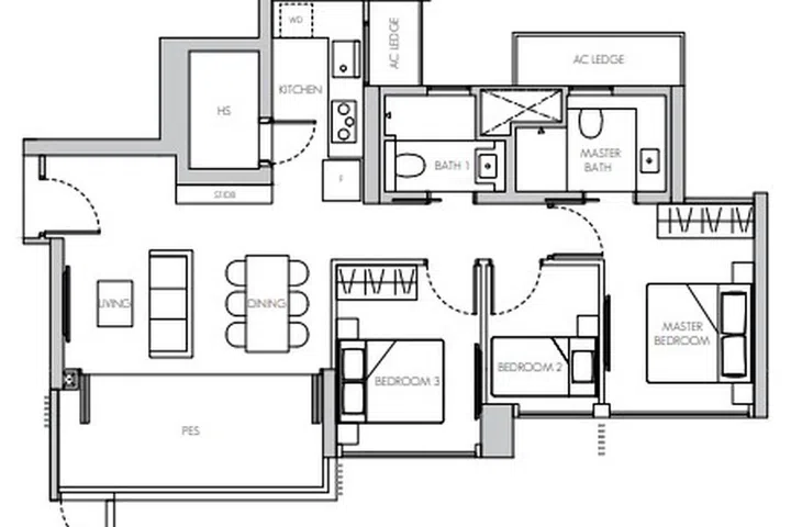
3-Bedroom

The 3-bedroom units measure 93 sqm (1,001 sqft) to 118 sqm (1,270 sqft). Again, the layouts are quite typical in my opinion, with the three bedrooms lined up in a row. The living rooms in the ground floor units have an attached private enclosed space, while those on the second floor and above are equipped with a balcony.

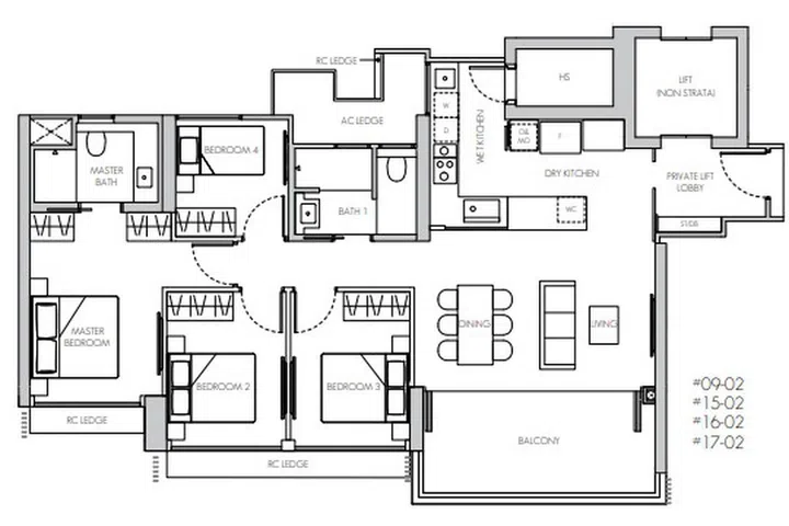
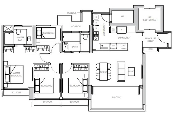
8@BT Condo 4-Bedroom TYPE D1 126 sq m / 1356 sq ft #09-02 - #19-02 floor plan.

8@BT Condo 4-Bedroom TYPE D1 126 sq m / 1356 sq ft #09-02 - #19-02 floor plan.

Image 8@BT Brochure

4-Bedroom

The 4-bedroom units measure 126 sqm (1,356 sqft) or 148 sqm (1,593 sqft) and come with a balcony and private lift lobby. Each unit comes with a master bathroom and a shared bathroom. I like that the shared bathroom is quite spacious, and is big enough to house either a bathtub or powder room.

8@BT Penthouse TYPE PH1 126 sq m / 1356 sq ft #20-02 floor plan.

8@BT Penthouse TYPE PH1 126 sq m / 1356 sq ft #20-02 floor plan.

Image 8@BT Brochure

Penthouse

The penthouse units measure 126 sqm (1,356 sqft) or 148 sqm (1,593 sqft). The smaller units house five bedrooms, while the larger units have an enormous master bedroom that includes a living area and a study, and a smaller second bedroom. The former would be more suitable for larger families, the latter for smaller households.

Artist's impression of 8@BT Condo swimming pool.

Artist's impression of 8@BT Condo swimming pool.

Image 8at-bt Official Website

8@BT Condominium Rent Price

8@BT is still a long way away from completion, so none of the units have been rented out.

But we can have a look at rents in the area to get an idea of how much 8@BT units could potentially command one day.

2-bedroom units measuring 657 to 1,206 sqft at The Creek @ Bukit, located on Toh Tuck Road about a ten-minute walk from Beauty World MRT station, are being put up for rent on PropertyGuru for $3,800 to $4,950.

When compared to 8@BT prices, the rental yield is not great. But 8@BT has the potential to enjoy higher rents in a few years’ time due to its proximity to the MRT station and the increasing attractiveness of the area.

Artist's impression of 8@BT condo garden.

Artist's impression of 8@BT condo garden.

Image 8at-bt Official Website

8@BT Condominium Review

The formerly sleepy Beauty World area in Upper Bukit Timah is undergoing a big transformation, and 8@BT enjoys a highly central location poised to benefit from all the new amenities that will be popping up in the coming years. For investors, that could translate to great potential for capital gains.

I also think that 8@BT enjoys a fantastic location, a stone’s throw from the MRT station in a neighbourhood that is becoming more and more attractive as the rejuvenation of the area progresses.

Share this article