Bagnall Haus Condo Review: First freehold condo launch in East Coast in 15 years

Image Bagnall Haus/ Google Map
Share this article

Bagnall Haus sounds like the name of a manor nestled in a European forest, complete with butler. But nope, it’s actually an upcoming freehold condo on Upper East Coast Road. Some might argue that that’s even better, since buyers tend to get all excited about freehold property due to its more lasting investment potential.

Bagnall Haus was launched on 18 January 2025 by Roxy-Pacific Holdings, and is expected to receive its Temporary Occupation Permit (TOP) in 2028. It is located a seven-minute walk from the future Sungei Bedok MRT station, which will be an interchange for the Thomson East-Coast and Downtown Lines, expected to open in 2026.

Bagnall Haus is not to be confused with Bagnall Court. Bagnall Court is the freehold condo previously occupying the land on which Bagnall Haus is being built. Acquired in an en bloc sale in 2023 at a land price of $115.3 million, or $1,106 psf per plot ratio (ppr), including 8% bonus gross floor area, Bagnall Court will be replaced by the brand new Bagnall Haus.

Bagnall Haus’s launch comes at a time when there are lots of other high profile launches in popular, established neighbourhoods jostling for attention, such as The Orie, Parktown Residence, Lentor Central and Meyer Blue.

Despite the competition, Bagnall Haus managed to sell 60% of its units over its launch weekend at an average price of $2,490 psf. And no wonder—it was the first freehold launch in East Coast in 15 years. Let’s have a closer look at this property.

  1. 1. Bagnall Haus Condo Price
  2. 2. Bagnall Haus Condo Site Plan
  3. 3. Bagnall Haus Condo Location
  4. 4. Bagnall Haus Condo Floor Plan
  5. 5. Bagnall Haus Condo Rent Price
  6. 6. Bagnall Haus Condo Review
Bagnall Haus CondoDetails
TOP Date31 December 2028
Location811 Upper East Coast Road, Singapore 466610
ShowflatUpper East Coast Road
Launch Price$2,490 psf on average
Current Price$1,145,000 to to $3,600,000 ($2,309.80 to $2,610.10 psf)
Total units113
Freehold/ LeaseFreehold
AmenitiesSwimming pool, gym, playground
MRTSungei Bedok MRT Station
Bus service10, 10E, 14, 14A, 45

*Information from 99.co, PropertyGuru, and other property listing websites is accurate as of time of writing.

位于东海岸路上段的私宅项目Bagnall Haus外观。Bagnall Haus是由永久地契项目Bagnall Court重新发展的项目,将于2025年1月18日开卖。
SPH Media Limited

Bagnall Haus Condo Price

On Bagnall House’s launch date on 18 January 2025, units were priced at $1.235 million onwards for one-bedroom + flexi units. The average price of units sold was $2,490 psf.

Currently, Bagnall Haus units are priced at $1,145,000 for 1-bedroom units measuring 495 sqft to $3,600,000, for 5-bedroom units measuring 1,528 sqft. This translates to a psf price of $2,309.80 to $2,610.10 psf.

For comparison’s sake, 3-bedroom units measuring 872 sqft to 904 sqft at Sea Pavilion Residences, another freehold condo on Upper East Coast Road, a nine-minute walk from Bayshore MRT station, are currently being put up for sale on PropertyGuru for $1,850,000 to $2,100,000, or $2,121.56 psf to $2,323.01 psf. This condo received its TOP in 2023.

As you can see, these prices are a little below Bagnall Haus’s, where 3-bedroom apartments measuring 980 sqft have been priced at $2,306,000 and above, or $2,353 psf onwards.

Resale prices of property in the Upper East Coast area have been fairly robust ever since the COVID-19 property boom. Given the growing popularity of Bayshore as a residential area, with new MRT stations and housing projects in the works, homeowners may stand to benefit further in terms of capital gains.

Bagnall Haus Condo Site Plan

You can find the Bagnall Haus site plan here. The site plan enables you to see the layout of the various amenities in the Bagnall Haus estate.

As this is a small boutique condo development with only 113 units, the range of amenities on offer is also quite simple, with just one 25m lap pool, a gym and children’s playground.

The advantage is that there are only three low-rise blocks, making it feel less congested than larger developments.

Image Google Map

Bagnall Haus Condo Location

Bagnall Haus is located on Upper East Coast Road, a seven-minute walk from the future Sungei Bedok MRT station, which will open before the first batch of buyers collects their keys.

The development is actually located at the easternmost end of Upper East Coast Road, where it merges into Bedok Road, with the famous Bedok Food Centre, also known as Bedok Corner, located right next door.

This is a great location for those who like joggling and cycling, as there is a park connector nearby that leads to East Coast Park, with its many scenic and recreational offerings, such as barbecue pits and campsites.

However, it’s important to remember that this is a small boutique condo in a quiet, low density area. So, there are no big shopping malls in the immediate vicinity.

For families with kids, there is only one primary school, Temasek Primary School, located within easy walking distance. But to be fair, there are some highly sought-after schools located a 5- to 10-minute car ride away, including Anglican High School, Victoria School and Victoria Junior College.

Overall, I would say Bagnall Haus’s location strikes a good balance between low density living and accessibility, with the upcoming Sungei Bedok MRT station playing a big role in boosting connectivity.

In the future, Bagnall Haus could benefit greatly from the rejuvenation of the Bayshore estate, about half an hour’s walk away, which will be home to a whole host of new amenities, including shops, eateries and green spaces.

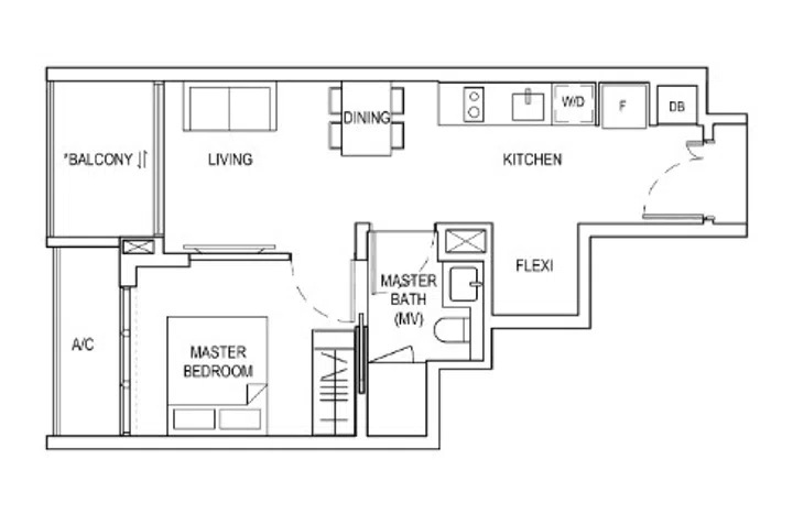
Bagnall Haus condo 1-bedroom + flexi (Type A1) 46 sqm floor plan.

Bagnall Haus condo 1-bedroom + flexi (Type A1) 46 sqm floor plan.

Image Bagnall Haus Official Condo Website

Bagnall Haus Condo Floor Plan

You can find the Bagnall Haus floor plans here. Bagnall Haus consists of 1-bedroom to 5-bedroom units.

1-Bedroom

The 1-bedroom apartments are all “flexi” units measuring 46 sqm, and offer a nook opening out into the kitchen that can be used as a study, dining area or for some other use.

Bagnall Haus Condo 2-bedroom (Type B1A) 71 sqm floor plan.

Bagnall Haus Condo 2-bedroom (Type B1A) 71 sqm floor plan.

Image Bagnall Haus Official Condo Website

2-Bedroom

The 2-bedroom units measure 69 to 75 sqm, with some “flexi” units offering additional space in the living/dining area or as a separate nook that can be repurposed as a study or other space. Some layouts place the two bedrooms side by side, while others place the living/dining area in between the two bedrooms. There are also 2-bedroom + guest units which include a third, smaller guest bedroom that can accommodate a single bed.

Bagnall Haus Condo 3-bedroom (Type D1) 91 sqm floor plan.

Bagnall Haus Condo 3-bedroom (Type D1) 91 sqm floor plan.

Image Bagnall Haus Official Condo Website

3-Bedroom

The 3-bedroom apartments are all flexi units measuring 91 to 96 sqm. What I find interesting about these layouts is that they all ensure that one bedroom does not share a dividing wall with any of the other bedrooms, offering greater privacy.

Bagnall Haus Condo 4-bedroom (Type E1A) 116sqm floor plan.

Bagnall Haus Condo 4-bedroom (Type E1A) 116sqm floor plan.

Image Bagnall Haus Official Condo Website

4-Bedroom

The 4-bedroom apartments measure 116 sqm. Like the 3-bedroom apartments, there is one bedroom that does not share a dividing wall with another bedroom, offering greater privacy.

Bagnall Haus Condo (Type F1) 5-bedroom 142 sqm floor plan.

Bagnall Haus Condo (Type F1) 5-bedroom 142 sqm floor plan.

Image Bagnall Haus Official Condo Website

5-Bedroom

The 5-bedroom units measure 142 sqm, lining up all five bedrooms in a row or in a semi-circular formation, with the living room on the other side. This clear separation between the shared areas and bedrooms can be practical for a bigger household who spends a lot of time in the communal spaces.

Bagnall Haus Condo Rent Price

Let’s have a look at rents in the area to guesstimate what types of rents Bagnall Haus will be able to command when it is built.

At Fairmont Condo, a condo located a three-minute walk from upcoming Sungei Bedok MRT station, 3-bedroom apartments measuring 1,959 sqft are being advertised for rent on PropertyGuru for $5,500.

In my opinion, Bagnall Haus is not the ideal choice if you’re mainly purchasing it for rental income, as rental yields in the area are acceptable but not particularly high.

Bagnall Haus Condo Review

Bagnall Haus is ideal for those who crave the kind of low density living a boutique condo offers and are fine with simpler condo amenities and a less central location.

That said, while low density developments tend to be in inaccessible or poorly-served areas, I do think Bagnall Haus enjoys a fairly well-connected location thanks to the proximity of the upcoming Sungei Bedok MRT station and a good selection of food options. East Coast Park being nearby also boosts the attractiveness of the site.

The rejuvenation of the Bayshore area will also boost the range of nearby shopping and dining amenities further and could potentially raise investors’ capital gains.

Share this article