ELTA Clementi Condo Review: Great amenities but comes at a price

ELTA a new 501-unit residential development located in the heart of Clementi, will be unveiled for preview from 7 February 2025, with the public sales launch on 22 February 2025.
MCL LAND
Share this article

Clementi is one of the most sought-after neighbourhoods in the west of Singapore, and the only one previously classified as a mature estate by the HDB.

So, it’s unsurprising that upcoming 99-year leasehold condo ELTA on Clementi Avenue 1 has seen strong interest, with 326 out of 501 units (about 65%) sold at the launch by MCL Land and CSC Land Group on 22 February 2025.

Clementi could well see an even greater surge in popularity in the future, as there are plans to turn Clementi MRT station, which currently serves the East West Line, into an interchange which also connects to the Cross Island Line. Stations on the Cross Island Line are expected to open by 2032.

That said, ELTA condo buyers should take note that the government is considering redirecting a portion of the Ayer Rajah Expressway (AYE) in order to make room for the development of Jurong Lake Gardens. If such plans should take shape, the stretch of the AYE serving Clementi could be affected.

  1. 1. ELTA Clementi Condo Price
  2. 2. ELTA Clementi Condo Site Plan
  3. 3. ELTA Clementi Condo Location
  4. 4. ELTA Clementi Condo Floor Plan
  5. 5. ELTA Clementi Condo Rent Price
  6. 6. ELTA Clementi Condo Review
ELTA Clementi CondoDetails
TOP Date2028
Location10 Clementi Avenue 1, Singapore 129633
ShowflatOpposite 111 Prince Charles Crescent, Singapore 159022
Launch Price$2,537 psf on average
Current Price$1,062,000 to $4,600,000 ($1,658 to $2,808 psf)
Total units501
Freehold/ Lease99-year leasehold
AmenitiesSwimming pools, tennis court, gym, sky bridge
MRTClementi MRT Station
Bus service97, 97E, 188, 189, 196, 197, 198, 963

*Information from 99.co, PropertyGuru, and other property listing websites is accurate as of time of writing.

ELTA a highly anticipated new residential development at Clementi, which attracted about 4,500 prospective buyers to its show flat during its first preview weekend from 7 to 9 February 2025.

ELTA a highly anticipated new residential development at Clementi, which attracted about 4,500 prospective buyers to its show flat during its first preview weekend from 7 to 9 February 2025.

MCL Land

ELTA Clementi Condo Price

At its launch on 22 February 2025, ELTA prices started from $1.16 million ($2,288 psf) for 1-bedroom units measuring 506 sqft. 2-bedroom units measuring 614 to 807 sqft were priced at $1.39 million ($2,260 psf) onwards, 3-bedroom units measuring 926 to 1,023 sqft at $2.2 million onwards ($2,373 psf) and 4-bedroom units measuring 1,184 to 1,507 sqft at $2.8 million ($2,363 psf) onwards.

The average psf price for units sold at the launch was $2,357 psf.

Currently, ELTA units can be found for sale on PropertyGuru for $1,062,000 to $4,600,000 ($1,658 to $2,808 psf).

ELTA is affected by the new GFA-harmonisation rules, which affects the calculation of unit size. Developers can no longer count certain types of spaces, such as air con ledges and void spaces in high ceiling units, as part of the total unit size, forcing them to be more efficient with unit design.

That said, ELTA is spricey compared to older condos in the area.

Take Clavon, for instance, another condo on Clementi Avenue 1 located a 13-minute walk from Clementi MRT station. Units at the 99-year leasehold condo, which received its TOP in 2024, are currently being put up for sale on PropertyGuru for $1,050,000 to $4,000,000, or $1,937 to $2,598 psf. 3-bedroom units at Clavon measuring 958 sqft are going for $2,050,000 to $2,488,888, or $2,140 psf to $2,598 psf.

ELTA Clementi Condo Site Plan

You can find the ELTA site plan here. The site plan shows the layout of the residential blocks and the various shared amenities at ELTA.

With 501 units spread out over two blocks, ELTA is considered a mid-sized development.

Amenities include swimming pools, a tennis court, a gym and a communal sky bridge. ELTA lacks the wide range of amenities that larger developments offer, but does have most of the “must-haves”, including multiple swimming pools and a gym.

ELTA Clementi condo is a long 16-minute walk from the nearest Clementi MRT Station.

ELTA Clementi condo is a long 16-minute walk from the nearest Clementi MRT Station.

Image Google Map

ELTA Clementi Condo Location

ELTA is located on Clementi Avenue 1 in District 5. The nearest MRT station is Clementi which, together with Clementi Mall (which houses Clementi Public Library), is located a 17-minute walk away—a bit too far to be considered within comfortable walking distance. Residents heading to the city centre might find it easier to rely on direct buses.

Clementi is an amenity-packed mature estate with lots to offer in terms of shopping and food. Other than Clementi Mall, residents will also be able to walk to Grantral Mall next door, 321 Clementi and the Clementi Central HDB estate.

Other amenities located within walking distance include Clementi Swimming Complex and Clementi Stadium.

Another of ELTA’s strong points is its proximity to many schools, including the prestigious Nan Hua High School and NUS High School of Math and Science, which are located just across the road.

A short drive or bus ride away, families will find not only numerous primary and secondary schools, including Clementi Primary School, Clementi Town Secondary School, Nan Hua Primary School and School of Science and Technology, but also institutions of higher learning like Singapore Polytechnic, Singapore Institute of Technology, National University of Singapore and Singapore University of Social Sciences.

Other than the distance from the MRT station, the main weak point of this location is that ELTA overlooks the AYE, which could make it vulnerable to noise and air pollution. If the government decides to divert the AYE, residents could also find themselves having to tolerate a period of construction. Choosing a unit that faces away from the AYE is thus important.

Besides these bugbears, I think this is an amenity-rich location suited to those who are looking for a vibrant neighbourhood with plenty to see, do and eat, and who preferably have their own transport. It is also convenient for those who work at nearby schools or in the Ayer Rajah and One North area.

From an investor’s point of view, the opening of the future Circle Line interchange at Clementi MRT station might boost demand somewhat, though it is uncertain if the long distance to the MRT station and the possibility of construction work on the AYE will have a dampening effect.

ELTA Clementi 1-bedroom and study (type A1s) floor plan.

ELTA Clementi 1-bedroom and study (type A1s) floor plan.

Image ELTA Official Website

ELTA Clementi Condo Floor Plan

You can find the ELTA floor plan here. ELTA consists of 1- to 5-bedroom units.

1-Bedroom Study Floor Plan

The 1-bedroom units measure 47 sqm (506 sqft) and come with a study. This is a compact, space-efficient layout. The unit opens up to a small hallway in front of the kitchen, and the study is a nook that is accessible from the kitchen.

ELTA Clementi 2-bedroom (type B1) floor plan.

ELTA Clementi 2-bedroom (type B1) floor plan.

Image ELTA Official Website

2-Bedroom Floor Plan

The 2-bedroom units measure 57 to 75 sqm (614 to 807 sqft), with the biggest units equipped with a spacious study. All the layouts place the living room in the middle of the apartment, with both bedrooms on either side.

ELTA Clementi 3-bedroom (type C1) floor plan.

ELTA Clementi 3-bedroom (type C1) floor plan.

Image ELTA Official Website

3-Bedroom Floor Plan

The 3-bedroom units measure 86 to 95 sqm (926 to 1,023 sqft), with the larger premium units containing a study and a dry kitchen in addition to the usual wet kitchen. The premium units also separate one of the bedrooms from the other two by placing the living/dining area in between.

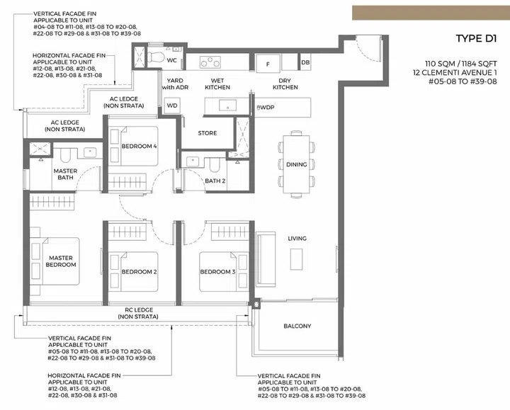
ELTA Clementi 4-bedroom (type D1) floor plan.

ELTA Clementi 4-bedroom (type D1) floor plan.

Image ELTA Official Website

4-Bedroom Floor Plan

The 4-bedroom units measure 110 to 140 sqm (1,184 to 1,507 sqft). There is one layout with a study, and another that is a dual key unit, enabling the owner to rent out part of the unit without having to sacrifice privacy. All 4-bedroom units come with both dry and wet kitchens.

ELTA Clementi 5-bedroom (type E1) floor plan.

ELTA Clementi 5-bedroom (type E1) floor plan.

Image ELTA Official Website

5-Bedroom Floor Plan

The 5-bedroom units measure a large 165 sqm (1,776 sqft). The master bedroom, dry and wet kitchen, and living and dining areas are extremely spacious, and there is also a powder room. These units are suitable for those looking for an extra-large unit in the area.

***Budget 预算案 2025 DO NOT USE BEFORE 18 FEBRUARY 2025***
CMG20250105-YeapCT01/预算案2025 [Clementi]
Tags: Electricity, U-Save Vouchers, Public Housing, HDB, 
SPH Media Limited

ELTA Clementi Condo Rent Price

At the moment, units at nearby Clavon are being put up for rent on PropertyGuru for $2,500 for a 380 sqft 1-bedroom apartment, to $5,800 for a 958 sqft 3-bedroom apartment.

In spite of ELTA’s higher price, at such rents, the rental yield would still be acceptable, though not fantastic.

ELTA apartments would be attractive to potential tenants who work in the nearby educational institutions and business parks, as well as parents whose children wish to attend one of the nearby schools.

CMG20241001-Jkwan01 关俊威/张佳莹/东西线 

[Clementi  MRT]

Wide aerial of Clementi station
SPH Media Limited

ELTA Clementi Condo Review

ELTA is the first condo launch in Clementi in four years, so potential buyers might be excited to live in the popular mature estate, close to numerous shopping, dining and recreational amenities.

ELTA enjoys all of these benefits, but at a cost—the condo is a located a 17-minute walk from the nearest MRT Station, which is quite far for most people. Some units also overlook the AYE, which could spell noise and dust pollution.

In terms of investment potential, due to its high price, ELTA might not be the best choice, but it remains to be seen if the opening of the new Cross-Island Line interchange will boost future property prices in the area.

Share this article