Lentor Central Residences Review: Affordable starter condo in Yio Chu Kang

Artist’s impression of Lentor Central Residences, aerial view.
Image from Lentor Central Residences official website
Share this article

Lentor Central Residences broke a record on its launch weekend on 8 and 9 March 2025. Despite being launched on the same day as other hotly-anticipated developments, including Executive Condominium Aurell of Tampines, Lentor Central Residences sold a whopping 93% of its units, with 445 of the 477 units on offer being snapped up. The condo will receive its Temporary Occupation Permit (TOP) in 2028.

With wallet-friendly prices starting from under $1 million or $1,981 psf, the 99-year leasehold Lentor Central development, helmed by Hong Leong Holdings, GuocoLand and CSC land Group, likely attracted a fair share of HDB-upgraders and others looking for an affordable starter private home.

The Lentor Central GLS exercise likely helped, as the developers managed to secure the land at the relatively low price of $982 psf.

Located in the northern Ang Mo Kio area within walking distance of Lentor MRT station on the Thomson-East Coast Line, Lentor Central Residences also benefits from the new Gross Floor Area (GFA) harmonisation rules, which forbid developers from counting certain types of space, like air con ledges, in the floor area of their units, thus forcing them to be more efficient with layouts.

Lentor Central Residences is just one of several developments in the Lentor area in recent years, alongside earlier ones such as Lentor Mansion, Lentoria, integrated development Lentor Modern and Lentor Hills Residences. Let’s see what sets it apart.

  1. 1. Lentor Central Residence Price
  2. 2. Lentor Central Residence Site Plan
  3. 3. Lentor Central Residence Location
  4. 4. Lentor Central Residence Floor Plan
  5. 5. Lentor Central Residence Rent Price
  6. 6. Lentor Central Residence Review
Lentor Central ResidenceDetails
TOP Date1 August 2028
Location18 Lentor Central, Singapore 788839
ShowflatOpposite 31 Lentor Hills Road Singapore 788881
Launch Price$2,200 psf on average
Current Price$975,000 to $3,218,000
Total units477
Freehold/ Lease99-year leasehold
AmenitiesSwimming pools including infinity edge pool, barbecue pavilion, children’s playground, gym, tennis court, sky pavilion with barbecue
MRTLentor MRT Station
Bus service163, 265, 825, 855

*Information from 99.co, PropertyGuru, and other property listing websites is accurate as of time of writing.

Artist's impression of a swimming pool in Lentor Central Residences.

Artist's impression of a swimming pool in Lentor Central Residences.

Image from Lentor Central Residences official website

Lentor Central Residence Price

At its launch on 8 March 2025, Lentor Central Residences units commanded a starting price of $998,000 ($2,155 psf) for 1-bedroom units measuring 463 sqft and above, $1.428 million ($2,107 psf) for 2-bedroom units measuring 678 sqft and above, $1.883 million ($2,058 psf) for 3-bedroom units measuring 915 sqft and above, and $2.438 million ($2,059 psf) for 4-bedroom units measuring 1,184 sqft and above.

The average psf price of units sold over the launch weekend was about $2,220 psf, which is typical for new developments in the area. Remaining units are currently being put up for sale on PropertyGuru for $975,000 to $3,218,000.

There has been a glut of new condos being developed in the Lentor area, but at the moment, these are still under construction. Many of the other nearby condos are quite a bit older. For comparison’s sake, let’s look at 99-year leasehold condo Far Horizon Gardens on 1 Ang Mo Kio Avenue 9, a five-minute walk from Lentor MRT station. Units are currently being sold for $1,250,000 to $2,288,000 ($1,085 to $1,217 psf).

Despite its age, the condo, which received its TOP in 1987, has seen long term good capital gains over the past ten years, indicating strong demand in the area.

Lentor Central Residence Site Plan

You can find the Lentor Central Residence site plan here. The site plan shows how the residential blocks and shared amenities are arranged within the development.

Lentor Central Residences offers an enviable suite of facilities, including coveted amenities like an infinity pool and a sky pavilion with barbecue pits. Other amenities include a gym with a yoga room and a tennis court.

Lentor Central Residences condo is a 9-minute walk from the nearest Lentor MRT Station.

Lentor Central Residences condo is a 9-minute walk from the nearest Lentor MRT Station.

Image Google Map

Lentor Central Residence Location

Lentor Central Residences is located at Lentor Central, a seven-minute walk from Lentor MRT station on the Thomson East-Coast Line. If you’re wondering where exactly Lentor is located, it’s in the north of Ang Mo Kio, close to Yio Chu Kang, in a quiet area that is slowly losing its low-density character as more residential developments pop up.

The opening of Lentor MRT station in 2021 was a game-changer for the area, previously quite inaccessible by public transport.

At the moment, owing to the low-density nature of the area, the zone immediately surrounding Lentor Central Residences is largely residential and green. But that doesn’t mean it’s remote--the development is lucky enough to be located a three-minute walk from upcoming mixed-use development Lentor Modern, which opens in 2026 and will house a shopping mall with a supermarket and childcare centre.

Another advantage of Lentor Central Residence’s location is its proximity to sought-after schools such as Anderson Primary School, CHIJ St. Nicholas Girls’ School and Mayflower Primary School, though they are more than a 15- or 20-minute walk away.

Overall, Lentor Central Residences enjoys a convenient location in a low-density area, thanks to the presence of Lentor MRT station and Lentor Modern. Coupled with competitive prices in the area, it offers a great opportunity to buy a starter condo in a peaceful area without sacrificing convenience and connectivity.

Lentor Central Residences 1-bedroom (type 1a) 43sqm floor plan.

Lentor Central Residences 1-bedroom (type 1a) 43sqm floor plan.

Image from Lentor Central Residences official website

Lentor Central Residence Floor Plan

You can find the Lentor Central Residences floor plan here. Lentor Central Residences is composed of 1-bedroom to 4-bedroom units.

1-Bedroom Floor Plan

The 1-bedroom units measure 43 to 54 sqm, with the largest 54 sqm layouts being equipped with studies. All the 43 sqm units have entrances opening into directly the kitchen, while the 54 sqm units open up into the corridor, with an enclosed kitchen accessible via a door on the right.

Lentor Central Residences condo 2-bedroom (type 2a) 63sqm floor plan.

Lentor Central Residences condo 2-bedroom (type 2a) 63sqm floor plan.

Image from Lentor Central Residences official website

2-Bedroom Floor Plan

The 2-bedroom units measure 63 to 74 sqm, with some including studies. Most of the layouts place the living room in the centre with one bedroom on either side, but some of the 64 sqm layouts place the two bedrooms side by side, followed by the living room. If maximising space is your goal, the latter is a bit less space efficient due to the presence of the corridor leading to the bedrooms.

Lentor Central Residences condo 3-bedroom (type 3a) 85sqm floor plan.

Lentor Central Residences condo 3-bedroom (type 3a) 85sqm floor plan.

Image from Lentor Central Residences official website

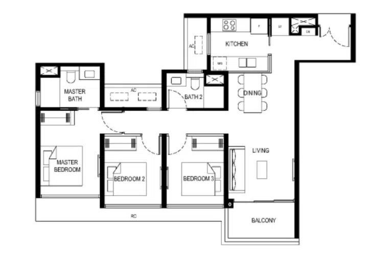
3-Bedroom Floor Plan

The 3-bedroom units measure 85 to 100 sqm, with all layouts lining the three bedrooms up in a row. The kitchens can vary in size, and the bigger units have a yard at the end of the kitchen as well as an additional WC.

Lentor Central Residences condo 4-bedroom (type 4a) 110sqm floor plan.

Lentor Central Residences condo 4-bedroom (type 4a) 110sqm floor plan.

Image from Lentor Central Residences official website

4-Bedroom Floor Plan

The 4-bedroom units measure 110 to 130 sqm. Some of the units include a walk-in closet in the master bedroom, and some have a store room accessible at the end of the kitchen. Overall, I would say these are rather no-frills 4-bedroom units, without some of the usual perks like private lifts or dry kitchens.

Lentor Central Residence Rent Price

At The Calrose on Yio Chu Kang Road, a three-minute walk from Lentor MRT station, 2- to 3-bedroom units measuring 1,109 to 1,442 sqft are being rented out for $4,500 to $6,200 a month, with 3-bedroom units measuring 1,389 to 1,410 sqft going for $5,000 to $6,200 a month.

This illustration shows that there is fairly strong rental demand in the Lentor area, although not as attractive as certain more central neighbourhoods.

Potential tenants include locals looking for an interim home, or families with children attending nearby schools.

Lentor Central Residence Review

The Lentor area has been receiving lots of attention in recent years due to the glut of new condo developments popping up in the area.

Lentor Central Residences offers the chance to live in what I think is a convenient location in the area, within easy walking distance of the upcoming Lentor Modern, which will be the area’s main shopping mall, as well as Lentor MRT station.

Given the ongoing development of the Lentor area, this development also has the potential for good capital gains later on.

Ultimately, I think Lentor Central Residences is an affordable starter condo in an attractive area, ideal for all types of households, including those whose children wish to attend nearby schools.

Share this article