One Marina Gardens Condo Review: First condo in Marina South precinct

Image OneMarina-Gardens Website
Share this article

One Marina Gardens is an upcoming 99-year leasehold condo development launched by Kingsford Group on 12 April 2025. It is the first residential project to be planned for the Marina South precinct, which is currently being developed into a residential and commercial area.

Located a stone’s throw from Gardens by the Bay, One Marina Gardens is in District 1 in the city centre, just a five-minute walk from Marina South MRT station. It is expected to receive its Temporary Occupation Permit (TOP) in 2029.

Over the launch weekend, 353 of 937 units, or 38%, were sold at an average price of $2,953 psf. This is considered a fairly good take-up rate, considering the recent announcement of Trump’s tariffs and worries about an impending recession.

  1. 1. One Marina Gardens Price
  2. 2. One Marina Gardens Site Plan
  3. 3. One Marina Gardens Location
  4. 4. One Marina Gardens Floor Plan
  5. 5. One Marina Gardens Rent Price
  6. 6. One Marina Gardens Review
One Marina Gardens CondoDetails
TOP Date30 April 2029
Location1 Marina Gardens Lane
Showflat260 Marina Way, Singapore 019921
Launch Price$2,953 psf on average
Current Price$1,116,000 to $5,222,000 ($1,944 psf to $3,148 psf)
Total Units937
Freehold/ Lease99-year leasehold
AmenitiesSwimming pools, sky garden, sky terrace, sky gym, childcare centre, shops, restaurant
MRTBayfront MRT Station
Bus400

*Information from 99.co, PropertyGuru, and other property listing websites is accurate as of time of writing.

Image OneMarina-Gardens Website

One Marina Gardens Price

At its launch on 12 April 2025, One Marina Gardens units were sold at an average psf price of $2,953 psf, a little higher than the indicative price range of $2,850 to $2,900 psf.

The One Marina Gardens price list starts from $1.16 million for one-bedroom units, $1.8 million for 2-bedroom units, $2.45 million for 3-bedroom units and $4.45 million for 4-bedroom units.

Currently, remaining units are available for sale at $1,116,000 to $5,222,000 ($1,944 psf to $3,148 psf), with 3-bedroom units being priced at $2,430,000 to $3,715,000 ($1,944 psf to $3,001 psf).

As One Marina Gardens is Marina South’s first residential development, there are no other condos in the immediate vicinity to compare prices with.

At 99-year leasehold condo Marina Bay Residences, a 15-mintue walk away, 3-bedroom units are priced at $3,780,000 to $8,480,000 ($2,310 psf to $4,329 psf). This condo received its TOP in 2010 and is a two-minute walk from Downtown MRT station.

We can thus see that One Marina Gardens’ pricing is comparable to that of other CBD properties close to Marina Bay. Marina Bay Residences has not enjoyed great capital gains so far, but the development of Marina South could give One Marina Gardens’ investment potential a boost.

Image OneMarina-Gardens Website

One Marina Gardens Site Plan

You can find the One Marina Gardens site plan here. The site plan shows the variety of shared amenities as well as the positioning of the residential blocks within the estate.

Shared amenities include swimming pools, a sky garden, a sky terrace, a sky gym, a childcare centre, shops and a restaurant.

Google Map

One Marina Gardens Location

One Marina Gardens is located on Marina Gardens Lane, a five-minute walk from Marina South MRT station on the Thomson-East Coast Line. Bayfront (Downtown, Circle Line) MRT station is a 17-minute walk away, while Marina Bay (Circle, North South and Thomson-East Coast Line) and Downtown (Downtown Line) MRT stations are a 20-minute walk away.

One Marina Gardens is located right next door to Gardens by the Bay, and a stone’s throw from the Marina South Promenade, and thus enjoys easy access to an abundance of scenic and green spaces despite being in the heart of the CBD.

For those who work in the city centre, the office can be reached in 30 minutes or less on foot. Urban attractions and food options such as Marina Bay Sands, Lau Pa Sat and Boat Quay are all within easy reach as well.

The Marina South area is currently undergoing development, and will in time to come be home to a waterfront precinct comprising retail shops, offices and pedestrian- and cyclist-friendly streets.

For families with children, the biggest drawback is that there are no schools within walking distance. Students will have to travel to city fringe areas such as Redhill or Boon Keng to attend local schools, or go to international schools in city centre.

One Marina Gardens condo 1-bedroom (Type 1BR1) 40sqm floor plan for units #02-07 to #30-07.

One Marina Gardens condo 1-bedroom (Type 1BR1) 40sqm floor plan for units #02-07 to #30-07.

Image OneMarina-Gardens Website

One Marina Gardens Floor Plan

1-Bedroom Floor Plan

You can find the One Marina Gardens floor plan here. The 1-bedroom units measure 39 to 42 sqm. All of the layouts have main doors opening out into the kitchen, which connects to the living room. The kitchens are very compact, and likely only have the space for a double stove.

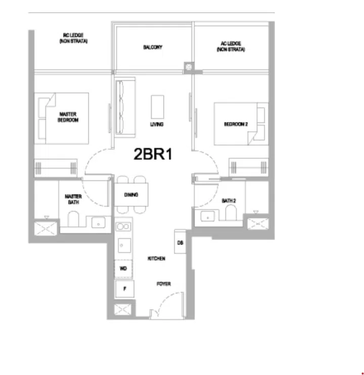
One Marina Gardens condo 2-bedroom (Type 2BR1) 60sqm floor plan for units from #03-09 to #30-09.

One Marina Gardens condo 2-bedroom (Type 2BR1) 60sqm floor plan for units from #03-09 to #30-09.

Image OneMarina-Gardens Website

2-Bedroom Floor Plan

The 2-bedroom units measure 61 to 68 sqm. Most of the layouts place the living room in the centre, and the two bedrooms on either side, which is space-efficient. But note that one layout places the two bedrooms side by side, followed by the living room. This layout is slightly less space-efficient as the master bedroom, on the far end of the unit, is only accessible via a corridor.

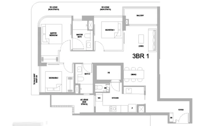
One Marina Gardens condo 3-bedroom (Type 3BR1) floor plan 94sqm for units from #03-25 to #13-25, #15-15 to #33-25, and #35-25 to #44-25.

One Marina Gardens condo 3-bedroom (Type 3BR1) floor plan 94sqm for units from #03-25 to #13-25, #15-15 to #33-25, and #35-25 to #44-25.

Image OneMarina-Gardens Website

3-Bedroom Floor Plan

The 3-bedroom units measure 84 to 115 sqm. The layouts all place the living room in a corner of the flat, with the bedrooms clustered together, although not necessary in a row. That said, the various layouts differ quite a bit, so it helps to examine the floor plans carefully. Some of the units also have both a dry and wet kitchen.

One Marina Gardens 4-bedroom premium (Type 4BR P) floor plan 153 sqm for units from #03-19 to #13-19, #15-19 to #33-19, and #35-19 to #44-19.

One Marina Gardens 4-bedroom premium (Type 4BR P) floor plan 153 sqm for units from #03-19 to #13-19, #15-19 to #33-19, and #35-19 to #44-19.

Image OneMarina-Gardens Website

4-Bedroom Floor Plan

The 4-bedroom units measure 153 sqm. There is both a wet and dry kitchen, both of which are very spacious.

One Marina Gardens Rent Price

As One Marina Gardens is the first residential development in Marina South, there are no current rental properties in the immediate vicinity.

Let’s look at Marina Bay Residences to get an idea of rents in the CBD area. At the moment, the rents are $2,800 for a 1-room condo to an eye-watering $35,088 for a 5-room penthouse. 3-room units measuring 1,970 to 1,981 sqft (183 to 184 sqm) are priced at $14,000 to $14,800 per month. These 3-room units are bigger than the 4-room units at One Marina Gardens.

That said, we don’t yet know exactly what rental yields in Marina South will be like. However, District 1 tends to enjoy some of the highest rental yields in Singapore, so the potential for investors is there.

One Marina Gardens Review

One Marina Gardens offers the opportunity to be one of the first residents in the up and coming Marina South area. The development of the area could possibly offer a boost to investment gains. Coupled with good rental yields in District 1, I think this condo definitely has potential for investors.

For residents, One Marina Gardens offers the convenience of being in the city centre, which I think is ideal for those who work in the CBD. The main drawback for families with children is that there are no local schools located within walking distance. However, the proximity of Gardens by the Bay and the Marina South Promenade offers access to nature and scenic views in the heart of the city, which can be nice for families. Overall, I feel this is a highly attractive location for anyone who wants the convenience of living in the city centre and is willing to pay for it.

Share this article