Sora Condo Review: New luxury condo in the Jurong Lake District

Artist's impression of the Sora condo, aerial view from Jurong Lake Gardens.
Image Sora Condo Official Website
Share this article

The Jurong Lake District has received a lot of buzz in recent years thanks to the Urban Redevelopment Authority’s efforts to turn the area from an industrial estate to Singapore’s second CBD. The area is on its way to becoming a vibrant place to work and play, with the scenic Jurong Lake as its core.

Built on the site of the former Lakeside Mansions, Sora is an upcoming 99-year leasehold condo developed by Chip Eng Seng Corporation, Singhaiyi Group and KSH Holdings, and built by main contractor Nakano Singapore.

Located on Yuan Ching Road, the condominium development is right next door to the scenic Jurong Lake Gardens, offering some residents stunning views of Jurong Lake.

Launched on 6 July 2024, 102 units, or 23.2% of the total units, were sold at an average transacted price of $2,160 psf, with more than half of the buyers aged below 40.

Artist's impression of the Serenity Pool within the Sora condominium.

Artist's impression of the Serenity Pool within the Sora condominium.

Image Sora Condo Official Website

Sora Condo Review (Summary Table)

Sora CondoDetails
TOP DateOctober 2028
Location72 Yuan Ching Road, Singapore 619601
Showflat30 Selegie Road, Singapore 188351
Balance Units338*
Launch PriceFrom $1,850 psf, average of $2,180
Current Price-
Total units440
Freehold/ Lease99-year leasehold
AmenitiesSwimming pools, gym, tennis court, barbecue pavilion, games room, mini theatre and karaoke room, putting green, community garden, sky deck
MRTLakeside MRT Station
Bus service49, 154, 154A, 154B

*Information from 99.co, PropertyGuru, and other property listing websites is accurate as of time of writing.

Artist's impression of the Sky 360 rooftop garden within the Sora condo.

Artist's impression of the Sky 360 rooftop garden within the Sora condo.

Image Sora Condo Official Website

Sora Condo Price

At its launch, Sora units were priced from $1,850 psf onwards, at an average price of $2,180.

These prices might sound a little expensive, but are actually typical of new condos in the Jurong East area. What is more, Sora is marketed as a luxury development, with larger and more spacious units, as well as scenic views over Jurong Lake, which residents can enjoy from a communal rooftop sky terrace. So, this is not a starter condo for buyers on a tight budget.

For comparison’s sake, let’s look at The Lakefront Residences, a 99-year leasehold, 2014 condo located 3 minutes’ walk from Lakeside MRT station. 3-bedroom apartments measuring 721 to 1,130 sq ft there are selling on PropertyGuru for $1,500,000 ($1,327.43 psf) to $1,285,000 ($1,782.25 psf). The Lakefront Residences has been enjoying a strong spike in prices since 2022, with prices reaching an all-time high in 2024. So, we can envision Sora prices to enjoy healthy growth in the near-term.

Sora condo's site plan.

Sora condo's site plan.

Image Sora Condo Official Website

Sora Condo Site Plan

You can find the Sora site plan here, via the e-brochure.

Sora has all of the typical condo facilities, including multiple swimming pools, a gym, a tennis court, barbecue pits and a karaoke room. But one thing that stands out is its sky garden, which, in the same vein as the famous skybridge at Pinnacle@Duxton, offers panoramic views of the surrounding area.

Sora condo is an 18 to 20-minutes' walk from Lakeside MRT Station.

Sora condo is an 18 to 20-minutes' walk from Lakeside MRT Station.

Image Google Map

Sora Condo Location

Sora Condo is located on Yuan Ching Road, about 18 minutes’ walk from Lakeside MRT station. In terms of public transport connectivity, it does not fare that well due to the relatively long distance to the nearest MRT station.

In my opinion, one of the biggest advantages of the location is surely its proximity to Jurong Lake Gardens and the unblocked views over nature, which are hard to come by in Singapore. The park also has a skate park, a dog run and water sports facilities.

In terms of food and shopping amenities, I think Sora’s location is fairly attractive. Jurong East MRT station is just two stops away, taking residents to the area’s many malls, including Westgate and Jem. In the immediate vicinity, Taman Jurong Shopping Centre and Taman Jurong Food Centre are the main draws. There is also a good selection of sporting amenities, with ActiveSG Sport Village and SuperBowl Jurong located nearby.

For families with children, there is a decent selection of nearby schools, including Jurong Secondary School, Yuan Ching School and Rulang Primary School.

Overall, I think Sora is a good option for those with an active, outdoorsy lifestyle due to the proximity of Jurong Lake Gardens and the number of sporting amenities in the area.

Sora condo floor plan for 1-bedroom + study (type A1s) spanning 50 sqm (3sqm for aircon ledge, 4sqm balcony), ranging from units #03-13 to #19-13, and #03-28 to #19-28.

Sora condo floor plan for 1-bedroom + study (type A1s) spanning 50 sqm (3sqm for aircon ledge, 4sqm balcony), ranging from units #03-13 to #19-13, and #03-28 to #19-28.

Image Sora Condo Official Website

Sora Condo Floor Plan

Sora is composed of 440 1- to 5-bedroom condo units. You can see the floor plans here by clicking on the e-brochure. The 2- to 5-bedroom are spacious compared to typical condo units of the same type, which is ideal for those who are looking for a more luxurious feel.

1-Bedroom

The 1-bedroom units measure 50 or 64 sqm, and each come with a 4 sqm balcony, as well as a study area integrated into the bedroom. The entrance opens up into a small kitchen, which has the space for two burners.

Sora condo floor plan for 2-bedroom deluxe (type B1) spanning 60 sqm.

Sora condo floor plan for 2-bedroom deluxe (type B1) spanning 60 sqm.

Image Sora Condo Official Website

2-Bedroom

The 2-bedroom units measure 60 to 85 sqm, all with living room balconies. Buyers can choose between layouts placing the living room in the centre of the unit, with one bedroom on either side, or with the two bedrooms placed side by side. The 2-bedroom + study units feature a larger master bedroom with space for a study area.

Sora condo 3-bedroom deluxe floor plan (type C1) spanning 87 sqm.

Sora condo 3-bedroom deluxe floor plan (type C1) spanning 87 sqm.

Image Sora Condo Official Website

3-Bedroom

The 3-bedroom units range from 87 to 131 sqm in size, all with living room balconies. The three bedrooms are placed side by side in all the layouts. The 3-bedroom + study units have a separate room designated as a study, while some of the units without studies have a small nook with no window that can be used as a home office or for storage purposes.

Sora condo floor plan for 4-bedroom luxury (type D1) unit spanning 142 sqm.

Sora condo floor plan for 4-bedroom luxury (type D1) unit spanning 142 sqm.

Image Sora Condo Official Website

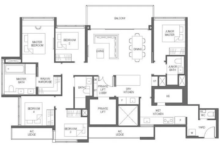
4-Bedroom

The 4-bedroom and larger units are more luxurious. They measure 142 to 166 sqm, and come with a private lift and a large, 21 sqm balcony spanning the dining and living area. There is also a wet and dry kitchen and a walk-in wardrobe in the master bedroom.

Sora condo 5-bedroom luxury (type E1) floor plan spanning 156 sqm.

Sora condo 5-bedroom luxury (type E1) floor plan spanning 156 sqm.

Image Sora Condo Official Website

5-Bedroom

The 5-bedroom units measure a spacious 156 to 180 sqm, with all the works—a large 21 sqm balcony, private lift, wet and dry kitchen and walk-in wardrobe for the master bedroom.

Artist's impression of Sora condo's forest playground.

Artist's impression of Sora condo's forest playground.

Image Sora Condo Official Website

Sora Condo Rent Price

Sora will receive its TOP in 2028, so we can only try to estimate the kinds of rents it will command at that time.

At the moment, 3-bedroom units at The Lakefront Residences measuring 990 to 1,700 sq ft are being advertised on PropertyGuru at a rent of $5,000 to $6,500, and the 5-year rental yield for 3-bedroom apartments is 2.83% to 3.96% according to transactions on PropertyGuru. To be honest, this is not a great rental yield.

Artist's impression of the Zen Garden in Sora Condo.

Artist's impression of the Zen Garden in Sora Condo.

Image Sora Condo Official Website

Sora Condominium Review

Sora’s biggest draw is its glamorous location overlooking Jurong Lake Gardens as well as the luxurious units and design of the development.

In terms of location, Sora is ideal for those who want to have a variety of scenic spots and sporting amenities at their doorstep. However, the nearest MRT station is a little far away in my opinion.

Sora units are priced at a premium, even for the increasingly popular Jurong Lake area, due to its luxury branding. This might not be the best choice for those hoping simply for a profitable investment property as the rental yield might not be great.

Share this article