The Myst Review: Upper Bukit Timah Road condo with infinity pool

The Myst, a 408-unit residential development located along Upper Bukit Timah Road.
CDL
Share this article

The Myst Condo is an upcoming 99-year leasehold condo located on Upper Bukit Timah Road. Launched on 24 June 2023 by the famous City Developments Limited (CDL), it sold 110 or 27% of its 408 units over the launch weekend. If all goes to plan, The Myst’s Temporary Occupation Permit (TOP) will be released in 2029.

Despite the fact that it is not particularly near the city centre, Upper Bukit Timah remains an in-demand residential area for being somewhat upmarket while still commanding relatively affordable prices.

Upper Bukit Timah has come a long way ever since the Downtown Line opened in 2013. The construction of the MRT line sparked off a slew of new projects like shopping mall Hill V2, and even today, the area continues to undergo rejuvenation, with upcoming plans to turn the former Bukit Timah Fire Station into a community node.

The area is also popular amongst families whose children attend the elite schools on the Bukit Timah belt, which are literally just down the road.

  1. 1. The Myst Condo Price
  2. 2. The Myst Condo Site Plan
  3. 3. The Myst Condo Location
  4. 4. The Myst Condo Floor Plan
  5. 5. The Myst Condo Rent Price
  6. 6. The Myst Condo Review
The Myst CondoDetails
TOP Date31 March 2029
Location800 Upper Bukit Timah Road, Singapore 678139
ShowflatElizabeth Drive, Singapore 669743
Launch Price$2,057 psf on average
Current Price$1,140,000 to $3,204,000 ($1,775.15 psf to $2,553.27 psf)
Total units408
Freehold/ Lease99-year leasehold
AmenitiesSwimming pools including 50m infinity pool, gym, co-working lounge, barbecue pavilion, tennis court
MRTCashew MRT Station
Bus service67, 170, 176, 177, 178, 961, 961M, 963, 970

*Information from 99.co, PropertyGuru, and other property listing websites is accurate as of time of writing.

The Myst Condo Price

At its launch on 24 June 2023, the starting price for The Myst condo units was $998,000 for 1-bedroom + study units from 517 sqft, $1.33 million for 2-bedroom units from 678 sqft, $1.708 million for 3-bedroom units from 850 sqft, $2.826 million for 4-bedroom units (from 1,518 sqft) and $3.18 million for 5-bedroom units (from 1,690 sqft).

The 110 units sold at the launch commanded an average price of $2,058 psf.

The over-$2,000 psf prices are quite typical of the Upper Bukit Timah area, in my opinion. But for comparison’s sake, let’s examine prices at a similar, nearby property.

The condos in The Myst’s immediate vicinity, namely Cashew Heights and Hazel Park Condo, are on a 999-year lease, which is practically freehold. 3-bedroom units at Hazel Park Condo are being sold for $1,650,000 to $2,700,000, or $1,538.46 to $1,963.75 psf.

So, you might be asking, if you can get a freehold condo unit at a lower price, is it really worth it paying over $2,000 psf for a 99-year leasehold apartment? Unfortunately, this is now typical of new condo units in the area.

At Midwood, a 99-year-leasehold condo which received its TOP in 2024, 3-bedroom units are currently being listed on PropertyGuru for $1,750,000 to $2,180,000 or $1,959.69 psf to $2,202.02 psf. This condo is a 4-minute walk from Hillview MRT station and a 12- or 13-minute walk from Cashew MRT station, so it enjoys an ever slightly more convenient location than The Myst, at least for those who travel frequently to the city centre.

At any rate, we can see that The Myst’s prices are not out of the ordinary. But if you’re in it for the investment gains, the good news is that, with ongoing development of the Upper Bukit Timah area, including most notably the construction of the upcoming Bukit Timah Integrated Development at Beauty World MRT station, The Myst could benefit from rising property values in the future.

So, how much is The Myst worth today? 3-bedroom units can currently be found on PropertyGuru for $1,560,000 to $2,600,000. ($1,835.29 psf to $2,285.71 psf). If we look at all units being put up for sale, the psf price ranges from $1,775.15 psf to $2,553.27 psf and the price range from $1,140,000 to $3,204,000.

The Myst site plan from CDL Homes Brochure.

The Myst site plan from CDL Homes Brochure.

CDL

The Myst Condo Site Plan

You can find The Myst site plan here. It shows the layout of the amenities within the condo, as well as the condo’s orientation on Bukit Timah Road.

One of The Myst’s key amenities is its 50m infinity pool. It also enjoys a range of other premium amenities such as a gym, tennis court and barbecue pavilion. One interesting feature is the co-working lounge, which has in recent years become a popular feature amongst condo developers thanks to the rise in popularity of work-from-home arrangements.

The Myst condominium is a 12-minute walk from the nearest Cashew MRT Station.

The Myst condominium is a 12-minute walk from the nearest Cashew MRT Station.

Image Google Map

The Myst Condo Location

The Myst is located on Upper Bukit Timah Road, a five-minute walk from Cashew MRT station on the Downtown Line.

Families with kids can take advantage of The Myst being within walking distance of Bukit Panjang Primary School and Assumption English School, as well as a short commute away from the many prestigious schools on Bukit Timah Road and Dunearn Road, including Methodist Girls’ School, Nanyang Girls’ High School and The Chinese High School.

In terms of shopping and lifestyle amenities, The Myst is well-served, with shopping malls like HillV2, The Rail Mall and Bukit Panjang Plaza, which houses Bukit Panjang Public Library, located within walking distance.

Another advantage of The Myst’s location is its proximity to nature, as it is within walking distance of the Dairy Farm Nature Park and the Rail Corridor, with Bukit Timah Nature Reserve located further down and quickly accessible by public transport.

Overall, I would consider The Myst highly attractive thanks to the decent range of available shopping malls and, as an added bonus, the abundance of greenery in the area. While the availability of schools is a definite plus for families with kids, those who work in the CBD can also get to the office easily via the Downtown Line.

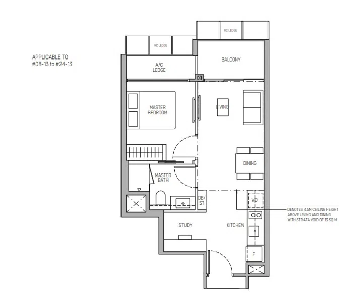
The Myst 1-Bedroom + Study (Type A1Sa) 48 sqm floor plan.

The Myst 1-Bedroom + Study (Type A1Sa) 48 sqm floor plan.

Image CDL Homes Brochure

The Myst Condo Floor Plan

You can find The Myst floor plan here. The Myst consists of 1-bedroom, 2-bedroom, 3-bedroom, 4-bedroom and 5-bedroom units.

1-Bedroom

The 1-bedroom units all come with a study and measure 48 sqm (517 sqft) or 61 sqm (657 sqft). The bedroom and bathroom both open out into the living and dining area, and the study is connected to the kitchen. All units come with a balcony.

The Myst condo 2-bedroom (Type B1) 63 sqm floor plan.

The Myst condo 2-bedroom (Type B1) 63 sqm floor plan.

Image CDL Homes Brochure

2-Bedroom

The 2-bedroom units measure 63 sqm (678 sqft) to 79 sqm (850 sqft) and come with and without studies. Some of the units (including all those with studies) have a layout that is quite interesting because it places the living/dining area in the middle, separating the two bedrooms. This is quite rare, as most typical layouts place the two bedrooms side-by-side (a configuration that is also available at at The Myst). Personally, I really like the separation as it affords greater privacy.

The Myst condo 3-bedroom (Type C1) 79 sqm floor plan.

The Myst condo 3-bedroom (Type C1) 79 sqm floor plan.

Image CDL Homes Brochure

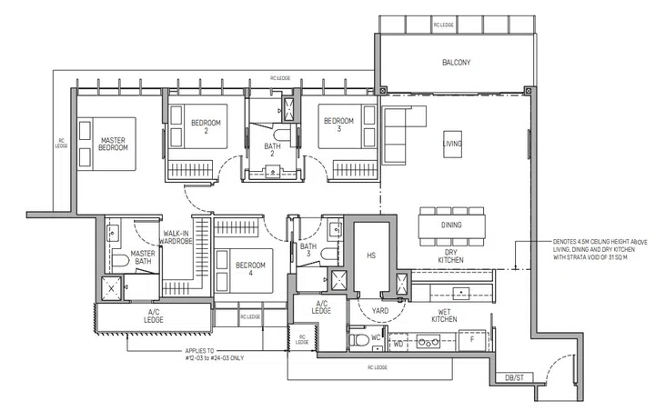
3-Bedroom

The 3-bedroom units measure 79 sqm (850 sqft) to 96 sqm (1,033 sqft), including Premium + Study units. You can choose between a layout that lines up all three bedrooms side-by-side, or one that puts two bedrooms together, with the third separated from the others by the living room. Some of the Premium (without study) units place the bathroom between the two smaller bedrooms. The Premium and Premium + Study units also come with both a dry and wet kitchen, and the Premium + Study units include a walk-in wardrobe with the master bedroom.

The Myst condo 4-bedroom (Type D2) 141 sqm floor plan.

The Myst condo 4-bedroom (Type D2) 141 sqm floor plan.

Image CDL Homes Brochure

4-Bedroom

The 4-bedroom units measure 135 sqm (1,453 sqft) to 141 sqm (1,518 sqft). Starting from these units, the luxury gets ramped up, with a spacious wet and dry kitchen, and a walk-in wardrobe for the master bedroom.

The Myst 5-bedroom (Type E1) 157 sqm floor plan.

The Myst 5-bedroom (Type E1) 157 sqm floor plan.

Image CDL Homes Brochure

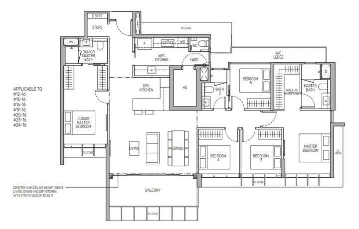
5-Bedroom

The 5-bedroom units measure 157 sqm (1,690 sqft). There is just one layout, which clusters four bedrooms together, and places the junior master bedroom at the other end of the flat, separated by the living/dining area. One lucky occupant thus gets more privacy, so this can be a good option for extended families living together.

The Myst Condo Rent Price

As The Myst is still under construction, there is no information on current rents.

But at Hazel Park Condo next door, 3-bedroom apartments measuring 1,353 sqft to 1,377 sqft are being put up for rent on PropertyGuru for $4,500 to $5,000 a month.

It’s hard to make a direct comparison here as the Hazel Park Condo units are generally much bigger than those at The Myst. But I would say that Hazel Park Condo 3-room unit owners are receiving a decent rental yield, considering current prices.

The Myst Condo Review

Upper Bukit Timah used to be quite inaccessible, but since the Downtown Line opened, it has become much more convenient.

Personally, I think The Myst enjoys a very attractive location that should appeal to most groups--families with school-going children who can take advantage of the schools in the area and on the Bukit Timah belt, those who work in the city centre, and even those who work mostly from home, as there is a decent range of amenities within walking distance, access to nature and an in-house coworking lounge.

Share this article