The Orie Toa Payoh Condo Review: Convenient location in popular mature estate

Located in Toa Payoh, The Orie has 777 units across two 40-storey towers. ILLUSTRATION: CDL
CDL
Share this article

The Orie is a new 99-year leasehold condo launched in Toa Payoh. Here’s why that’s interesting: Toa Payoh is one of the more sought-after neighbourhoods in Singapore, previously classified by the HDB as a mature estate. But it is mainly populated by HDB flats, with condo launches being few and far between—The Orie is the first private residential launch in the area in eight years.

The Orie’s launch date was 18 January 2025, with 668 of 777 units (86%) sold at an average of $2,704 psf.

So, why the strong demand? Location has a lot to do with it—The Orie, which is being developed by City Developments Limited (CDL) and will receive its Temporary Occupation Permit (TOP) in 2030, occupies a desirable location in Toa Payoh, a mere five-minute walk from Braddell MRT station.

As an added bonus for buyers, The Orie is affected by the new Gross Floor Area (GFA) harmonisation rules, which prohibits developers from including certain things in the square foot measurements, such as aircon ledges and strata void space in units with high ceilings, thus them developers to design more space-efficient apartmnents.

CDL, which is helmed by chairman and billionaire Kwek Leng Beng, chose the beginning of 2025 to begin selling units at the two-block, 777-unit The Orie condo development, taking advantage of a rebound in the housing market. Let’s find out more about this sought-after condo.

  1. 1. The Orie Price
  2. 2. The Orie Site Plan
  3. 3. The Orie Location
  4. 4. The Orie Floor Plan
  5. 5. The Orie Rent Price
  6. 6. The Orie Review
The Orie CondoDetails
TOP Date31 May 2030
Location10 Lorong 1 Toa Payoh, Singapore 319974
Showflat31 Lor 4 Toa Payoh, Singapore 312082
Launch Price$2,704 psf on average
Current PriceFrom $1.28 million
Total units777
Freehold/ Lease99-year leasehold
AmenitiesSwimming pools, steam room, gym, tennis court, co-working lounge
MRTBraddell MRT Station
Bus service59, 129, 231, 232

*Information from 99.co, PropertyGuru, and other property listing websites is accurate as of time of writing.

时隔九年,大巴窑再推出新私宅项目艺景峰(The Orie)获得热烈反应,开售首个周末售出86%的单位。
CDL

The Orie Price

As its launch on 18 January 2025, the launch price of The Orie units started at $1.28 million for one-bedroom + study units of 517 sqft, $1.48 million for 2-bedroom units of 592 sqft, $2.09 million for 3-bedroom units of 850 sqft, $2.92 million for 4-bedroom units of 1,216 sqft and $3.48 million for 5-bedroom units of 1,453 sqft.

The average psf price of units sold at the launch was $2,704 psf.

I don’t know about you, but $2,700+ psf for property in Toa Payoh sounds expensive to me.

Let’s compare these prices to another nearby condo in the area, Trevista, a 99-year leasehold condo built in 2012 and located a four-minute walk from Braddell MRT station. Trevista units are currently selling for $838,000 to $3,348,888 ($1,819 psf to $1,969 psf) on PropertyGuru, with 3-bedroom units measuring 1,012 to 1,442 sqft going for $1,999,000 to $2,500,000 ($1,595 psf to $2,234 psf).

Granted, Trevista is about 20 years old. But still, the difference in price is stark. And yet, The Trevista has actually seen attractive capital gains over the past 10 years.

Overall, I would say that Toa Payoh could be a promising area in terms of future capital gains due to the high number of potential HDB upgraders and the short supply of private condos in an area.

The Orie Site Plan

You can find The Orie site plan here. You can see the layout of amenities within the estate on the site plan. There is a wide range of typical condo amenities, including swimming pools, a steam room, a gym and a tennis court.

There is also a co-working lounge, which many newer condos now offer in order to cater to the higher numbers of people working from home.

The Orie condo is a short walk to the nearest Braddell MRT Station.

The Orie condo is a short walk to the nearest Braddell MRT Station.

Image Google Map

The Orie Location

The Orie is located at Lorong 1 Toa Payoh, a five-minute walk from Braddell MRT station on the North South Line. Toa Payoh MRT station is about an 18-minute walk away, and is surrounded by numerous amenities, including scores of eateries and the Toa Payoh Public Library, which is a 12-minute walk from The Orie.

One of the advantages of living in Toa Payoh is that the mature estate is extremely dense with well-loved eateries and amenities. The Orie is located within walking distance of numerous hawker centres, as well as a FairPrice and Sheng Siong Supermarket.

In 2030, when the new Toa Payoh Integrated Development is completed, it will be located near Toa Payoh Central and will house swimming pools, a gym, a bigger library and an upgraded town park.

Toa Payoh is also a very convenient location for households with kids, with numerous schools located within walking distance, such as Pei Chun Public School, CHIJ Primary (Toa Payoh) and Beatty Secondary School.

The only thing lacking is the presence of a big shopping mall in the immediate vicinity. The closest, Junction 8, is located about a 27-minute walk away.

Overall, I would say that The Orie enjoys a very convenient location, with most of what you need within walking distance—the MRT station, eateries, schools, supermarkets, a library and so on.

According to feng shui masters, the road in front of the condo development and the nearby junction could bring a good flow of Qi (translate: energy) to the property, bringing prosperity and abundance.

The Orie condo 1-bedroom and study (type A1s) floor plan.

The Orie condo 1-bedroom and study (type A1s) floor plan.

Image Orie HomeHub Website

The Orie Floor Plan

You can find The Orie floor plans here.

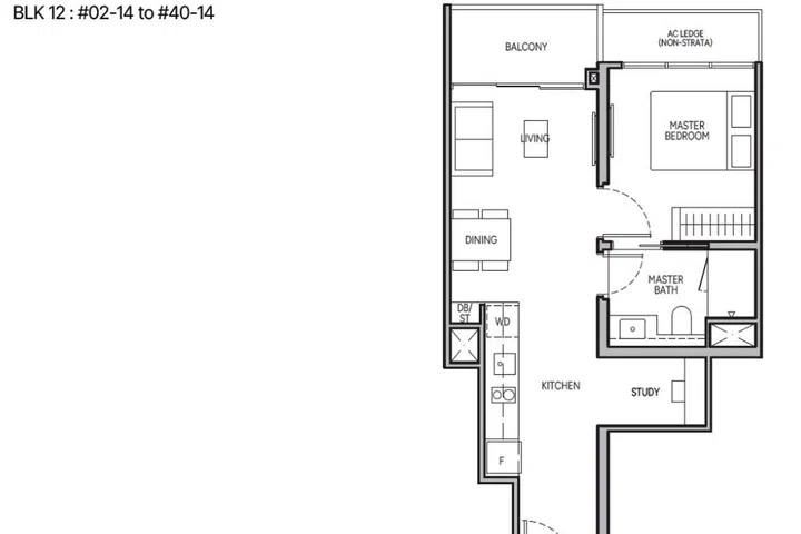
1-Bedroom Study Floor Plan

The 1-bedroom + study apartments measure 48 sqm (517 sqft), with a bathroom that is accessible from both the living/dining area and the bedroom. The study is accessible as a nook from the kitchen area.

The Orie condo 2-bedroom (type B2) floor plan.

The Orie condo 2-bedroom (type B2) floor plan.

Image Orie HomeHub Website

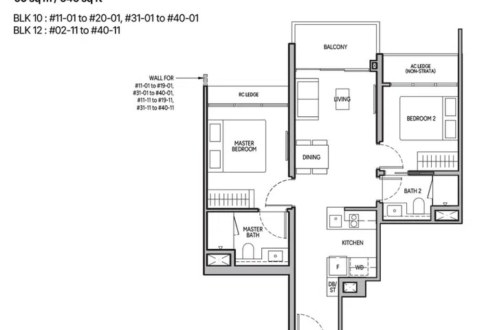
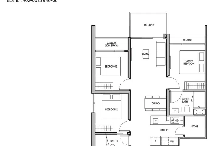
2-Bedroom Floor Plan

The 2-bedroom apartments measure 55 sqm (592 sqft) to 65 sq (700 sqft), with Premium and Premium + study layouts, in addition to the standard layouts. All the layouts except the Premium layout place the living/ dining area in between the two bedrooms. The Premium + study layout includes a study that is accessible from the kitchen.

The Orie condo 3-bedroom (type C1) floor plan.

The Orie condo 3-bedroom (type C1) floor plan.

Image Orie HomeHub Website

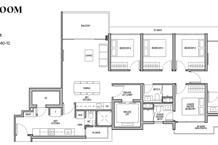
3-Bedroom Floor Plan

The 3-bedroom units measure 95 sqm (1,023 sqft) to 105 sqm (1,130 sqft), with the biggest layouts being dual key units that can be broken up into two separate apartments, one with two bedrooms, and a separate studio with its own kitchenette. This can be a good option for those who wish to rent out the studio.

The Orie condo 4-bedroom (type D1) floor plan.

The Orie condo 4-bedroom (type D1) floor plan.

Image Orie HomeHub Website

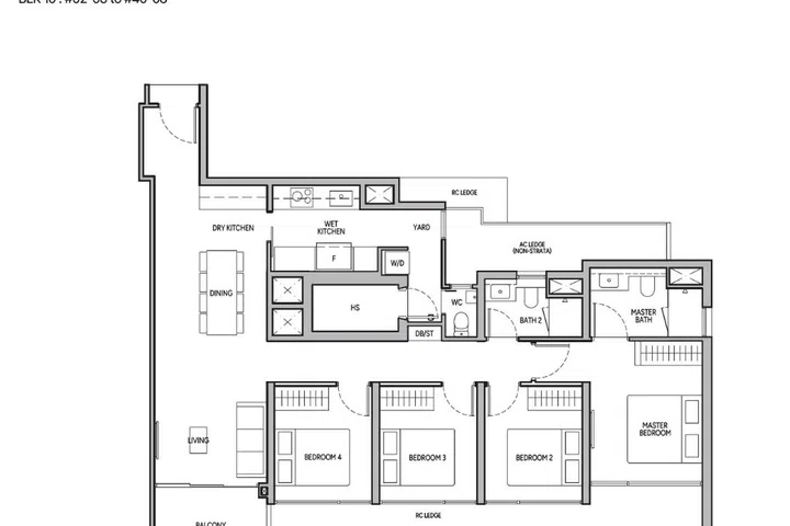
4-Bedroom Floor Plan

The 4-bedroom units measure 113 sqm (1,216 sqft) to 127 sqm (1,367sqft), with the biggest units including a study, which is a separate room on its own.

The Orie condo 5-bedroom with private lift (type E1) floor plan.

The Orie condo 5-bedroom with private lift (type E1) floor plan.

Image Orie HomeHub Website

5-Bedroom Floor Plan

The 5-bedroom units measure 135 sq (1,453 sqft) and come with a private lift and lift lobby, as well as a huge wet kitchen and a smaller dry kitchen.

SM20241205-PhuahHG01 / 潘丰源 / 刘慧祺 / Upcoming overhead bridge near braddell MRT / Toa Payoh Lor 1

Upcoming overhead bridge near Braddell MRT / Toa Payoh Lor 1.

Image Shin Min Daily News

The Orie Rent Price

To estimate the kinds of rents The Orie will be able to command, let’s have a look at prices at nearby Trevista. 3-bedroom units at Trevista measuring $1,109 sqft to 1,819 sqft are being advertised for rent on PropertyGuru for $5,600 to $9,300.

In general, Toa Payoh enjoys a decent rental yield. However, as The Orie is also a relatively expensive buy for the area, I would say that this is not the ideal property to buy if you’re mainly aiming for rental income, especially for larger units.

Furthermore, since Toa Payoh is an estate that tends to be more popular with locals than expats, it might not see the highest demand for rental property.

The Orie Review

The Orie is suitable for buyers who want to live in a vibrant mature estate not too far from the city centre, and who like the convenience of having a myriad of food options at their doorstep. The development is particularly convenient for families with kids, due to the high number of schools located within walking distance.

Share this article