Bayshore Palms BTO Review: First BTO flats in new Bayshore estate

Artist's impression of the Bayshore Palms HDB BTO project launched in October 2024 BTO exercise.
Image HDB
Share this article

Bayshore has always been exclusively populated by private housing, so BTO applicants got excited at the October 2024 launch when the first BTO flats were announced in the area. Bayshore Palms in the Bedok estate will consist of 710 2-room Flexi and 4-room flats spread out over five blocks.

Located on Bayshore Drive, which is currently under construction, Bayshore Palms was launched together with Bayshore Vista, another housing project located right next door. So, what’s the difference between Bayshore Palms and Bayshore Vista?

Bayshore Vista enjoys a slightly more attractive location as many units will enjoy unblocked views of the sea. Conversely, at Bayshore Palms, fewer residents will get to glimpse the sea as views will be blocked by Bayshore Vista. Tough luck, but that doesn’t detract from how attractive the location is.

Under the HDB’s new classification system, Bayshore Palms falls under the Plus category and will come with a longer, 10-year Minimum Occupation Period (MOP).

Bayshore Palms BTO Review (Summary Table)

Bayshore Palms BTODetails
MOP/ TOP DateJune 2039 / June 2029
LocationBayshore Drive
CategoryPlus
Launch Price2-room Flexi - $199,000 to $326,000, 4-room - $495,000 to $683,000
Current Price-
Total units710
Freehold/ Lease99-year leasehold
MRTBayshore MRT Station
Bus service10, 10E, 13, 14, 14A, 14E, 43, 48, 55, 137, 853M
HDB BTO Sales ExerciseOctober 2024
The units are part of the 10,000 homes that will be built on the site, which sits on reclaimed land bounded by Upper East Coast Road and East Coast Parkway. PHOTO: HDB

The units are part of the 10,000 homes that will be built on the site, which sits on reclaimed land bounded by Upper East Coast Road and East Coast Parkway. PHOTO: HDB

Bayshore Palms BTO Price

At the October 2024 launch, Bayshore Palms 2-room Flexi flats were priced at $199,000 to $326,000, and 4-room flats at $495,000 to $683,000.

How does this compare to HDB resale flat prices in the area? It’s hard to say, as Bayshore Palms and Bayshore Vista are the first BTO flats released in the area.

But I managed to find a 4-room flat, on nearby Bedok South Road and an eight-minute walk from the future Bedok South MRT station, being put up for sale on PropertyGuru. The flat received its TOP in 1984 and is thus over 40 years old. Its current asking price? $530,000.

If that resale price looks low compared to Bayshore Palms’ launch prices, rest assured that the low resale price is due in part to the age of the flat. Bayshore Palms will likely command a much higher price right after its MOP has been served. What is more, when the Bayshore estate is fully developed, property prices might enjoy a boost.

However, it is essential to note that for Plus flats, the MOP will be 10 years. Will the longer MOP depress resale prices? Quite possibly, but there is no way to know by how much, as longer 10-year MOPs are a relatively new phenomenon, and such flats have not yet been put on the resale market.

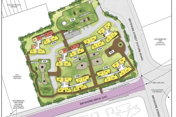
Site plan for Bayshore Palms HDB BTO estate.

Site plan for Bayshore Palms HDB BTO estate.

Image HDB

Bayshore Palms BTO Site Plan

You can find the Bayshore Palms BTO site plan here.

The site plan enables you to see the layout of the blocks on the map as well as the distribution of the flats. The BTO site is bounded by the under-construction Bayshore Drive and future road Bayshore Street.

Bayshore Palms proposed site will see 710 units launch in the October 2024 BTO exercise.

Bayshore Palms proposed site will see 710 units launch in the October 2024 BTO exercise.

Image HDB

Bayshore Palms BTO Location

Bayshore Palms will be bounded to the south by Bayshore Drive, which is under construction, and to the east by future road Bayshore Street.

Bayshore MRT station is accessible from the BTO site via a seven-minute walk. A second MRT station, Bedok South, will be less than a 15-minute walk away when it opens in 2026.

Bayshore is currently being developed as a new public housing estate, and Bayshore Palms residents will be in the thick of the new amenities. There are plans for new cycling and walking paths, and a glut of new amenities such as shops, eateries, supermarkets and healthcare facilities will be situated on Bayshore Drive.

Bayshore Palms BTO is an 8-minute walk from the nearest Bayshore MRT Station.

Bayshore Palms BTO is an 8-minute walk from the nearest Bayshore MRT Station.

Screengrab Google Map

The flats also have the advantage of being located within walking distance of East Coast Park, which itself is packed with recreational amenities and eateries.

For households with kids, schools located within walking distance include Temasek Primary School and Temasek Secondary School.

According to geomancers, Bayshore Palms’ feng shui could place residents in a position where they need to wait for opportunities. They should take care to avoid remaining idle during the wait.

Bayshore Palms BTO Floor Plan

You can find the Bayshore Palms floor plans here. Bayshore Palms consists of five blocks housing 710 2-room Flexi and 4-room flats.

2-Room

Amongst the 2-room Flexi flats, there are smaller Type 1 flats measuring 39 sqm and bigger Type 2 flats measuring 49 sqm. The Type 1 flats offer the minimum space needed for a small bedroom, compact living room and kitchen, and not much more. The Type 2 flats offer a bit more wiggle room, with a slightly larger bedroom and a significantly larger living room in an L-shape that enables you to section off one side and turn it into a dining area, home office or even a guest room area.

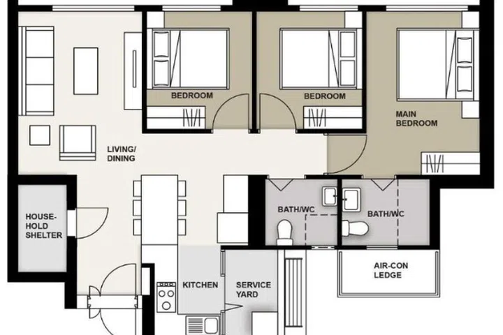
Bayshore Palms HDB BTO 4-room floor plan.

Bayshore Palms HDB BTO 4-room floor plan.

Image HDB

4-Room

The 4-room flats measure 89 sqm, with a fairly typical 4-room BTO flat layout, with three bedrooms placed side by side. Some units will have full-height windows for a better view.

Bayshore will have cycling and walking paths throughout that will be connected to the Round Island Route. PHOTO: HDB


Bayshore will have cycling and walking paths throughout that will be connected to the Round Island Route. PHOTO: HDB

Bayshore Palms BTO Rent Price

Bayshore Palms is classified as a Plus flat, which means units cannot be rented out even after the 10-year MOP has been served.

At nearby Bedok South Road, 4-room HDB flats are currently being advertised at a rent of $3,200 to $3,700 a month on PropertyGuru.

These rents would offer a good rental yield for the first batch of owners at Bayshore Palms, but for subsequent owners, profitability will depend on the flats’ resale prices. As we don’t yet know to what extent the 10-year MOP will have an impact on resale prices, estimating rental yield for future Bayshore Palms resale buyers would be a stab in the dark.

Bayshore Palms BTO Review

Overall, I think Bayshore Palms is located in a desirable area close to East Coast Park and lots of scenic and recreational amenities. If I had to nitpick, I would say the main disadvantage is that the views might not be as good as those at neighbouring Bayshore Vista.

The Bayshore estate, when it is fully developed, sounds like it will be very attractive, and might even boost property prices, although we don’t yet know if the 10-year MOP will dampen demand.

Share this article