Bayshore Vista BTO Review: HDB flats with a view of the sea

Artist's impression of the Bayshore Vista HDB BTO estate launched in the October 2024 BTO sales exercise.
Image HDB
Share this article

Bayshore Vista is a new HDB housing project launched in the HDB BTO October 2024 sales exercise. It has received lots of attention for being a rare HDB housing project in an area mainly dominated by private housing, as well as for its unblocked waterfront views.

Located in the Bedok estate, the six blocks of Bayshore Vista BTO flats will be bounded by Bayshore Drive, Bayshore Street and Bayshore Walk. If all goes well, the 734 units should receive their Temporary Occupation Permit (TOP) in June 2029 - means the Bayshore Vista completion date will be in 2029.

There’s no proper Bayshore Vista postal code at the moment.

  1. 1. Bayshore Palms vs Bayshore Vista
  2. 2. Bayshore Vista BTO Price
  3. 3. Bayshore Vista BTO Site Plan
  4. 4. Bayshore Vista BTO Location
  5. 5. Bayshore Vista BTO Floor Plan
  6. 6. Bayshore Vista BTO Rent Price
  7. 7. Bayshore Vista BTO Review
Bayshore Vista BTODetails
MOP/ TOP DateJune 2039 / June 2029
LocationBounded by Bayshore Drive, Bayshore Street and Bayshore Walk (all under construction)
CategoryPlus
Launch Price2-room Flexi – $216,000 to $340,000, 3-room – $369,000 to $476,000, 4-room – $514,000 to $694,000
Current Price-
Total units734
Freehold/ Lease99-year leasehold
MRTBayshore MRT Station
Bus service10, 10E, 13, 14, 14A, 14E, 43, 48, 55, 137, 853M
BTO Sales ExerciseOctober 2024

*Information from 99.co, PropertyGuru, and other property listing websites is accurate as of time of writing.

Bayshore Palms BTO (completion date in 2029) is a 5-minute walk down Upper East Coast Road - Bayshore Drive in the future when it's developed - to Bayshore Vista BTO (competion date in 2029).

Bayshore Palms BTO (completion date in 2029) is a 5-minute walk down Upper East Coast Road - Bayshore Drive in the future when it's developed - to Bayshore Vista BTO (competion date in 2029).

Image Google Map

Bayshore Palms vs Bayshore Vista

Both Bayshore Palms BTO and Bayshore Vista BTO were launched in the same October 2024 HDB BTO sales exercise. Both projects are located on the same road - Bayshore Drive. The key difference? Bayshore Vista BTO is located much nearer to Bayshore MRT Station.

Bayshore Palms BTOBayshore Vista BTO
Completion Date (TOP)June 2029June 2029
Minimum Occupation Period (MOP)10 Years10 Years
Unit Types2-Room Flexi, 4-Room2-Room Flexi, 3-Room, 4-Room
Total Units710734
Launch Price Range$199,000 - $683,000$216,000 - $694,000
FacilitiesShops, eating house, pre-schoolEating house, supermarket, pre-school, residents' network

From the table above, you can tell that both Bayshore Palms BTO and Bayshore Vista BTO are categorised as Plus projects (means their MOP will be 10 years). Other key differences include HDB unit types, and facilities.

Bayshore Palms BTO only offers 2-room flexi and 4-room unit types, while Bayshore Vista BTO (nearer to MRT) offers 2-room flexi, 3-room, and 4-room units. The latter also has a supermarket and pre-school. So, residents from Bayshore Palms BTO will have to walk over to Bayshore Vista to visit the supermarket.

Bayshore HDB BTO Estate artist's impression.

Bayshore HDB BTO Estate artist's impression.

Image HDB

Bayshore Vista BTO Price

At the October 2024 launch, Bayshore Vista 2-room Flexi flats were priced at $216,000 to $340,000, 3-room flats at $369,000 to $476,000, and 4-room flats at $514,000 to $694,000.

As the Bayshore area is mainly populated by private housing, we could not find any HDB resale flats in the immediate vicinity currently being put up for sale. But a 1984 4-room flat on Bedok South Road, located an 8 minute walk from future MRT station Bedok South, is currently up for sale on PropertyGuru for $530,000.

That is not a high price compared to Bayshore Vista’s launch price, but we must take into account the fact that this resale flat is over 40 years old.

Bayshore Vista units, as is the case in most BTO projects, are likely to command significantly higher prices if they are sold soon after the Minimum Occupation Period (MOP) has been fulfilled. As the project has been categorised by HDB as Plus under the new classification system, the MOP will be a longer 10 years.

As there are, as yet, no HDB flats with a 10-year MOP on the resale market, the effect of the longer MOP on resale prices remains to be seen.

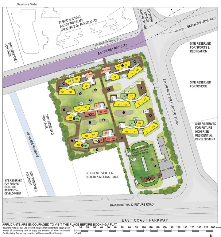
Bayshore Vista BTO site plan.

Bayshore Vista BTO site plan.

Bayshore Vista BTO Site Plan

You can find the Bayshore Vista BTO site plan here.

The site plan indicates the position of the BTO site on the map. It is located a stone’s throw from East Coast Park, on the edge of the East Coast Parkway (ECP), and thus enjoys easy access to the park’s many amenities such as the skatepark and barbecue pits. Some residents might also enjoy unblocked views of the sea.

Map showing the location of Bayshore Vista HDB BTO estate.

Map showing the location of Bayshore Vista HDB BTO estate.

Image HDB

Bayshore Vista BTO Location

Bayshore Vista will be bounded by Bayshore Drive, Bayshore Street and Bayshore Walk, which are currently under construction. Bayshore Walk will run right alongside the ECP, with East Coast Park on the other side.

The BTO site will be accessible on foot from Bayshore MRT station in about seven minutes. In addition, when Bedok South MRT station opens in 2026, it will be reachable in under 15 minutes on foot. Both stations are on the Thomson-East Coast Line.

Bayshore Vista is a 2-minute walk from the nearest Bayshore MRT Station.

Bayshore Vista is a 2-minute walk from the nearest Bayshore MRT Station.

Screengrab from Google Map

Thanks to the BTO site’s location, there are no buildings in between the BTO flats and East Coast Park. This means some lucky residents will enjoy unblocked views over East Coast Park and of the sea, which is why the HDB has decided to install full-length windows in some units.

At the moment, the area immediately surrounding the flats is under construction, but in the future, residents should be able to take advantage of new nearby amenities, such as the upcoming Bayshore Central Park. In the meantime, there is always East Coast Park, with its park connectors, eateries and recreational options.

There are also several schools within easy walking distance, including Temasek Secondary School and Temasek Primary School.

Bayshore HDB BTO e will have green spaces throughout, including a new 3ha central park stretching from the north to the south of the estate. PHOTO: HDB

Bayshore HDB BTO e will have green spaces throughout, including a new 3ha central park stretching from the north to the south of the estate. PHOTO: HDB

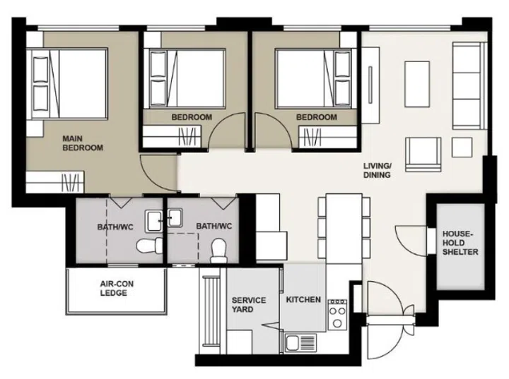
Bayshore Vista BTO Floor Plan

You can see the Bayshore Vista floor plans here.

Bayshore Vista consists of 2-room Flexi, 3-room and 4-room flats.

2-Room

There are two types of 2-room Flexi flats at Bayshore Vista—Type 1 flats measure 39 sqm, while Type 2 flats measure 49 sqm. The smaller Type 1 flats are very basic, with a small bedroom, living room and kitchen. Don’t expect to have much extra space to play around with. The Type 2 flats, on the other hand, have a much more spacious living/dining area that is L-shaped instead of rectangular. You can even convert part of it into a home office.

Bayshore Vista BTO 3-room floor plan.

Bayshore Vista BTO 3-room floor plan.

Image HDB

3-Room

The 3-room flats measure 66 sqm and feature two bedrooms arranged side by side. The kitchen is situated to the left of the main door while the living/dining area is in front. Other than that, there’s nothing out of the ordinary.

4-Room

The 4-room flats measure 89 sqm and are likewise quite typical, with the three bedrooms lined up in a row. Some of the units will enjoy full-height windows to enjoy scenic views of the area.

A new street called Bayshore Drive will be at the centre of the estate, and will include a 400m “transit priority corridor”, as well as shops and other commercial, recreational and medical facilities. PHOTO: HDB

A new street called Bayshore Drive will be at the centre of the estate, and will include a 400m “transit priority corridor”, as well as shops and other commercial, recreational and medical facilities. PHOTO: HDB

Bayshore Vista BTO Rent Price

Bayshore Vista is classified as a Plus flat. That means that the whole unit cannot be rented out even after the 10-year MOP has been served.way from being able to rent out their flats, whose MOP will only be fulfilled in 2039.

But we can have a look at rents in the area to see what other HDB flats nearby are currently commanding in terms of rent.

4-room HDB flats on nearby Bedok South Road are currently being put up for rent on PropertyGuru for $3,200 to $3,700.

If that is anything to go by, the first batch of Bayshore Vista owners will enjoy a great rental yield. For subsequent owners, rental yield will depend on resale prices. Due to the many variables such as the unknown effects on prices of the 10-year MOP, it is difficult to predict how good of an investment Bayshore Vista will be.

Bayshore will have cycling and walking paths throughout that will be connected to the Round Island Route. PHOTO: HDB


Bayshore will have cycling and walking paths throughout that will be connected to the Round Island Route. PHOTO: HDB

Bayshore Vista BTO Review

Bayshore Vista has a lot going for it—an attractive location near East Coast Park in a sought-after, prestigious neighbourhood, the possibility for some owners to enjoy unblocked ocean views, and an MRT station within walking distance.

However, under HDB’s new classification system, Bayshore Vista is a Plus housing project, which means a longer MOP of 10 years. For this reason, I wouldn’t bet on it as an investment. But as a home, I think it is an attractive choice for both families and couples without kids.

Share this article