Casa Clementi Review (MOP 2018): Near lots of good schools

Casa Clementi
Elmich Pte Ltd
Share this article

Nowadays, most of homebuyers’ attention tends to be on new HDB projects. But Casa Clementi, despite being over 10 years old, is still worth considering, simply because there haven’t been very many new flats built in Clementi over the past two decades. What’s more, some units at Casa Clementi are more spacious than their equivalents in new deveopments.

Casa Clementi received its Temporary Occupation Permit (TOP) in 2013, and the first flats on the resale market appeared in 2018 when their owners had finished serving their five-year Minimum Occupation Period (MOP).

Located on Clementi Avenue 1, the ten-block, 2,234-unit Casa Clementi was Singapore’s biggest HDB project at the time of its launch and is still considered huge. Let’s check it out.

  1. 1. Casa Clementi Price
  2. 2. Casa Clementi Site Plan
  3. 3. Casa Clementi Location
  4. 4. Casa Clementi Floor Plan
  5. 5. Casa Clementi Rent Price
  6. 6. Casa Clementi Review
Casa ClementiDetails
MOP DateJan 2018
Location416 Clementi Avenue 1 Singapore 120416
CategoryMature estate
Launch Price-
Current Price2-room Flexi - $480,000, 3-room - $760,000 to $765,000, 4-room - $978,000 to $1,140,000, 5-room - $1,045,000 to $1,280,000
Total units2,234
Freehold/ Lease99-year leasehold
AmenitiesChildren’s playgrounds, fitness stations, multi-storey car park, jogging track
MRTClementi MRT Station
Bus service96, 151, 183

*Information from 99.co, PropertyGuru, and other property listing websites is accurate as of time of writing.

Casa Clementi Price

Although there is no longer any information online about Casa Clementi’s original launch prices, 2-room Flexi flats in this project are currently being advertised for $480,000 on 99.co, 3-room flats are going for $760,000 to $765,000, 4-room flats for $978,000 to $1,140,000, and 5-room flats for $1,045,000 to $1,280,000.

As you can see, despite being located in the Outside Central Region (OCR) zone, Casa Clementi 4-room and 5-room resale flats command over a million dollars. Clementi is a popular mature estate dominated by older flats, so buyers are competing for a small supply of relatively recent projects.

Current owners would have enjoyed good capital gains over the years also thanks to developments in Clementi that have popped up over the years, such as Clementi Mall.

Elsewhere on Clementi Avenue 1, at Block 464A and 464B, 4-room HDB flats from more recent project Clementi Peak are being sold for $1,180,000 to $1,260,000 on PropertyGuru. These flats received their TOP in 2022 and are a 9-minute walk from Clementi MRT station, and thus are not only newer but also enjoy a more attractive location. It is clear that Clementi Peak resale 4-room flats are now really able to command a premium, signalling that Clementi has become an expensive place to buy a resale flat.

I think Clementi is still a promising area for investors as its popularity, thanks to its selection of amenities and proximity to good schools, doesn’t look set to wane. Resale HDB flat prices have risen consistently over the years.

Casa Clementi Site Plan

Casa Clementi Site Plan

PLB Insights

Casa Clementi Site Plan

You can find the Casa Clementi site plan here. The site plan shows the layout of the residential blocks and shared amenities within the estate.

Casa Clementi is laid out almost like a private condo, bordered by trees. It has its very own drop-off porch for cars and a shared, central area housing a multi-storey car park with a landscape deck. There is even a 660 m jogging track, which wouldn’t be possible in a smaller HDB project.

Casa Clementi Location

Casa Clementi Location

Google Maps

Casa Clementi Location

Casa Clementi is located on Clementi Avenue 1, a 17- to 19-minute walk from Clementi MRT station, which leads to the area’s main shopping mall, Clementi Mall, where Clementi Public Library is located.

The Clementi Central area near the MRT station is teeming with dining, shopping and recreational amenities at places such as shopping mall 321 Clementi, Clementi 448 Market and Food Centre, Clementi Sports Hall and Clementi Swimming Complex, all accessible within 17 to 19 minutes on foot.

The West Coast area, which is home to West Coast Plaza and the big, scenic West Coast Park, is accessible within 20 to 30 minutes on foot, or via a short drive or bus ride, offering access to nature. As an added bonus, certain flats on high floors also enjoy views of the sea at West Coast.

Clement is a highly sought-after area for families with children thanks to the high number of good schools. Casa Clementi is located within 1 km of Pei Tong Primary School, SAP school Nan Hua High School, New Town Secondary School and Singapore Polytechnic. It is also near Clementi Primary School, Fairfield Methodist School (Primary and Secondary), Henry Park Primary School, Nan Hua Primary School, Qifa Primary School, Anglo-Chinese School (Independent) and Anglo-Chinese Junior College. In addition, the National University of Singapore is not far away.

While I think Clementi is an attractive neighbourhood to live in thanks to the many amenities and schools nearby, Casa Clementi has the disadvantage of being quite far away from the nearest MRT station, which I know is a deal breaker for many.

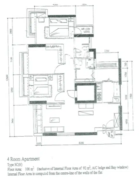
Suggested floor plan of a flat in Casa Clementi

Suggested floor plan of a flat in Casa Clementi

Casa Clementi Casa Javonne Blog

Casa Clementi Floor Plan

Casa Clementi is composed of 2-room Flexi, 3-room, 4-room and 5-room flats.

The Casa Clementi floor plan is currently not available only online. But one of the big draws of Casa Clementi is that certain flats are more spacious than their equivalents in newer projects. For instance, 4-room units can measure up to 100 sqm. For comparison’s sake, 4-room flats in new projects typically measure around 93 sqm now.

Casa Clementi Rent Price

According to current PropertyGuru listings, Casa Clementi rent prices are currently in the ballpark of $4,799 a month for 5-room flats. This would translate to a fairly good rental yield for current resale buyers.

Potential tenants include students and staff at NUS, as well as those working at the nearby One-north tech hub.

At 416 Clementi Avenue 1, a 13-minute walk from Dover MRT station, 5-room flats are being listed for rent on PropertyGuru for $5,000 a month. These higher rents are due to the flats enjoying closer proximity to the nearest MRT station and a slightly more central location, but are still comparable to Casa Clementi’s.

Casa Clementi Review

Clementi may not be in the city centre or on the city fringe, but it has grown into an estate that commands premium prices, exacerbated by the lack of new HDB flats in the area. Casa Clementi, which is more than 12 years old now, offers the chance to live in the mature estate at prices that are slightly below what you would pay for resale flats at newer Clementi BTO projects launched in the last 10 years.

Casa Clementi is located in a decent spot in Clementi that isn’t too far from the area’s main shopping, dining and sporting amenities, such as Clementi Mall and the swimming pool and sports centre. It is also near a good selection of sought-after schools of all levels, and not far from NUS. However, the biggest disadvantage is the fact that the nearest MRT station, Clementi, is too far away to comfortably walk to on a daily basis.

I would thus recommend Casa Clementi to those who have their own transport, work in the west or can work from home some of the time, and who are willing to spend more to live in an amenity-rich mature estate.

For investors, I would say that Casa Clementi is a decent choice due to the popularity of the area, especially as future HDB flats built there are likely to come with a 10-year MOP instead of Casa Clementi’s 5-year MOP.

Share this article