Central Trio @ AMK BTO Review: Good access to schools and amenities

1510 jasonlee / HDB Launches Record Number of Projects in October 2024 BTO Exercise under New Flat Classification Framework - Central Trio @ AMK
1510 jasonlee / HDB Launches Record Number of Projects in October 2024 BTO Exercise under New Flat Classification Framework - Central Trio @ AMK
Share this article

Launched in the October 2024 HDB BTO launch, Central Trio @ AMK is a new BTO project located on Ang Mo Kio Central 3. It consists of 422 2-room Flexi and 4-room flats.

Under the HDB’s new classification system, Central Trio @ AMK is categorised as a Plus flat and will thus come with a 10-year Minimum Occupation Period (MOP). The October 2024 BTO exercise was the first in which the HDB started to use their new classification system.

The Temporary Occupation Permit (TOP) for Central Trio @ AMK is expected in 2030, meaning that the first batch of owners will be able to put their flats on the resale market in 2040.

Central Trio @ AMK BTO Review (Summary Table)

Central Trio @ AMK BTODetails
MOP DateJune 2040
TOP DateJune 2030
LocationAng Mo Kio Central 3
CategoryPlus
Launch Price2-room Flexi - $187,000 to $288,000; 4-room - $481,000 to $603,000
Current Price-
Total units422
Freehold/ Lease99-year leasehold
AmenitiesMulti-storey car park with roof garden, playgrounds, fitness stations
MRTAng Mo Kio MRT Station
Bus service13, 50, 45, 86, 138, 138A, 138B, 159, 159A, 162, 265, 668, 851, 851E, 852, 853, 853M

*Information from 99.co, PropertyGuru, and other property listing websites is accurate as of time of writing.

Artist's impression of the Central Trio @ AMK BTO's linear landscaped garden and residential blocks.

Artist's impression of the Central Trio @ AMK BTO's linear landscaped garden and residential blocks.

Image HDB Brochure

Central Trio @ AMK BTO Price

Central Trio @ AMK consists of 2-room Flexi flats and 4-room flats, priced at $187,000 to $288,000 and $481,000 to $603,000 respectively at the October 2024 launch.

For comparison’s sake, what do current resale prices in the area look like?

4-room flats located on nearby Ang Mo Kio Street 51 are currently being put up for sale on PropertyGuru for $750,000 to $1,290,000. As you can see, the Ang Mo Kio area is hot property, with 4-room flats capable of commanding million dollar prices!

Those buying Central Trio @ AMK flats as an investment should be aware that the effect of the 10-year MOP on resale flat prices is still unknown. That said, given current resale prices and the popularity of the neighbourhood, there is the potential for resale prices to be attractive.

Central Trio @ AMK site map.

Central Trio @ AMK site map.

Image HDB Brochure

Central Trio @ AMK BTO Site Plan

You can find the Central Trio @ AMK site plan here.

The site plan shows the positions of the blocks on Ang Mo Kio Central 3. There will be a number of future high-rise residential developments right next door to the BTO site, so buyers should be aware that their views might be blocked. Future road Ang Mo Kio Avenue 6 and the North-South Corridor, which bound the BTO site to the west, are also currently under construction.

Central Trio @ AMK is a 16-minute walk from the nearest Ang Mo Kio MRT Station.

Central Trio @ AMK is a 16-minute walk from the nearest Ang Mo Kio MRT Station.

Screengrab Google Map

Central Trio @ AMK BTO Location

Central Trio @ AMK is located on Ang Mo Kio Central 3, a 14-minute walk from Ang Mo Kio MRT station and a 15-minute walk to Yio Chu Kang MRT station. Both stations are on the North South line.

While it is debatable as to whether Ang Mo Kio is central enough to be considered city fringe, that doesn’t change the fact that it is a popular neighbourhood (previously considered a “mature estate” under the HDB’s previous classification system) with long-standing amenities. And the presence of the North South MRT line, Singapore’s first MRT line, makes it easy to get to key MRT stations in the city centre, like Raffles Place and Orchard, without line changes.

宏茂桥10道第409座巴刹与熟食中心(409 AMK Market And Food Centre)外观。

409 AMK Market And Food Centre

Image SPH Media Limited

As it is, Central Trio @ AMK enjoys good access to amenities, with the Ang Mo Kio Public Library located next door, and numerous shopping malls within walking distance, including Djitsun Mall, Broadway Plaza and Jubilee Square. There is also no shortage of eateries in the area, including Ang Mo Kio Central Market and Food Centre.

There are also plenty of schools of all levels in the area, including Mayflower Primary School, Yio Chu Kang Secondary School, Anderson Secondary School, Jing Shan Primary School, Anderson Serangoon Junior College, Nanyang Polytechnic and ITE College Central, just to name a few.

Overall, I would say that Central Trio @ AMK enjoys a solid location in a desirable neighbourhood, and is also great for families thanks to the wide selection of schools in the area. The only downside is that the nearest MRT station is a bit far away, though it remains within reasonable walking distance.

According to feng shui masters, Central Trio @ AMK is beneficial for those who are doing business or in the commercial sector. However, sound financial management is key, as fortunes may fluctuate.

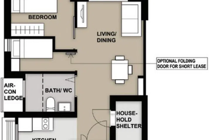
Central Trio @ AMK 2-room flexi (type 2) 48 sqm floor plan.

Central Trio @ AMK 2-room flexi (type 2) 48 sqm floor plan.

Image HDB Brochure

Central Trio @ AMK BTO Floor Plan

Central Trio @ AMK consists of only 2-room Flexi and 4-room flats.

2-Room Flexi Floor Plan

The 2-room Flexi flats consist of Type 1 flats measuring 38sqm, and Type 2 flats measuring 48 sqm.

The Type 1 flats are designed to be as compact as possible, meaning you have barely enough space for a very basic bedroom, living/dining area and kitchen.

The Type 2 flats are significantly bigger. The bedroom is a tiny bit more spacious, but the shape is somewhat awkward, so in my opinion the extra space doesn’t really add much to the usability of the room except to accommodate some extra storage. But the key advantage of this layout is the more spacious living/dining area, which has a small nook or alcove that can be converted into a dining room or office.

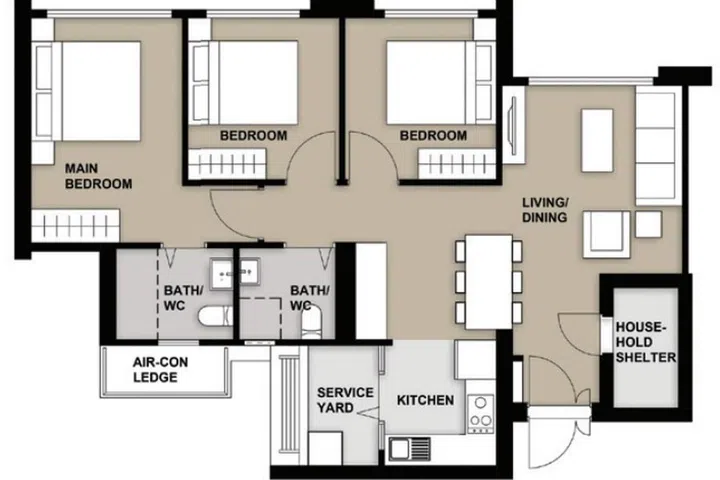
Central Trio @ AMK 4-room (89 sqm) floor plan.

Central Trio @ AMK 4-room (89 sqm) floor plan.

Image HDB Brochure

4-Room Floor Plan

The 4-room flats measure 89 sqm, and are laid out in a very typical manner for BTO flats—the three bedrooms are lined up in a row, followed by the living/dining area.

Central Trio @ AMK BTO Rent Price

As Central Trio @ AMK is classified as a Plus flat, owners will not be able to rent out the entire unit, even when the 10-year MOP is over.

Central Trio @ AMK BTO Review

Despite not being that near the city centre, Ang Mo Kio is very popular amongst Singaporeans, thanks to the well-loved amenities and variety of food options. Central Trio @ AMK enjoys close proximity to a good range of amenities and eateries, as well as many schools at all levels, making it ideal for families.

The main drawback, in my opinion, is the fact that the nearest MRT station, a 14-minute walk away, is a little far away.

While Plus flat owners cannot rent out their flats after the MOP, as an investment property, Central Trio @ AMK has the potential to enjoy healthy resale prices, if current resale flat prices in the area are anything to go by.

Share this article