Ghim Moh Ascent BTO Review: Great city fringe location near Buona Vista MRT

Artist's impression of Ghim Moh Ascent BTO estate.
Image HDB
Share this article

Ghim Moh Ascent was launched in the May 2022 HDB BTO launch. The 867 3-room and 4-room flats were released as part of a new project in mature estate Queenstown.

Ghim Moh Ascent is located on Ghim Moh Road, about 11 minutes’ walk from Buona Vista MRT station. Due to their central location on the city fringe, the flats fall under the Prime Location Public Housing (PLH) model. This means owners will have to serve a Minimum Occupation Period (MOP) of 10 years instead of five.

The BTO project’s Temporary Occupation Permit (TOP) is expected in March 2028. So, is Ghim Moh Ascent a good buy? Let’s find out!

Ghim Moh Ascent BTO Review (Summary Table)

Ghim Moh Ascent BTODetails
MOP / TOP DateMarch 2038 / March 2028
Location48A Ghim Moh Road, Singapore 271048
Launch Price3-room - $369,000 to $481,000, 4-room - $511,000 to $691,000
Current Price-
Total units867
Freehold/ Lease99-year leasehold
Amenities-
MRTBuona Vista MRT Station
Bus service92, 92M, 100, 111

*Information from 99.co, PropertyGuru, and other property listing websites is accurate as of time of writing.

Ghim Moh Ascent Price

At the May 2022 launch, Ghim Moh Ascent 3-room flats were sold at a launch price of $369,000 to $481,000, while 4-room flats were sold at $511,000 to $691,000. These are premium launch prices which reflect the area’s central city fringe location in a popular mature estate.

Ghim Moh Ascent is still a long way from being put on the resale market. The first batch of owners will receive their Temporary Occupation Period (TOP) in 2028, and will only be able to sell their flats 10 years later, in 2038. As such, it is impossible to predict the kinds of resale prices the flats will command.

Still, it can be useful to look at current resale prices in the area. At nearby Ghim Moh Link, about 13 minutes’ walk away from Ghim Moh Ascent, 4-room flats with a TOP date between 2011 and 2017 are currently priced at $790,000 to $950,000 on PropertyGuru, indicating potentially attractive capital gains for the first batch of BTO buyers.

Ghim Moh Ascent BTO Feng Shui

Ghim Moh Ascent is located on land which is favourable for receiving help from foreign sources, as well as for those who work in the military or political industries. However, due to the threats presented by nearby South Buona Vista Road, residents should exercise caution and vigilance in the pursuit of their goals.

The north- and south-facing flats are the most auspicious ones for the years 2024 to 2063. This could be problematic, as most of the flats at Ghim Moh Ascent do not face north or south. If they cannot get hold of north- or south-facing flats, buyers can opt for north/northeast or south/southeast-facing flats instead.

Ghim Moh Ascent BTO is a 16-minute walk from Holland Village MRT Station, and an 11-minute walk from Buona Vista MRT Station.

Ghim Moh Ascent BTO is a 16-minute walk from Holland Village MRT Station, and an 11-minute walk from Buona Vista MRT Station.

Screengrab Google Map

Ghim Moh Ascent Location

Ghim Moh Ascent is located on Ghim Moh Road, about 11 minutes’ walk from Buona Vista MRT station on the East West Line.

The Ghim Moh area where the flats are being built is a highly sought-after city fringe location due to its accessibility to the city core, its proximity to popular upmarket estates such as Holland Village, as well as the wide availability of elite schools in the area.

For one thing, the popular Ghim Moh Market and Food Centre is located just across the road from the flats. Holland Village, expat enclave and dining and entertainment hotspot, is located about 13 minutes’ walk away, while the area’s major mall Star Vista is 8 minutes’ walk away. A Rail Corridor entrance is also located a stone’s throw away, offering access to nature.

Families with school-going children will also have a wide selection of sought-after schools to choose from. These include Anglo-Chinese School (Independent), Anglo-Chinese Junior College, Fairfield Methodist School (Primary and Secondary), Singapore Polytechnic and INSEAD, all of which are located less than half an hour’s walk away.

Overall, I think Ghim Moh Ascent enjoys a highly attractive city fringe location with an abundance of food, shopping and educational opportunities at its doorstep.

Ghim Moh Ascent BTO 3-Room floor plan.

Ghim Moh Ascent BTO 3-Room floor plan.

Image HDB

Ghim Moh Ascent Floor Plan

Ghim Moh Ascent is composed of 3-room and 4-room flats. There is just one layout for each of the flat types.

3-Room

The 3-room flats measure 710 sq ft (66 sqm), including air con ledge. Compared to typical 3-room flats, the floor plan is unusual because the living room is located in the middle of the flat, with the two bedrooms on either side. Typical 3-room flats tend to have both bedrooms side by side with the living room on the other end. Buyers can also choose to separate the kitchen and utility room, or to knock down the partition wall and join them.

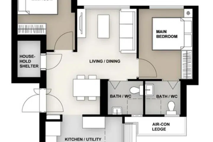
Ghim Moh Ascent BTO 4-Room floor plan.

Ghim Moh Ascent BTO 4-Room floor plan.

Image HDB

4-Room

The 4-room flats, which measure 958 sq ft (89 sqm) including air con ledge, on the other hand, have a conventional layout with the three bedrooms lined up on one end and the living room on the other.

I personally like the 3-room flat layout, which offers greater privacy by placing the bedrooms far away from each other.

Ghim Moh Ascent BTO is currently under construction.

Ghim Moh Ascent BTO is currently under construction.

Image GoAheadGroupFan/ Google Map

Ghim Moh Ascent Rent

As Ghim Moh Ascent falls under the PLH Model, owners will not be able to rent out the entire flat, even after the MOP is over.

Ghim Moh Ascent BTO Review

If you’re looking for a flat with a great city fringe location close to eateries, amenities and top schools, Ghim Moh Ascent is a good candidate as it ticks all these boxes.

However, one big disadvantage of this HDB project is that it falls under the PLH model. The longer, 10-year MOP means it may not be the best choice for those concerned about investment potential as the effects of the PLH model on resale prices are still unknown.

Share this article