Kallang View BTO Review: City fringe flats in Boon Keng area

ilhdb16 - The Housing Board launched 8,573 Build-To-Order flats on Oct 16.

Credit: HDB
ilhdb16 - The Housing Board launched 8,573 Build-To-Order flats on Oct 16. Credit: HDB
Share this article

Kallang View is a new BTO project launched in the October 2024 HDB BTO exercise. Located on Upper Boon Keng Road in the Kallang/Whampoa area, this BTO site enjoys a fairly central location on the city fringe—that’s why it has been classified as Plus by the HDB and will come with more stringent resale conditions, including a 10-year Minimum Occupation Period (MOP).

As Kallang View’s Temporary Occupation Permit (TOP) is expected in January 2029, that means that the first batch of owners will only be able to sell their flats in 2039, at the earliest.

I don’t know about you, but centrally-located BTO flats always grab my attention, as they offer the most affordable way to live near the city centre. Let’s see how Kallang View measures up.

Kallang View BTO amenities include a café, preschool, and residents’ network centre, rooftop garden atop the Multi-Storey Car Park (MCSP), playgrounds and fitness stations.

Kallang View BTO amenities include a café, preschool, and residents’ network centre, rooftop garden atop the Multi-Storey Car Park (MCSP), playgrounds and fitness stations.

Image HDB Brochure

Kallang View BTO Review (Summary Table)

Kallang View BTODetails
MOP DateJanuary 2039
TOP DateJanuary 2029
LocationUpper Boon Keng Road
CategoryPlus
Launch Price3-room - $388,000 to $497,000; 4-room - $539,000 to $698,000
Current Price-
Total units271
Freehold/ Lease99-year leasehold
AmenitiesMulti-storey carpark with roof garden, playground, fitness stations
MRTGeylang Bahru MRT Station
Bus service140, 175

*Information from 99.co, PropertyGuru, and other property listing websites is accurate as of time of writing.

Kallang View BTO Price

Kallang View consists of 68 3-room and 203 4-room flats.

At the October 2024 BTO launch, the launch price for 3-room flats was $388,000 to $497,000, while that for 4-room flats was $539,000 to $698,000.

4-room resale flats on Upper Boon Keng Road are currently being advertised on PropertyGuru for $560,00 to $1,300,000, the cheapest flats being built in the 1970s. As you can see, flats in the Boon Keng area have the potential to command million dollar resale prices—and these are just 4-room, not 5-room flats, mind!

So, while the effect of the 10-year MOP is as yet unknown, Kallang View certainly has the potential to be an excellent investment for the first batch of successful BTO applicants.

Kallang View BTO site plan.

Kallang View BTO site plan.

Image HDB Brochure

Kallang View BTO Site Plan

You can find the Kallang View site plan here. As you can see, there will be a future school located right next door to the BTO site.

The site plan shows where the blocks are laid out on the BTO site.

Map showing Kallang View BTO's location.

Map showing Kallang View BTO's location.

Image HDB Brochure

Kallang View BTO Location

Kallang View is located on Upper Boon Keng Road, with the Kallang Paya Lebar Expressway (KPE) to the east. Lorong 3 Geylang is located to the north of the site. The Pelton Canal runs near the BTO site, offering some flats views of the water.

Kallang View BTO is located a six-minute walk from Geylang Bahru MRT station on the Downtown Line, and a 12-minute walk from Kallang MRT station on the East West Line. It thus enjoys excellent connectivity in what is already a convenient city fringe location.

Kallang View BTO is a 6-minute walk from the nearest Geylang Bahru MRT Station.

Kallang View BTO is a 6-minute walk from the nearest Geylang Bahru MRT Station.

Screengrab Google Map

While Kallang View is located on the city fringe, the area immediately surrounding the flats is quite industrial in character. However, the government plans to redevelop the Kallang Distripark along Geylang Bahru into a lifestyle hub, with watersports activities on the Kallang River being part of the offerings.

That said, there is a decent selection of amenities located within walking distance, including Geylang West Community Club, Kallang Basin Swimming Complex and Upper Boon Keng Market and Food Centre. The wide selection of eateries on Geylang Road are also accessible on foot.

文庆路上段巴刹与熟食中心(Upper Boon Keng Market & Food Centre)外观。

Upper Boon Keng Market & Food Centre

Image SPH Media Limited

At the moment, there are no schools located within a 15-minute distance except an international school, The Winstedt School. A bit further away, at a walking distance of about 19 to 25 minutes, there are a few schools, Bendeermeer Primary School and Geylang Methodist School (Primary and Secondary). But as mentioned earlier, a new school, currently under construction, will be located right next door.

There are no major shopping malls in the area, though there is a supermarket within walking distace.

In my opinion, this isn’t the best location for families with school-going kids due to the lack of malls and kid-friendly amenities, but thanks to the central location, it is attractive for young professionals who work and play in the city centre.

According to feng shui masters, in spite of Kallang View’s central location, it actually offers a quiet environment that is good for quality of life, rather than the pursuit of wealth opportunities.

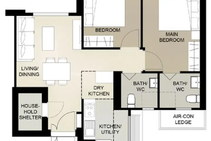
Kallang View BTO 3-room floor plan (66 sqm).

Kallang View BTO 3-room floor plan (66 sqm).

Image HDB Brochure

Kallang View BTO Floor Plan

You can find the Kallang View floor plans here.

At first glance, the 3-room flats offer a fairly standard layout, with both bedrooms lined up side by side. However, upon closer inspection, you have the option of setting up a dry kitchen in addition to the usual wet kitchen. But note that that would shrink the living and dining area.

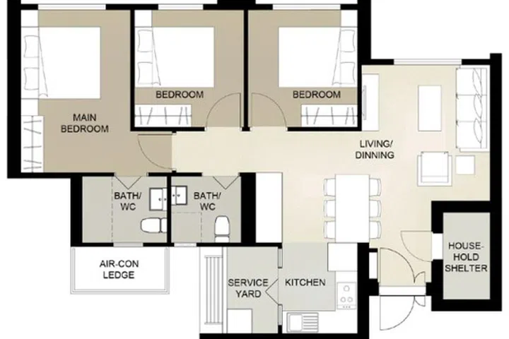
Kallang View BTO 4-room floor plan (89 sqm).

Kallang View BTO 4-room floor plan (89 sqm).

Image HDB Brochure

The 4-room flats are very typical, with the three bedrooms lined up in a row and a standard wet kitchen.

Kallang View BTO Rent Price

Kallang View is a Plus flat. Owners will thus not be able to rent out the whole flat, even after the 10-year MOP has been served.

Kallang View BTO Review

Kallang View enjoys a city fringe location that makes commuting to the CBD quick and easy, and is thus ideal for those who work in the area. The neighbourhood is quite industrial right now, and thus not that attractive in terms of amenities, but that might change as the government has plans to redevelop the area into a lifestyle hub.

If we ignore the fact that the dampening effect of the 10-year MOP is as yet unknown, Kallang View also has all it takes to be a good investment for the first batch of BTO flat buyers, and the ongoing redevelopment plans will likely give property values a further boost.

Share this article