Merpati Alcove BTO Review: Community Care Apartments in Geylang

位于芽笼麦波申的Merpati Alcove社区关爱组屋项目,共有265个单位供申购,另有168个四房式单位。(建屋局构想图)
位于芽笼麦波申的Merpati Alcove社区关爱组屋项目,共有265个单位供申购,另有168个四房式单位。(建屋局构想图)
Share this article

Merpati Alcove is a new BTO project launched in Geylang in the October 2024 HDB BTO sales exercise. It is located on Merpati Road on the city fringe, and has been categorised under the HDB’s new classification system as a Plus project.

One of the most noteworthy things about Merpati Alcove is that 265 Community Care Apartments form part of the units on offer. Community Care Apartments are senior-friendly assisted-living residences that come with care and social services. Merpati Alcove is the fourth HDB project to house Community Care Apartments.

Community Care Apartments have a short, flexible lease ranging from 15 to 35 years, customisable in five-year increments, so long as it covers the applicant and his/her spouse (where applicable) until the age of 95 years.

Community Care Apartments cannot be rented out in whole or in part, and come with a 5-year Minimum Occupation Period (MOP) of five years before the owner may purchase another HDB flat or local or overseas private property.

In addition to Community Care Apartments, the Merpati Alcove BTO project also consists of 168 4-room flats. These flats come with a 10-year MOP.

Merpati Alcove BTO Review (Summary Table)

Merpati Alcove BTODetails
MOP DateJanuary 2039
TOP DateJanuary 2029
LocationMerpati Road
CategoryPlus
Launch PriceCommunity Care Apartment (30-year lease) - $102,000 to $129,000; 4-room - $530,000 to $647,000
Current Price-
Total units433
AmenitiesPlayground, fitness stations, multi-storey carpark with roof garden, community garden
MRTMattar MRT Station
Bus service40, 61, 62, 62A 63, 63A, 64, 65, 100, 100A, 135, 154, 155, 158

*Information from 99.co, PropertyGuru, and other property listing websites is accurate as of time of writing.

Artist's impression of the Merpati Alcove BTO estate.

Artist's impression of the Merpati Alcove BTO estate.

Image HDB Brochure

Merpati Alcove BTO Price

At the October 2024 launch, Merpati Alcove Community Care Apartments on a 30-year lease were priced at $102,000 to $129,000, while the 4-room flats were priced at $530,000 to $647,000.

How do these prices compare to resale prices in the area? 4-room resale flats on Circuit Road are currently being advertised for sale on PropertyGuru for $928,000 to $1,199,000. It is clear that this is an area that fetches high resale prices.

Thanks to the proximity of Merpati Alcove to Mattar MRT station, the first batch of owners should enjoy healthy capital gains if they choose to sell soon after the MOP expires. However, there is a caveat—we do not yet know to what extent the 10-year MOP will affect resale prices, so owners should be prepared for the possibility of dampened demand.

Site plan of Merpati Alcove BTO.

Site plan of Merpati Alcove BTO.

Image HDB Brochure

Merpati Alcove BTO Site Plan

You can find the Merpati Alcove BTO site plan here. You can see where the residential blocks are located on Merpati Road. The BTO project is right next door to Canossa Catholic Primary School and across the road from Mattar MRT station.

Merpati Alcove HDB BTO is a 3-minute walk from the nearest Mattar MRT Station.

Merpati Alcove HDB BTO is a 3-minute walk from the nearest Mattar MRT Station.

Screengrab Google Map

Merpati Alcove BTO Location

The Merpati Alcove BTO site is located on Merpati Road, and bounded by Aljunied Road and Mattar Road. Mattar MRT station is located just across road, meaning residents should be able to walk there within three minutes.

While the BTO site was launched in the Geylang estate, it is, if we want to be precise, in the MacPherson area. The area has an industrial character, so there isn’t a particularly wide selection of shopping or recreational amenities.

However, one of the advantages of Merpati Alcove is that it enjoys many dining options, being within walking distance of Circuit Road Hawker Centre and MacPherson Market and Food Centre.

SM20240721-YiJun01 / 林艺君 / 林艺君 / 循环路第89座的麦波申89巴刹与熟食中心重开。@ MacPherson Market & Food Centre, Blk 89 Circuit Rd

MacPherson Market & Food Centre, Blk 89 Circuit Rd

Image Shin Min Daily News

The site is also within walking distance of several sought-after schools, including Canossa Catholic Primary School, which is right next door, Geylang Methodist School (Primary) and St Margaret’s School (Primary), with Cedar Girls’ Secondary School located a bit farther away.

While the immediate neighbourhood isn’t particularly interesting, Merpati Alcove does enjoy a convenient city fringe location, with the CBD about half an hour’s commute away by MRT via the Downtown Line.

I think this BTO site is great for those who prioritise being near the city centre and having good food options near home, such as busy professionals who work in the CBD.

According to fengshui masters, residents living at Merpati Alcove might enjoy an enhanced reputation and status, as well as a boost in their leadership qualities.

Floor plan of community care apartments (34 sqm) in Merpati Alcove HDB BTO.

Floor plan of community care apartments (34 sqm) in Merpati Alcove HDB BTO.

Image HDB Brochure

Merpati Alcove BTO Floor Plan

You can find the Merpati Alcove floor plans here. Merpati Alcove consists of Community Care Apartments and 4-room flats.

Community Care Floor Plan

The Community Care Apartments measure a very compact 34 sqm. They consist of a living/dining area equipped with a kitchenette, as well as a bedroom with a sliding screen separating the two spaces. The bathroom is accessible from the living/dining/kitchenette area.

Of all the HDB flats on offer right now, Community Care Apartments are the smallest, though it must be admitted that the layouts are space-efficient. The only area that is perhaps not so space-efficient is the bathroom, which has to be large in order to accommodate a wheelchair and elder-friendly features like grab bars.

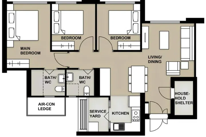
Floor plan of 4-room flat (89 sqm) in Merpati Alcove HDB BTO.

Floor plan of 4-room flat (89 sqm) in Merpati Alcove HDB BTO.

Image HDB Brochure

4-Room Floor Plan

The 4-room flats measure 89 sqm. There is nothing out of the ordinary here—the layout doesn’t deviate much from the standard 4-room flat plan, with three bedrooms lined up in a row. The living room isn’t rectangular but almost L-shaped, which enables you to place the dining table at a distance from the living room space.

Artist's impression of facilities in Merpati Alcove BTO.

Artist's impression of facilities in Merpati Alcove BTO.

Image HDB Brochure

Merpati Alcove BTO Rent Price

Merpati Alcove is a Plus flat, which means that owners will not be able to rent out the 4-room flats even after the 10-year MOP has been served.

Community Care Apartments cannot be rented out regardless of BTO project.

Merpati Alcove BTO Review

In spite of Merpati Alcove’s city fringe location, the Plus BTO project was somewhat overlooked at the October 2024 launch.

Although the location is quite near the city centre, enjoys great public transport connectivity thanks to Mattar MRT station being just across the road, and is located near several popular schools, it is in an ageing neighbourhood with an industrial character. One advantage is, however, that there are many excellent food options.

Due to the 10-year MOP and the lack of enthusiasm for this project at the launch, one might think that future resale prices do not look promising. However, given the fact that resale flats located nearby are being put up for sale for over a million dollars, in my opinion, Merpati Alcove still has the potential to be a good investment.

Share this article