Punggol BayView Review: Waterfront views and nearby park connector

Punggol BayView
CNQC (SOUTH PACIFIC)
Share this article

Waterfront views are one of the most sought-after features of BTO buyers nowadays, and HDB project Punggol BayView offers some lucky owners the chance to enjoy just that.

Launched in the January 2014 BTO sales exercise, Punggol BayView is located at Sumang Walk in the west of Punggol, overlooking the Punggol Reservoir, with a park connector running alongside the waterfront.

Punggol’s transformation over the past decade has transformed it from an ulu neighbourhood into a in-demand area, especially for young families.

Having received its Temporary Occupation Period (TOP) in 2018, Punggol BayView units have been popping up on the resale market since the first owners fulfilled their five-year Minimum Occupation Period (MOP) in 2023. Let’s see if Punggol BayView is a good buy.

  1. 1. Punggol BayView Price
  2. 2. Punggol BayView Site Plan
  3. 3. Punggol BayView Location
  4. 4. Punggol BayView Floor Plan
  5. 5. Punggol BayView Rent Price
  6. 6. Punggol BayView Review
Punggol BayviewDetails
MOP DateMarch 2023
Location321 Sumang Walk Singapore 820321
Showflat-
CategoryNon-mature estate
Launch Price3-room - $184,000 to $232,000, 4-room - $293,000 to $377,000, 5-room - $393,000 to $495,000, 3Gen - $433,000 to $481,000
Current Price4-room -  to $668,000 to $710,000, 5-room - $758,000 to $958,000, 3Gen – $999,999 to $1,168,000
Total units1,096
Freehold/ Lease99-year leasehold
AmenitiesFitness station, children’s playground, multi-storey carpark
MRTNibong LRT
Bus service34, 84, 382, 384, 673

*Information from 99.co, PropertyGuru, and other property listing websites is accurate as of time of writing.

SANITON

Punggol BayView Price

At the January 2014 BTO launch, the Punggol BayView price list was as follows: $184,000 to $232,000 for 3-room flats, $293,000 to $377,000 for 4-room flats, $393,000 to $495,000 for 5-room flats and $433,000 to $481,000 for 3Gen flats.

Resale prices have been strong. Right now, Punggol Bayview 4-room flats are selling for $668,000 to $710,000 on PropertyGuru, while 5-room flats are going for $758,000 to $958,000. 3Gen flats are now commanding $999,999 to $1,168,000. Yes, million dollar flats are now possible in Punggol! Previously, 5-room flats at Punggol Bayview have already been sold for over a million.

While million dollars flats used to be located only in the city centre or on the city fringe, it looks like the draw of living by the waterfront in Punggol is now enough to convince buyers to part with a six figure sum.

Elsewhere on Sumang Walk, 4-room flats on PropertyGuru are selling for $600,000 to $710,000. These flats received their TOP in 2015 to 2016, making them just two to three years older than Punggol BayView. These prices are slightly lower than what Punggol BayView owners are asking for, probably owing to less attractive views, but nonetheless indicate that one must be be prepared to spend well over half a million for a 4-room flat in the area.

Properties in Punggol have generally proven to be good investments for owners due to the transformation of the area over the past two decades. While Punggol has reached a late stage of development, the government still has plans for the area, such as the nascent Punggol Digital District, expected to be completed in 2026, which might lift resale prices further.

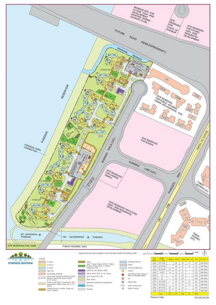
Punggol BayView site plan

Punggol BayView site plan

SG Housing Plan Blog

Punggol BayView Site Plan

You can find the Punggol BayView site plan here. The site plan shows the placement of Punggol BayView’s residential blocks within the estate, as well as the shared amenities, which include fitness stations, a children’s playground and a multi-storey car park.

Map of area around Punggol BayView

Map of area around Punggol BayView

streetdirectory.com

Punggol BayView Location

Located on Sumang Walk, about a six-minute walk from Nibong LRT station, Punggol BayView’s biggest selling point is probably the unblocked waterfront views that units enjoy over the Punggol Reservoir.

A park connector runs alongside the waterfront, continuing to Punggol Waterway Park in one direction and following the riverbank to the sea on the other, passing by Punggol Point Jetty and leading to Coney Island Park. Residents have great scenery and the sea almost at their doorstep.

Punggol is now an attractive residential area, with lots of family-friendly recreational facilities.  Other than major shopping mall Waterway Point, Punggol BayView residents are also located within walking distance of Punggol Waterway Park and SAFRA Punggol.

In terms of public transport connectivity, in my opinion, having to take the LRT before getting onto the MRT network does add quite a bit to travelling time. Residents are looking at a commute of about one hour to get to Raffles Place in the CBD. Punggol MRT station is a 17-minute walk away, so those who are willing to cycle to the MRT station might be able to bypass the LRT.

Punggol has the reputation for being family friendly, with good availability of schools. Schools located within 1 km of Punggol BayView include Valour Primary School, Punggol Cove Primary School and Punggol Green Primary School. Schools a quick bus ride away include Edgefield Secondary School, Compassvale Secondary School and CHIJ St Joseph’s Convent.

Whether Punggol BayView’s location is attractive or not depends on your lifestyle. For households who can work from home most of the time and who have school-going children, I would say that this is a great place to live in, with easy access to nature, the sea and schools, as well as a good variety of amenities. Bonus points if you get a flat with a coveted waterfront view. However, for those who need to use public transport to commute to work in the city centre every day, Punggol BayView is inconvenient due to the hour-long commute via LRT and MRT.

Layout of Punggol BayView

Layout of Punggol BayView

BTO HQ

Punggol BayView Floor Plan

You can find the Punggol BayView floor plan here. Punggol BayView is composed of 3-room, 4-room, 5-room and 3Gen flats.

3-Room Floor Plan

The 3-room flats are 68 sqm, inclusive of air con ledge, and consist of two bedrooms placed side by side,  followed by the living/dining room. The kitchen can be opened up into the living and dining area, or separated with a partition wall.

4-Room Floor Plan

The 4-room flats measure 93 to 96 sqm, inclusive of air con ledge. The basic layout is classic, with the three bedrooms lined up in a row, followed by an L-shaped living and dining area. Some units also come with a balcony in the living and dining area, particularly those with sea views.

5-Room Floor Plan

The 5-room flats measure 113 to 122 sqm, inclusive of air con ledge. The basic layout is classic, with three bedrooms in a row followed by an L-shaped living/dining area that is big enough to set up a study in. Some units also have a balcony in the living and dining area. The largest 122 sqm units also have a particularly large, oddly-shaped master bedroom that is neither square nor rectangular, enabling residents to set up a reading or chillout area in additional to the sleeping area. However, some might not like the irregular shape.

3Gen Floor Plan

The 3Gen flats measure 123 sqm, and come with four bedrooms and three bathrooms, of which two are ensuite bathrooms attached to one of the bedrooms. The living room separates one of the bedrooms from the other three, offering greater privacy. All 3Gen flats also come with a balcony and the option of having an open or closed kitchen.

Artist Impression of Punggol BayView

Artist Impression of Punggol BayView

Housing and Development Board

Punggol BayView Rent Price

5-room flats at Punggol BayView are currently being advertised for rent on PropertyGuru for $4,000. This would work out to a good rental yield, even for future landlords buying their flats on the resale market.

In comparison, nearby flats at 217B Sumang Walk, an 18-minute walk from Punggol BayView, are asking for rents of $3,450 to $3,500. These flats are not as close to the waterfront, nor do they have views of the water, which could explain the lower rents.

Potential tenants are likely to be families with children, and possibly households waiting for their own homes to be built.

Punggol BayView Review

Punggol BayView and the million dollar resale flats in this project have really shown that Singaporeans’ priorities are shifting, and that more value is now being placed on nice views, access to nature and a family-friendly neighbourhood. If these things are important to you, Punggol BayView might be worth the admittedly high resale prices.

However, if you need to travel frequently to the city centre, Punggol BayView’s location is quite far-flung, and having to take the LRT translates to a long commute.

As an investment, I personally think Punggol is promising thanks in part to the upcoming Punggol Digital District. The fact that more people work from home now also makes the far-flung location less of a deterrent than before, which bodes well for investors.

Share this article