St George’s Towers Review (MOP 2024): City fringe HDB in Boon Keng

Resale 3-room HDB flats here are fetching $888k, and 4-room flats $1.3m!

St. George's Towers
LOOK Architects
Share this article

St George’s Towers is a HDB BTO project launched in the mature estate Kallang Whampoa in the September 2014 BTO exercise. It is located on Saint George’s Lane, a four-minute walk from Boon Keng MRT station.

Having received their Temporary Occupation Permit (TOP) in 2019, St George’s Towers units have been placed on the resale HDB market since the five-year Minimum Occupation Period (MOP) was served in 2024.

Now, the fact that the MOP for St George’s Towers is only five years is potentially a factor that could boost future demand for its units on the resale market. That’s because the HDB changed its classification system in 2024, and any BTO projects launched in the Kallang Whampoa area in October 2024 or later are likely to come with a 10-year MOP.

If you’ve always wanted to live on the city fringe, a resale HDB flat at St George’s Towers might pique your interest. Let’s see if this project is worth considering.

  1. 1. St George Towers Price
  2. 2.
    St George Towers Site Plan
  3. 3. St George Towers Location
  4. 4. St George Towers Floor Plan
  5. 5. St George Towers Rent Price
  6. 6. St George Towers Review
St George’s TowersDetails
MOP DateMarch 2019
Location24 Saint George’s Lane Singapore 320024
CategoryMature estate
Launch PriceStudio Apartment – from $116,000, 3-room – from $328,000, 4-room – from $459,000
Current Price3-room - $710,000 to $888,888, 4-room – $998,000 to $1,350,000
Total units738
Freehold/ Lease99-year leasehold
AmenitiesChildren’s playground, fitness station, multi-storey carpark, elderly facilities
MRTBoon Keng
Bus service13, 23, 31, 64, 65, 125, 133, 140, 147, 857, 985

*Information from 99.co, PropertyGuru, and other property listing websites is accurate as of time of writing.

St. George's Towers

St. George's Towers

LOOK Architects

St George Towers Price

At the September 2014 HDB sales exercise, the St George Towers BTO price was from $116,000 for Studio Apartments, from $328,000 for 3-room flats and from $459,000 for 4-room flats. The Studio Apartments are meant primarily for elderly people.

Fast forward to today, and the resale prices for 3-room to 4-room flats have soared. A quick search for St George Towers for-sale units on PropertyGuru shows that 3-room flats are selling for $710,000 to $888,888, while 4-room flats are being advertised for $998,000 to $1,350,000.

This is not in the least surprising, given the prime location of the flats on the city fringe. In fact, St George’s Towers set a new record when its first 4-room resale flat was sold for over a million soon after the MOP was fulfilled.

The area near Boon Keng MRT station is hot property, and we should now expect newer 4-room resale flats in the area to command over a million. For instance, at nearby Boon Keng Road, a five- to 10-minute walk from Boon Keng MRT station, 4-room flats are being advertised on PropertyGuru for $1,268,000 to $1,380,000. They received their TOP in 2011 to 2016.

Boon Keng and Kallang/Whampoa are on the city fringe, so this area tends to see steady demand. While there are no upcoming developments likely to cause a spike in prices, city fringe areas have the potential to grow in value in the long term.

St George Towers Site Plan

St George Towers Site Plan

HousingMap.sg


St George Towers Site Plan

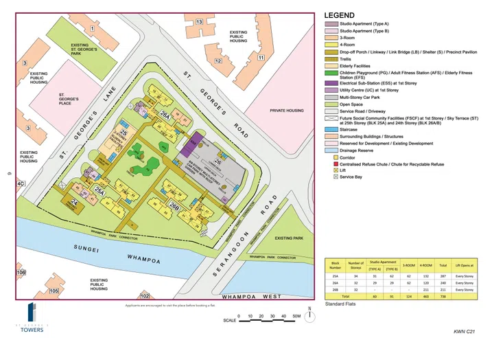
You can find the St George’s Tower site plan here. On the site plan, you can see the location of the residential blocks within the estate, as well as the shared facilities, including a children’s playground, fitness station, multi-storey carpark and elderly facilities.

St George Towers Location

St George Towers Location

HousingMap.sg

St George Towers Location

St George’s Towers is located on Saint George’s Lane in the Kallang/Whampoa mature estate, just a four-minute walk from Boon Keng MRT station on the North East Line. Boon Keng is a city fringe location just three stops from the city centre via Dhoby Ghaut, or four stops via Clarke Quay. A second MRT station, Bendemeer on the Downtown Line, is a 17-minute walk away, while Geylang Bahru MRT station, also on the Downtown Line, is an 18-minute walk away.

Thanks to its central location within the Boon Keng area, St George’s Towers is within easy walking distance of key amenities, including Bendemeer Shopping Mall and Kallang Community Club.

Furthermore, it is about a 20-minute  walk from the Balestier area, which is home to many popular eateries, as well as the Little India area, with amenities like City Square Mall and 24-hour mall Mustafa.

Besides enjoying a highly convenient location, St George’s Towers also offers easy access to the nearby Sungei Whampoa, with the Whampoa Park Connector running alongside. Some units will also enjoy views of the river.

St George’s Tower is also within easy walking distance of quite a few reputable schools, including Bendemeer Primary School, Bendemeer Secondary School, Hong Wen School and St Andrew’s Junior School, all of which are located within 1 km. Farrer Park Primary School, Pei Chun Public School and St Joseph’s Institution Junior are located within 2 km.

While the Boon Keng area isn’t really a hotspot for shopping or food, I would still say this is an attractive location due to how easy it is to get to the city centre, as well as other popular city fringe areas surrounding it, like Balestier, Little India, the Kallang sporting precinct and Geylang.

According to geomancers, St George’s Towers is not particularly auspicious for go-getters looking to accumulate wealth. It is better suited to those looking for a tranquil place to live and a high quality of life.

St George Towers Floor Plan

St George Towers Floor Plan

HousingMap.sg

St George Towers Floor Plan

You can find the St George Towers BTO floor plan here. St George Towers consists of Studio Apartments targeted at the elderly, 3-room flats and 4-room flats.

The Studio Apartments are compact units measuring 38 sqm to 47 sqm, with everything fitting into one room—bedroom, living/dining area and kitchen. The smaller 38 sqm units are extremely compact, with a small space allocated to the bedroom area. In the larger 47 sqm units, the sleeping area is more spacious and can be separated from the living/dining area by a sliding screen.

The 3-room flats measure 68 sqm, inclusive of air con ledge. They have a classic layout, with the two bedrooms side by side and accessible through a corridor from the living/dining area. One disadvantage is that the kitchen is quite small but, due to the placement of the household shelter, there is no option to have an open plan kitchen.

The 4-room flats measure 92 sqm, inclusive of air con ledge. This is a typical 4-room flat layout, with three bedrooms in a row, and an L-shaped living room. The kitchen can be customised to be open plan or closed.

St George Towers Rent Price

St George Towers BTO rent prices for 4-room flats are in the $4,500 to $4,700 range, according to current listings on PropertyGuru. In spite of the high resale prices, these high rents mean that the flats can still be decent rental properties.

These high rents are typical of the area due to its convenient city fringe location. In a similar vein, on nearby Bendemeer Road, a nine- or 10-minute walk from Boon Keng MRT station, 4-room flats are being put up for rent on PropertyGuru for $3,800 to $4,800.

Potential tenants include foreign and local white collar workers who commute to work in the city centre, as well as local households waiting for their homes to be built.

Green roof of St. George's Towers.

Green roof of St. George's Towers.

Joseph Goh [www.infinitude.biz]

St George Towers Review

Although the Boon Keng area isn’t that flashy, I personally feel that St George’s Towers enjoys a desirable location simply because it is so near the city centre, as well as popular areas like Balestier and Little India with good food and shopping options. The fact that the nearest MRT station is so close by and that there are many reputable schools within walking distance makes it even more desirable.

St George’s Towers enjoys a great location, but it’s also expensive. Whether it’s worth your while really depends on your budget. If you really want to live on the city fringe, the extra cost might be justified. While I doubt St George’s Towers can offer resale HDB flat buyers a windfall in terms of investment gains, the fact that it comes with a five-year MOP might boost demand in future, as new flats in the area will be saddled with 10-year MOPs.

Share this article