West BrickVille @ Bukit Batok BTO Review: BTO project with 2-year waiting time

武吉巴督预购组屋项目West BrickVille@Bukit Batok。(构想图)
武吉巴督预购组屋项目West BrickVille@Bukit Batok。(构想图)
Share this article

Long waiting times are the bane of BTO applicants’ lives, but the government seems to have taken notice. In October 2024, the HDB launched 2,085 BTO flats with shorter waiting times. These BTO flats were part of three projects located in Bukit Batok and Sengkang.

West BrickVille @ Bukit Batok is the fastest of these “express” BTO flats, and will be completed within just two years, making it one of the HDB’s speediest BTO projects ever.

West BrickVille @ Bukit Batok is not to be confused with West Crest @ Bukit Batok or West Plains @ Bukit Batok. These are earlier BTO projects from May 2014 and February 2016 respectively.

Under the HDB’s new flat classification system, West BrickVille @ Bukit Batok is a Standard project, meaning the Minimum Occupation Period (MOP) will be five years, and owners will be able to rent out the entire unit after it has been served.

West BrickVille @ Bukit Batok BTO Review (Summary Table)

West BrickVille @ Bukit Batok BTODetails
MOP DateSeptember 2031
TOP DateOctober 2026
LocationBukit Batok Road, Bukit Batok West Avenue 8
CategoryStandard
Launch Price2-room Flexi - $140,000 to $217,000; 3-room - $247,000 to $329,000; 4-room - $335,000 to $445,000; 5-room - $496,000 to $597,000; 3Gen - $529,000 to $606,000
Current Price-
Total units689
Freehold/ Lease99-year leasehold
AmenitiesPlayground, fitness stations
MRTTengah Park MRT Station
Bus service160, 180, 941, 991

*Information from 99.co, PropertyGuru, and other property listing websites is accurate as of time of writing.

Artist's impression of West BrickVille @ Bukit Batok.

Artist's impression of West BrickVille @ Bukit Batok.

Image HDB Brochure

West BrickVille @ Bukit Batok BTO Price

West BrickVille @ Bukit Batok consists of the entire range of HDB flat types, from 2-room Flexi to 3Gen.

The launch prices at the October 2024 BTO exercise were $140,000 to $217,000 for 2-room Flexi flats, $247,000 to $329,000 for 3-room flats, $335,000 to $445,000 for 4-room flats, $496,000 to $597,000 for 5-room flats and $529,000 to $606,000 for 3Gen flats.

I cannot say that this BTO project truly offers bargain basement prices, but the flats are nonetheless relatively affordable due to the fact that Bukit Batok is a fair distance from the city centre.

For comparison’s sake, I had a look at resale flats near the West BrickVille @ Bukit Batok site.

4-room resale flats at Bukit Batok West Avenue 8,which received their TOP in 2018 or 2019 and recently fulfilled their MOP, are currently priced at $600,000 to $725,000. That’s almost double the launch price for West BrickVille @ Bukit Batok. Furthermore, these resale flats are located more than a 10-minutes walk from Tengah Park MRT station, compared to West BrickVille @ Bukit Batok’s six minutes. This is promising for those amongst the first batch of owners hoping to sell for a tidy profit when the MOP is over.

West BrickVille @ Bukit Batok site plan.

West BrickVille @ Bukit Batok site plan.

Image HDB Brochure

West BrickVille @ Bukit Batok BTO Site Plan

You can find the West BrickVille @ Bukit Batok site plan here. The site plan shows the layout of the BTO project within the neighbourhood. As you can see, West BrickVille @ Bukit Batok is sandwiched between Bukit Batok Road and Bukit Batok West Avenue 8, and located next door to Dulwich College (Singapore).

West BrickVille Bukit Batok BTO is set to be a 6-minute walk from the nearest Tengah Park MRT Station (Jurong Regional Line, under construction).

West BrickVille Bukit Batok BTO is set to be a 6-minute walk from the nearest Tengah Park MRT Station (Jurong Regional Line, under construction).

Screengrab Google Map

West BrickVille @ Bukit Batok BTO Location

West BrickVille @ Bukit Batok is roughly a six-minute walk from the upcoming Tengah Park MRT station on the Jurong Region Line, which is scheduled to open in 2028.

It is important to note that West BrickVille @ Bukit Batok is close to the western limit of Bukit Batok, right next door to Tengah. That means that a huge swathe of land a stone’s throw from the BTO project will be undergoing development from the ground up over the next decade. Residents must thus be prepared for a lack of established amenities that have stood the test of time, as well as some noise and air pollution from nearby construction.

As far as amenities go, West BrickVille @ Bukit Batok does not fare too badly, thanks in large part to the presence of The Quest Shopping Mall and Bukit Batok West Shopping Centre, both located within walking distance. Bukit Batok’s biggest shopping mall, West Mall, is 25 minutes away on foot.

An artist's impression of the refurbished West Mall. Enhancement works are due to be finished in 2025. 

An artist's impression of the refurbished West Mall. Enhancement works are due to be finished in 2025. 

There are also several schools within walking distance, including Princess Elizabeth Primary School, Bukit Batok Secondary School and Millennia Institute.

One thing to note is that MRT tracks will run near the BTO site, which could spell noise pollution for BrickVille @ Bukit Batok residents, especially those in the westernmost blocks and units.

The BTO site is located in the westernmost part of Bukit Batok near Tengah, while many of the area’s key amenities are located at Bukit Batok Central near Bukit Batok MRT station, so this is admittedly not the most convenient location. As neighbouring Tengah undergoes development in the coming years, residents might be able to benefit from amenities in the new neighbourhood.

According to a Feng Shui reading, West BrickVille @ Bukit Batok is suitable for people with a strong character, or those who are young, robust and hustling for success. On the other hand, weak-minded people might not be able to thrive here.

West BrickVille Bukit Batok BTO 2-room flexi type 2 (48 sqm) floor plan.

West BrickVille Bukit Batok BTO 2-room flexi type 2 (48 sqm) floor plan.

Image HDB Brochure

West BrickVille @ Bukit Batok BTO Floor Plan

You can find the West BrickVille @ Bukit Batok floor plans here. West BrickVille @ Bukit Batok consists of 2-room Flexi, 3-room, 4-room, 5-room and 3Gen flats.

2-Room Floor Plan

The 2-room Flexi flats come in two different layouts, smaller 38 sqm Type 1 flats and larger 48 sqm Type 2 flats. The main difference is that all the spaces in the Type 2 flats are a bit bigger than those in the Type 1 flats, and the Type 2 flats also have an L-shaped living/dining area, so you don’t have to cram all your furniture into a single rectangle and can even repurpose the base of the L into a dining room, study or guest room.

West Brickville Bukit Batok BTO 3-room floor plan (69 sqm).

West Brickville Bukit Batok BTO 3-room floor plan (69 sqm).

Image HDB Brochure

3-Room Floor Plan

The 3-room flats measure 66 sqm and offer a bit more flexibility than we’ve come to expect. One interesting feature is that the kitchen and utility spaces have ben merged, making that whole area more customisable. There is also space for a dry kitchen or bar outside the open wet kitchen, if you so desire. Alternatively, owners can opt for partitions to separate the dry kitchen, wet kitchen and utility area.

West Brickville Bukit Batok BTO 4-room floor plan (93 sqm).

West Brickville Bukit Batok BTO 4-room floor plan (93 sqm).

Image HDB Brochure

4-Room Floor Plan

The 4-room flats measure 93 sqm. This layout is as cookie-cutter as it gets, with the three bedrooms lined up in a row. It does not have the same flexibility of the 3-room flats.

West Brickville Bukit Batok BTO 5-room floor plan (113 sqm).

West Brickville Bukit Batok BTO 5-room floor plan (113 sqm).

Image HDB Brochure

5-Room Floor Plan

The 5-room flats measure 113 sqm and are again fairly typical. The living-dining area is a lot more spacious than that of 4-room flats, and you can even choose to set up a study or home office in part of the living room without it feeling cramped.

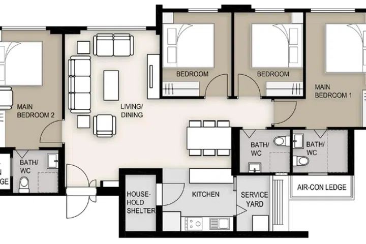
West Brickville Bukit Batok BTO 3-Gen floor plan (120 sqm).

West Brickville Bukit Batok BTO 3-Gen floor plan (120 sqm).

Image HDB Brochure

3Gen Floor Plan

Finally, the 3Gen flats measure 120 sqm and consist of four bedrooms and three bathrooms, two of which are en-suite bathrooms for the two master bedrooms. The master bedroom and two regular bedrooms are lined up in a row, and the second master bedroom is separated from the other bedrooms by the living/dining area, meaning one lucky resident or pair of residents is going to enjoy greater privacy.

West BrickVille @ Bukit Batok BTO Rent Price

West BrickVille @ Bukit Batok will fulfil its five-year MOP in 2031, after which owners will be able to rent out the whole unit.

4-room flats located on Bukit Batok West Avenue 6 and Bukit Batok West Avenue 8 are currently being put up for rent on PropertyGuru for $2,999 to $4,200 a month. Whether we’re looking at current BTO prices or future resale prices, that translates to an attractive rental yield, in my opinion.

West BrickVille @ Bukit Batok BTO Review

Personally, I am not a huge fan of West BrickVille @ Bukit Batok’s location. It is near the MRT tracks and right next door to Tengah, which is currently undergoing development, so the potential for noise pollution and dust is high.

However, there are some advantages, including the close proximity to Tengah Park MRT station and the decent selection of shopping amenities.

If you are just looking for a good investment property and plan to sell or rent right after the MOP expires, however, West BrickVille @ Bukit Batok might be a practical choice as there is a wide range of unit types on offer, it is not too expensive and could potentially offer good capital gains or a decent rental yield.

Share this article