Margaret Ville Condo Review: Quiet location in a historic housing estate on the city fringe

Margaret Ville condo aerial view. Image from Google Maps.
Margaret Ville condo aerial view. Image from Google Maps.
Share this article

Margaret Ville, a 99-year leasehold condo located on Margaret Drive in Queenstown, is an example of the type of shiny new developments that have been popping up recently on the site of the historic HDB estate.

The condo occupies a fairly convenient location in the area, 9 minutes’ walk from both Commonwealth and Queenstown MRT stations.

Launched in 2018 by MCL Land Pte Ltd, Margaret Ville consists of one 40-storey block towering over the surrounding area, offering unblocked views. The condo received its Temporary Occupation Permit (TOP) on 31 January 2021.

Margaret Ville Condo Review (Summary Table)

Margaret Ville CondoDetails
TOP Date30 January 2021
Location20 Margaret Drive Singapore 149312
Showflat-
Balance Units-
Launch Price$1,880 psf on average
Current Price$1,050,000 to $2,620,000 ($2,024 to $2,591 psf)
Total units309
Freehold/ Lease99-year leasehold
AmenitiesInfinity pool, swimming pools, gym, terrace lounge, executive club lounge, alfresco dining pavilion
MRTCommonwealth / Queenstown
Bus service51, 111, 145, 186 ,195, 195A, 970

*Information from 99.co, PropertyGuru, and other property listing websites is accurate as of time of writing.

Margaret Ville For Sale Price

At its launch in 2018, the average sale price at Margaret Ville was about $1,880 psf. The starting price for one-bedroom units was $949,000, while that for 4-bedroom units was $2,427,000.

Fast forward to today, and Margaret Ville units are being sold on 99.co for $1,050,000 to $2,620,000, or $2,024 to $2,591 psf. As you can see, buyers have already enjoyed some modest capital gains—owners who transacted in the past one year earned an average return of 1.9% to 7.1% on their investment after holding the property for an average of 4.3 years.

To get an idea of the kinds of capital gains other condos in the area have enjoyed, let’s look at Stirling Residences, a 99-year leasehold condo which obtained its TOP in 2022. According to data on PropertyGuru, Stirling Residences units are selling for $1,000,000 to $2,780,000, prices that are close to Margaret Ville’s.

Back to top

Margaret Ville condominium site plan. Image from official Margaret Ville condominium website.

Margaret Ville condominium site plan. Image from official Margaret Ville condominium website.

Margaret Ville Site Plan

You can find the Margaret Ville site plan here.

The shared facilities are quite basic, with the star of the show being the infinity pool. Other than the swimming pools, there is also a gym.

One thing to note is that the facilities are not terribly kid-friendly. There are no children’s playgrounds or tennis courts here, although there is a children’s jet pool.

Back to top

Margaret Ville condominium is an 11-minute walk from Commonwealth MRT Station, and 9 minute walk from Queenstown MRT Station. Image from Google Maps.

Margaret Ville condominium is an 11-minute walk from Commonwealth MRT Station, and 9 minute walk from Queenstown MRT Station. Image from Google Maps.

20 Margaret Drive, Margaret Ville

Located at 20 Margaret Drive, about 9 minutes’ walk from both Queenstown and Commonwealth MRT stations, Margaret Ville is located in a relatively quiet area in the neighbourhood, although that might change as more residential developments pop up.

Some key amenities located very nearby include Queenstown Public Library and Margaret Drive Hawker Centre. To be honest, the range of amenities in the immediate vicinity is nothing to write home about, but on the bright side, Margaret Ville is located less than 2 km from popular lifestyle destinations and amenities like Holland Village, Ridout Tea Garden and Queensway Shopping Centre.

There are several schools in the immediate vicinity of Margaret Ville, including Queensway Secondary School right next door. Other nearby schools include New Town Primary School and the Management Development Institute of Singapore.

I think Margaret Ville is ideal for those who are looking for a convenient city fringe location but also value tranquility and do not want to be too close to the hustle and bustle of major shopping malls and transport hubs.

Back to top

Margaret Ville Floor Plan

You can find the Margaret Ville floor plans here.

The 309 units at Margaret Ville include 1-bedroom, 2-bedroom, 3-bedroom and 4-bedroom units.

Margaret Ville condo 1 bedroom floor plan. 1 Bedroom units range from 43sqm to 53sqm. Image from official Margaret Ville condo website.

Margaret Ville condo 1 bedroom floor plan. 1 Bedroom units range from 43sqm to 53sqm. Image from official Margaret Ville condo website.

1 Bedroom Condo Floor Plan

The 1-bedroom units measure 43 sqm (463 sqft) without a study, and 49 sqm (527 sqft) with a study. In the latter, the study is sequestered in a corner of the unit, meaning that residents have to pass through the kitchen, master bathroom or front door to get to it. This is great if you prefer that the study room be isolated from the rest of the apartment, but I personally find such a layout to be a little awkward.

Margaret Ville condo 2 bedroom floor plan. 2 Bedroom units range from 61sqm to 72sqm. Image from official Margaret Ville condo website.

Margaret Ville condo 2 bedroom floor plan. 2 Bedroom units range from 61sqm to 72sqm. Image from official Margaret Ville condo website.

2 Bedroom Condo Floor Plan

The 2-bedroom units measure 61 sqm (657 sqft) to 76 sq (818 sqft) without a study, or 77sqm (829 sqft to 95 sqm (1,023 sqft) with a study. In all these units the bedrooms are placed side by side. Unlike the 1-bedroom + study units, the study room is much more accessible in the 2-bedroom units, lined up in between one of the bedrooms and the living room.

Margaret Ville condo 3 bedroom floor plan. 3 Bedroom units range from 85sqm to 106sqm. Image from official Margaret Ville condo website.

Margaret Ville condo 3 bedroom floor plan. 3 Bedroom units range from 85sqm to 106sqm. Image from official Margaret Ville condo website.

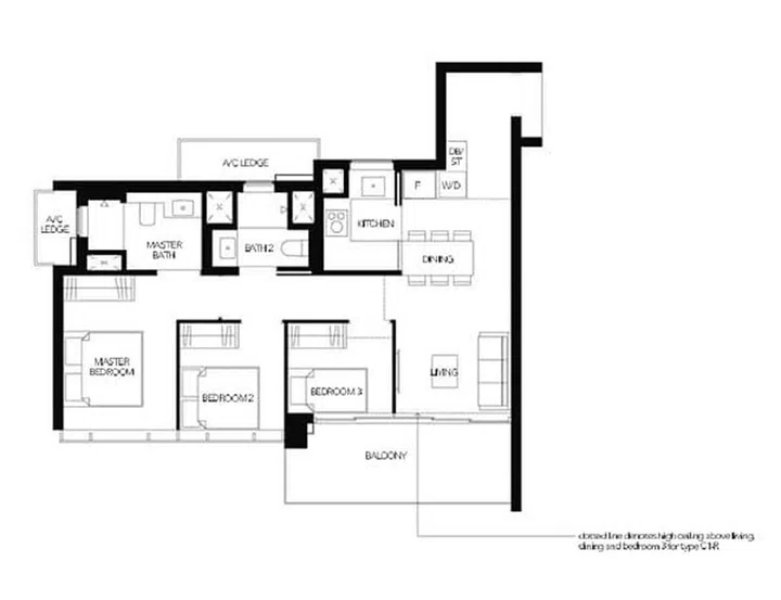
3 Bedroom Condo Floor Plan

The 3-bedroom units measure 85 sqm (915 sqft) to 106 sqm (1,141 sqft). In some of the units, the bedrooms are lined up side by side, while in others, they are a little more spread out in the layout, offering a bit more privacy.

Margaret Ville condo 4 bedroom floor plan. 4 Bedroom units range from 110sqm to 136sqm. Image from official Margaret Ville condo website.

Margaret Ville condo 4 bedroom floor plan. 4 Bedroom units range from 110sqm to 136sqm. Image from official Margaret Ville condo website.

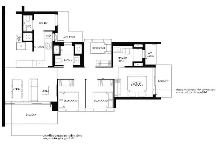
4 Bedroom Condo Floor Plan

The 4-bedroom units measure 110 sqm (1,184 sqft). The master bedroom in these units is particularly luxurious, with its own balcony and, in some units, a high ceiling to make it look more spacious.

Overall, these layouts are quite standard, other than the awkward positioning of the study in the 1-bedroom + study units. All unit layouts come with and without high ceilings over the living and dining area, so buyers will have to decide whether they are willing pay more for a more spacious and luxurious look.

Back to top

Margaret Ville condo swimming pool view. Image from the official Margaret Ville website.

Margaret Ville condo swimming pool view. Image from the official Margaret Ville website.

Margaret Ville Rent Price

Margaret Ville units are being rented out at $3,588 to $5,800 per month based on data from 99.co, with 3-bedroom units measuring 800 to 1,000 sq ft going for $4,700 to $7,000. Such units have been sold for $1,519,000 to $2,090,000.

This works out to an estimated rental yield of about 3.7% to 4.02%, which is quite good in my opinion. On the downside, the rent might not be able to fully cover home loan repayments.

Likewise, the surrounding area enjoys great rental activity, which is unsurprising due to the convenient city fringe location.

For instance, at Stirling Residences, units are going for $3,600 to $9,000 a month on PropertyGuru. 3-bedroom units measuring 764 to 979 sqft are going for $5,300 to $6,999 a month. Such units are currently selling for $2,588,600 to $2,690,000.

Those looking to rent a place at Margaret Ville will need to be willing to pay relatively high rents for the convenient city fringe location. I think the condo is ideal for affluent professionals who work in the nearby CBD, which is just a short MRT ride away.

Back to top

Showroom bedroom in Margaret Ville condominium. Image from official Margaret Ville website.

Showroom bedroom in Margaret Ville condominium. Image from official Margaret Ville website.

Margaret Ville Review

Overall, I think Margaret Ville is quite a good choice for those who are willing to pay a more for an attractive city fringe location. For example, those working in the city centre will really get to benefit from a shorter commute to work.

I am divided, however, on how suitable it is for families with children—on the one hand, there are a few schools in the immediate vicinity; on the other, there are few kid-centric amenities in the condo.

From an investment point of view, in spite of the good location, capital gains so far have been decent but not spectacular. This could be because, while the neighbourhood is near the city centre, there aren’t any really noteworthy amenities like MRT stations or major shopping malls located right next door to the condo.

Back to top

Share this article