Myra Residences Review: Potong Pasir condo on the city fringe

Myra Residences Condo Facade. Image from Myra Residences condo official website
Share this article

2024 is going to be a big year for buyers who snagged a unit at Myra Residences, a freehold condo in the Potong Pasir area that is expected to receive its Temporary Occupation Permit (TOP) on 30 November 2024.

Developed by Tiara Land Pte Ltd, the condo, located at 9 Meyappa Chettiar Road off Upper Serangoon Road, a stone’s throw from Potong Pasir MRT, enjoys an attractive location on the city fringe with good transport links and amenities.

Myra Condo Review (Summary Table)

Myra SingaporeCondo Details
TOP Date30 November 2024
Location9 Meyappa Chettiar Road Singapore 358456
Showflat1 Serangoon Link Singapore 556130
Balance Units47
Launch Price$2,000 to $2,100 psf
Current Price$1,658,000 to $2,836,000 ($2,142 to $2,486 psf)
Total units85
Freehold/ LeaseFreehold
Amenities25m lap pool, shallow play pool, hydrotherapy pool outdoor gym, hydro gym, BBQ pits, bicycle parking
MRTPotong Pasir
Bus service13, 107, 107M, 133, 142, 147, 147A, 506, 853, 853M

*Information from 99.co, Propertyguru, and other property listing websites is accurate as of time of writing.

Myra residences condo view. Image from Myra Residences official website

Myra residences condo view. Image from Myra Residences official website

Myra Price

At its launch weekend on 26 September 2020, the average price of the 17 units sold was $2,000 to $2,100 psf.

According to data on PropertyGuru, the current sale price range of units at Myra Residences is $1,658,000 to $2,836,000, at a psf price of $2,142 to $2,486. 1 to 4-bedroom units of up to 1,324 sq ft are available.

The over-$2,000 psf price is quite steep, even for this highly attractive city fringe area.

According to PropertyGuru, units at Jui Residences, a recent freehold condo from the same developer 8 minutes’ walk from Potong Pasir MRT, are being sold at prices ranging from $850,000 to $18,900,000, or $1,836 to $2,884 psf. Units of 1-3 bedrooms are available and the biggest units are 3-bedroom units of up to 1,001 sq ft.

Another freehold development on the same road as Myra Residences, Ridge Court, which has been occupied since 2003, commands a psf price of about $1,676, according to PropertyGuru.

Based on these comparisons with other condos in the area, we can see that Myra Residences units are on the pricey side, which could be due to it being an exclusive boutique residence which is very near to Potong Pasir MRT.

Back to top

Myra Brochure

The Myra Residences brochure is available here. You will be able to find out more about the condo’s design, features and amenities.

Find the Myra balance unit chart here to see which units are still available for purchase.

Back to top

Myra Location

Myra Residences enjoys an enviable location on the city fringe, just 2 minutes’ walk from Potong Pasir MRT station on the North East Line.

Near Saint Andrew's Junior

The condo is in a particularly attractive location for parents due to the high number of popular schools nearby, including Saint Andrews’s Junior and Secondary School, Maris Stella High School, Cedar Primary School, Cedar Secondary School and Peichun Public School. Stamford American International School is also located nearby, making Myra Condo ideal for expat families.

The area is also replete with established amenities, including The Poiz Centre, The Venue Shoppes, Macpherson Mall and Toa Payoh Sports Centre. In addition, the Kallang Park Connector is just a stone’s throw away, offering easy access to nature. These are big draws for those looking for a vibrant, well-connected neighbourhood not far from the city centre.

Back to top

Myra Residences condo 1 Bedroom Type A1 473 sq ft. Image from Myra Residences official website

Myra Residences condo 1 Bedroom Type A1 473 sq ft. Image from Myra Residences official website

Myra Floor Plan

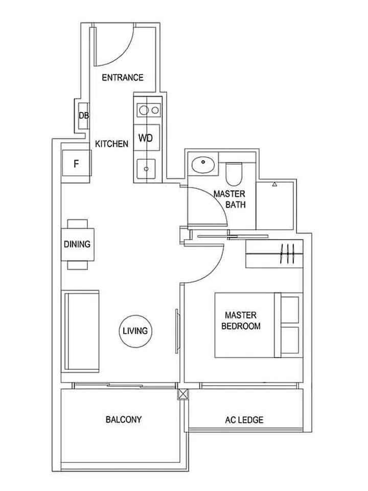
According to the floor plans for Myra Residences, the range of units on offer include 1-bedroom, 2-bedroom, 3-bedroom and 4-bedroom. The smallest 1-bedroom units are 44 sqm (474 sq ft), while the largest 4-bedroom units are 123 sqm (1,324 sq ft).

1 Bedroom condo

The one-bedroom units as well as some of the 2-bedroom units have an entrance that opens directly into the kitchen, leaving relatively little space for hallway furniture such as shoe cabinets. That said, the layout of the 1-bedroom units is highly optimised, with no space wasted on corridors.

Myra Residences condo 2 bedroom type B1 700 sq ft floor plan. Image from Myra Residences official website

Myra Residences condo 2 bedroom type B1 700 sq ft floor plan. Image from Myra Residences official website

2 and 3 Bedroom condo

When it comes to the 2- and 3-bedroom units, there are two mains types of layout available—one with the bedrooms placed side-by-side, and another with the bedrooms on opposite ends of the living room. Of these two layouts, the latter is more space-efficient as there is no corridor, allowing for a more spacious living and dining area.

Due to the differences in space-efficiency, it makes sense to check out the various layout variations to make sure you are getting the biggest bang for your buck.

Myra Residences 4 Bedroom Type D1 1,324 sq ft floor plan. Image from official Myra Residences website

Myra Residences 4 Bedroom Type D1 1,324 sq ft floor plan. Image from official Myra Residences website

4 Bedroom condo

Another thing worth noting is that the 4-room units and some of the 3-room units have a dry kitchen situated outside the regular wet kitchen, making them more attractive for those who enjoy cooking at home.

Back to top

Myra Residences condo pool view. Image from Myra Residences condo official website

Myra Residences condo pool view. Image from Myra Residences condo official website

Myra Residences Condo Rent

As Myra Residences has not yet received its TOP, none of its units have been rented out yet. Nearby freehold condo Jui Residences commands a rental price range of $3,199 to $4,200, according to data from PropertyGuru.

Given the attractive city fringe location, rents commanded by Myra Residences are likely to be relatively high as there is usually strong demand for condos close to the city centre or on the city fringe. There is likely to be interest from affluent expats, and there is also potential to rent out apartments as a shareflat to multiple tenants.

Local and expat families who wish to enrol their children in nearby schools, whether local or international, are another group of possible tenants.

Back to top

Myra Condo Review

Myra Condo’s highly attractive city fringe location and freehold status make it ideal for buyers who are wiling to pay a premium for a good location and the assurance that the property’s value will stay afloat when they pass it down to their children.

Consisting of just 85 units in one 12-storey block, the condo is a small boutique development that is ideal for those who seek exclusivity and privacy.

The presence of many popular schools in the area makes it a key draw for families with kids, while the smaller 1- and 2-bedroom units are suitable for affluent singles or couples without kids who wish to live near the city centre.

However, it is quite a pricey buy, so from an investment point of view it makes more sense for investors looking to profit mainly from capital gains rather than rental income.

Back to top

Share this article