Parc Esta Review: Eunos condo with a highly attractive city fringe location

Parc Esta Condo evening view. Image from Parc Esta Condo official website
Share this article

The East side of Singapore enjoys great popularity thanks to its reputation for being more tranquil and scenic than the bustling West side. 99-year leasehold condo Parc Esta, which received its Temporary Occupation Permit (TOP) in 2022, capitalises on that with a great location in Eunos.

Located on Sims Avenue in District 14, Parc Esta is in the heart of the Eunos area, just 5 minutes’ walk from Eunos MRT and within reach of a rich variety of amenities such as Geylang Serai Market and Food Centre and the vibrant lifestyle offerings in the Joo Chiat area.

Developed by MCL Land (Everbright) Pte Ltd, Parc Esta consists of nine 18-storey towers housing a total of about 1,399 residential and 5 commercial units, making it a very large project that is suited to those who enjoy the liveliness of communal living.

Parc Esta Review (Summary Table)

Parc EstaCondo Details
TOP Date31 Dec 2022
Location900-916 Sims Avenue
Showflat-
Balance Units-
Launch PriceFrom $698,000 (average of $1,680 psf)
Transacted Price$870,000 to $2,960,000 ($1,961-$2,545 psf)
Total units1,399
Freehold/ Lease99-year leasehold
AmenitiesSwimming pools, aqua gym, kids’ water playground, tennis court, yoga pavilion, outdoor multi gym
MRTEunos
Bus service2, 7, 13, 21, 22, 24, 26, 28, 30, 30E, 51, 60, 60A. 60T, 61, 63, 63A, 63M, 67, 76, 93, 94, 94A, 150, 154, 155

*Information from 99.co, Propertyguru, and other property listing websites is accurate as of time of writing

Parc Esta Condo developer price chart. Image from Parc Esta Condo official website

Parc Esta Condo developer price chart. Image from Parc Esta Condo official website

Parc Esta Price

At its launch weekend on 17 November 2018, 329 units at Parc Esta were snapped up at an average price of $1,680 psf, making up 73% of the 450 units put up for sale. 

According to data from PropertyGuru, Parc Esta units are currently being sold for $870,000 to $2,960,000, or $1,961 to $2,545 psf.

Due to the highly desirable location on the city fringe, the over-$2,000 psf prices are pricey but par for the course.

So, how do these prices compare to other condos in the area?

Units at Euhabitat, a 99-year leasehold condo on Jalan Eunos, are currently priced at $750,000 to $3,200,000 or $941 to $1,766 psf, according to PropertyGuru. EuHabitat received its TOP in 2016 is about 1.5 km away from Parc Esta with a less attractive location about 15 minutes walk from Ubi MRT. However, its psf price is significantly lower than Parc Esta’s.

Back to top

Parc Esta Condo Map Brochue Amenities. Image from Parc Esta Condo official website

Parc Esta Brochure

Check out the Parc Esta brochure here to learn more about the condo’s various amenities, have a look at photos of the units and examine the floor plans of the various unit types.

You can consult the Parc Esta balance unit chart here, although there are no balance units due to the popularity of the area and the fact that the development was launched five years ago.

Back to top

Parc Esta Condo location map. Image from Parc Esta Condo official website

Parc Esta Location

Parc Esta is located on major thoroughfare Sims Avenue, just 5 minutes’ walk from Eunos MRT.

City fringe condo

The area in which the condo is located is an affluent city fringe neighbourhood highly sought-after by expats and affluent locals, surrounded by popular eateries and lifestyle businesses.

Near Geylang Serai market

It is a stone’s throw from the Geylang area, with its many popular eateries and well-loved amenities like Geylang Serai Market and Food Centre. The popular Joo Chiat area, with its Peranakan heritage architecture and beloved eateries, is also located within walking distance.

Near Haig Girl's School

Families can choose from a selection of schools within walking distance, including Telok Kurau Secondary School, Haig Girls’ School and Eunos Primary School. A little further afield, residents are within 4km of elite schools like Tanjong Katong Girls’ School, Victoria School and Victoria Junior College.

Back to top

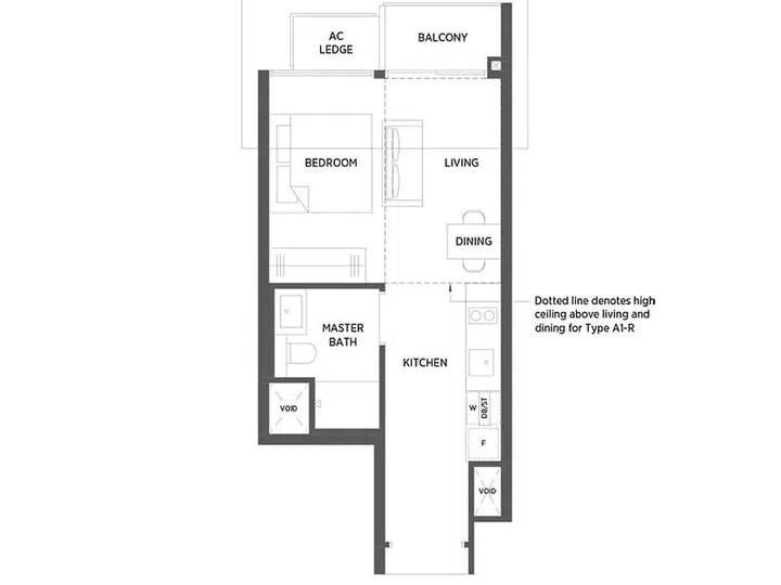
Parc Esta Condo 1 Bedroom A1. Image from Parc Esta Condo official website

Parc Esta Condo 1 Bedroom A1. Image from Parc Esta Condo official website

Parc Esta Floor Plan

Parc Esta consists of 1-bedroom, 2-bedroom, 3-bedroom, 4-bedroom and 5-bedroom units. The smallest 1-bedroom units measure 420 sq ft, while the biggest 5-bedroom units measure 1,604 sq ft. All unit types have a high ceiling above the living and dining room.

1 Bedroom condo

The 1-bedroom apartments include smaller units without a study and larger ones with a study. It should be noted that not all of the 1-bedroom unit types come with an en suite bathroom accessible from the bedroom.

Parc Esta Condo 2 bedroom Type BP1 700 sq ft. Image from Parc Esta condo official website

Parc Esta Condo 2 bedroom Type BP1 700 sq ft. Image from Parc Esta condo official website

2 Bedroom condo

The 2-bedroom unit types offer layouts with the living room in the centre of the property and the bedrooms on either side, or adjoining bedrooms with the living room on the other end. The former layout offers greater privacy.

Parc Esta Condo 3 bedroom floor plan, type C1. Image from Parc Esta condo official website

Parc Esta Condo 3 bedroom floor plan, type C1. Image from Parc Esta condo official website

3 Bedroom condo

The 3-bedroom units include regular units, larger premium units and units with a study. The premium units are slightly larger and include a larger balcony accessible not only from the living room but also one of the bedrooms, as well as an extra WC without a bath or shower.

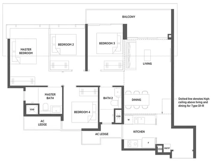
Parc Esta 4 bedroom condo floor plan, Type D1. Image from Parc Esta condo official website

Parc Esta 4 bedroom condo floor plan, Type D1. Image from Parc Esta condo official website

4 and 5 Bedroom condo

Premium 4- bedroom and 5-bedroom units come with both a wet and dry kitchen, which is always a nice touch for households who enjoy cooking In addition, 5- bedroom apartments come with a private lift for maximum luxury.

Back to top

Parc Esta Rent

According to data from PropertyGuru, Parc Esta units are currently being rented out at $1,800 to $8,388 per month.

Taking a closer look at the rental figures, 2-bedroom apartments are currently up for rent at $4,060 to $6,300. 2-bedroom units generally sell for about $1,250,000 to $1,850,000. This works out to quite an attractive rental yield.

This is great news for investors, who should have no trouble renting out their Parc Esta units to expats and affluent locals, thanks to the popularity of this highly attractive city fringe location.

Back to top

Parc Esta Review

Parc Esta is a pricey buy, but it’s worth it if you consider its excellent location on the city fringe and the attractiveness of the Eunos area. The location is almost flawless, with the nearest MRT only 5 minutes’ walk away and a rich, vibrant neighbourhood with lots of great food, amenities and culture.

The only disadvantage to some buyers will be that there are 1,399 units, making it a very large development more suited to those who don’t mind a bit less privacy.

Families with kids will also be spoilt for choice, as there is a good selection of schools within walking distance as well as elite schools a bit farther afield.

Of course, due to the city fringe location, units at Parc Esta don’t come cheap. However, investors might be comforted to know that they can still get a decent yield by renting out the units.

Back to top

Share this article