Terra Hill Condo Review: 10 Pros & cons of this Pasir Panjang freehold condo

Artist's impression of arrival hall at Terra Hill condo. Image from official Terra Hill website
Artist's impression of arrival hall at Terra Hill condo. Image from official Terra Hill website
Share this article

Terra Hill was the first condo in the Rest of Central Region (RCR) to be launched in 2023. In other words, for those who prioritise space and affordability over a central location, this was the first private condo to take note of last year.

Launched by Hoi Hup Realty and Sunway Developments, the freehold Terra Hill is located in District 5 at 18 to 22B Yew Siang Road, a stone’s throw from Kent Ridge Park and about 6 minutes’ walk from Pasir Panjang MRT on the Circle Line. It is being built on the site of the former Flynn Park condo following an en bloc sale, and will be poised to benefit from the development of the Greater Southern Waterfront.

Terra Hill sold 102 of its 270 units over the launch weekend beginning on 25 February 2023. When completed, it will consist of nine 5-storey blocks. The condo’s Temporary Occupation Permit (TOP) is expected on 31 August 2026.

Terra Hill Condo Review (Summary Table)

Terra Hill SingaporeCondo Details
TOP Date31 August 2026
Location18 to 22B Yew Siang Road
Showflat18 Yew Siang Road
Balance Units161
Launch PriceOver $2,650 psf on average
Current Price$1,420,000 to $8,779,000 ($1,795 psf to $3,102 psf)
Total units270
Freehold/ LeaseFreehold
AmenitiesSwimming pools, gym, barbecue pits, teppanyaki, basketball hoop, mini golf, 
MRTPasir Panjang MRT Station
Bus service10, 30, 30E, 51, 143, 175, 176, 188, 188E

*Information from 99.co, Propertyguru, and other property listing websites is accurate as of time of writing.

Artist's impression of Terra Hill condo entrance. Image from official Terra Hill website

Artist's impression of Terra Hill condo entrance. Image from official Terra Hill website

Terra Hill Price

At its launch weekend on 25 to 26 February 2023, Terra Hill units were priced at an average of over $2,650 psf.

According to data on PropertyGuru, Terra Hill units are currently being resold for $1,420,000 to $8,779,000 ($1,795 psf to $3,102 psf). As the launch took place just last year, there has not been very much time to gauge capital gains.

Personally, I find this price to be a little steep for an RCR property. It’s probably going to be out of reach for those who are just looking for a starter condo in a suburban area.

To get an idea of the kinds of capital gains Terra Hill would have enjoyed over the last few years if it had already been built, we can look at another freehold condo in the Pasir Panjang area, 24 One Residences, located on Pasir Panjang Road 2 minutes’ walk from Haw Par Villa MRT station.

24 One Residences

Units at 24 One Residences are currently selling for $1,680,000 to $2,399,000, or $1,827 to $2,079 psf. The condo has enjoyed annualised capital gains over 8 years of about 4%, which is quite attractive.

Terra Hill is in a good position to benefit from the development of the Greater Southern Waterfront area, which stretches from Pasir Panjang to Marina East and is being developed into a scenic and residential area. This could give capital gains an added boost in the coming years.

Back to top

Artist's impression of a cross-section view of Terra Hill condo showing the basement carparks. Image from official Terra Hill website

Artist's impression of a cross-section view of Terra Hill condo showing the basement carparks. Image from official Terra Hill website

Terra Hill Brochure

You can find the Terra Hill brochure here. The brochure contains information about the area surrounding the condo, as well as the condo’s communal spaces and amenities.

You can find the Terra Hill balance unit chart here. This chart indicates the units that are still available for purchase from the developer. At present, about 40% of the units have been sold.

Back to top

Terra Hill condo is a 6 minute walk from Pasir Panjang MRT Station. Screengrab from Google Maps

Terra Hill condo is a 6 minute walk from Pasir Panjang MRT Station. Screengrab from Google Maps

Terra Hill Location

Terra Hill is located at 18 to 22B Yew Siang Road, about 6 minutes’ walk from Pasir Panjang MRT station. Travelling to the city centre is quick and easy thanks to the proximity of the West Coast Highway.

The condo enjoys abundant access to parks and nature, as it is just a stone’s throw from the sprawling Kent Ridge Park, home to attractions such as Reflections at Bukit Chandu, a 280 m-long canopy walk. It is also located close to HortPark and Southern Ridges, as well as Labrador Nature Reserve, which enjoys scenic waterfront views.

Pasir Panjang tends to be popular amongst those who work at the National University of Singapore, which is just two stops away from Pasir Panjang MRT station on the Circle Line. It is also near offices in the Alexandra area, including Mapleptree Business City and Alexandra Technopark.

The area also suffers from no shortage of popular food, shopping and entertainment options, with Pasir Panjang Food Centre and the eateries on West Coast highway located nearby, and Gillman Barracks, VivoCity and Resorts World Sentosa a short ride away.

One area that is a bit lacking is the availability of primary and secondary schools within walking distance. Students may have to accept making a commute to other neighbourhoods such as Telok Blangah or West Coast.

Back to top

Artist's impression of the swimming pool at Terra Hill condo. Image from official Terra Hill website

Artist's impression of the swimming pool at Terra Hill condo. Image from official Terra Hill website

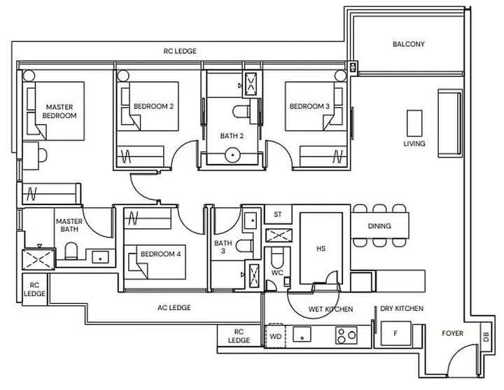
Terra Hill Floor Plan

Terra Hill consists of 270 2-bedroom, 3-bedroom, 4-bedroom and 5-bedroom apartments.

Terra Hill floor plan for a 2 bedroom type B1 unit spanning 58 sqm or 624 sq ft. Image from official Terra Hill website

Terra Hill floor plan for a 2 bedroom type B1 unit spanning 58 sqm or 624 sq ft. Image from official Terra Hill website

2 Bedroom

The 2-bedroom units measure 624 to 840 sqft (58 sqm to 78sqm). All the layouts place the living room and dining room in the middle, separating the two bedrooms. I think this is great for those who need more privacy, and can also be suitable for those who wish to rent out one or more of the rooms in the apartment, as the two bedrooms will be further away from each other, minimising disturbances.

Terra Hill 3 bedroom type C1 floor plan spanning 84 sqm or 904 sq ft. Image from official Terra Hill website

Terra Hill 3 bedroom type C1 floor plan spanning 84 sqm or 904 sq ft. Image from official Terra Hill website

3 Bedroom

The 3-bedroom units measure 904 to 1,335 sqft (84 sqm to 124 sqm). Buyers can choose between layouts which place the living room and dining area at the center of the apartment, and those with the living room and dining area on one end and the bedrooms clustered on the other end. The three-bedroom penthouse layouts consist of two storeys, with the master bedroom and master bathroom on the higher floor. Personally, I like the idea of having these smaller 3-bedroom penthouse units, as it enables smaller households to enjoy an added touch of luxury.

Terra Hill 4 bedroom type D1 floor plan spanning 121 sqm or 1,302 sq ft. Image from official Terra Hill website

Terra Hill 4 bedroom type D1 floor plan spanning 121 sqm or 1,302 sq ft. Image from official Terra Hill website

4 Bedroom

The 4-bedroom units measure 1,302 sqft to 1,894 sqft (121 sqm to 176 sqm). They consist of single-storey layouts with the living room located on one end and the bedrooms clustered on the other, and two-storey penthouse layouts with two bedrooms located on the upper floor. Some of the layouts include a study as well as a walk-in wardrobe for the master bedroom. There is also one premium layout with a private lift lobby and powder room.

5 Bedroom Penthouse

The luxurious 5-bedroom penthouse units measure 2,120 to 2,164 sqft (197 sqm to 201 sqm). All 5-bedroom units consist of two storeys, a wet and dry kitchen and walk-in wardrobe for the master bedroom. 

Back to top

Artist's impression of aerial view of Terra Hill condo. Image from official Terra Hill website.

Artist's impression of aerial view of Terra Hill condo. Image from official Terra Hill website.

Terra Hill Rent

As Terra Hill is still under construction, none of the units are currently being put up for rent.

At nearby freehold condo 24 One Residences, 2-bedroom units measuring 484 to 624 sqft are being put up for rent at $3,900 to $4,700 a month. The rental yield for 2-bedroom apartments over the past 5 years has been 2.64% to 2.94%, according to data from PropertyGuru, which in my opinion is not spectacular.

Back to top

Terra Hill Condo Review

Terra Hill enjoys an attractive location if you like nature and want to have a wide selection of entertainment and lifestyle options nearby. It is also a convenient choice if you work at NUS or Alexandra.

The condo enjoys great connectivity thanks to the proximity of Pasir Panjang MRT and the West Coast Highway. While it is officially located in the RCR, in my opinion it enjoys the convenience of a city fringe property.

However, one of the drawbacks is that there are no schools within easy walking distance, so families with kids might have to be content with commuting to adjacent neighbourhoods.

In terms of investment, I personally think there is good potential for capital gains in the long term due to the development of the Greater Southern Waterfront.

Pros

  • 10 minutes’ walk from Pasir Panjang MRT station
  • Abundant access to parks and nature
  • Many good food options nearby
  • Many shopping malls nearby such as VivoCity
  • Lifestyle and leisure destinations such as Gillman Barracks and Sentosa nearby
  • Located not far from NUS and Alexandra business corridor
  • Stands to benefit from development of Greater Southern Waterfront
  • Good potential for capital gains

Cons

  • Lack of primary or secondary schools within easy walking distance
  • Pricey for the area

Back to top

Share this article