$199,000 Renovation Breakdown for a 3-Bedroom Condo in East Coast

Interior designer’s rendering of the living room for this 3-bedroom condominium in East Coast.
Image from akiHAUS
Share this article

This 1,550 sq ft 3-bedroom condominium in East Coast is home to a couple in their 40s and their two children—a girl and a boy aged 12 and eight respectively.

In their brief to Lawrence Puah, director of akiHAUS Design Studio, they expressed a preference for an interior that is bright, cheerful and warm. They also wanted to take advantage of the high ceiling. Of the three bedrooms, two were to be combined into one large master suite incorporating a walk-in wardrobe, and the remaining bedroom would be for the children.

The challenge was to fulfil the husband’s wish for a man cave despite all rooms being spoken for. Dating back to 1995, the unit was over two decades old when the homeowners bought it.

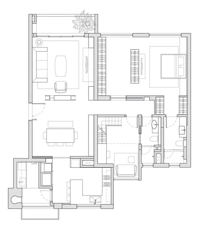
New floor plan layout for a 3-bedroom condominium in East Coast.

New floor plan layout for a 3-bedroom condominium in East Coast.

Image from akiHAUS

3-Bedroom Condo

The 3-bedroom condo unit’s high ceiling in excess of 3.2m provided an excellent opportunity to create something unique, especially with its ground floor location and with the living and dining rooms forming one rectilinear space.

These were the initial proposed interior design renderings for the living room, dining room, and kitchen. The plan was a pared back colour palette with neutrals, whites, and greys.

Interior designer’s rendering of the dining room for this 3-bedroom condominium in East Coast.

Interior designer's rendering of the dining room for this 3-bedroom condominium in East Coast.

Image from akiHAUS
Interior designer’s rendering of the kitchen for this 3-bedroom condominium in East Coast.

Interior designer's rendering of the kitchen for this 3-bedroom condominium in East Coast.

Image from akiHAUS

Pitched Ceiling Condo

Interior designer Lawrence introduced a pitched ceiling that totally transformed the spatial quality and makes the apartment feel like a landed home. The authenticity of this idea was carried through to the balcony.

The living room before renovation in a 3-bedroom condominium in East Coast.

The living room before renovation in a 3-bedroom condominium in East Coast.

Image from akiHAUS
Living room and balcony in a 3-bedroom condominium in East Coast.

Living room and balcony in a 3-bedroom condominium in East Coast.

Image from akiHAUS

Mirrors in Living Room

Without altering the condominium façade, he creatively used mirrors in the triangulated space above the balcony doors that give the illusion of transparency, as if the pitched ceiling continues to the exterior.

Dining room in a 3-bedroom condominium in East Coast.

Dining room in a 3-bedroom condominium in East Coast.

Image from akiHAUS
The dining room with view of the kitchen in a 3-bedroom condominium in East Coast.

The dining room with view of the kitchen in a 3-bedroom condominium in East Coast.

Image from akiHAUS

With no additional spare bedroom that could be used as the husband’s man cave, interior designer Lawrence designed a mobile cabinet that acts like a privacy screen between the living and dining rooms, allowing the living room to double up as a man cave. When not in use, the mobile cabinet, which is also a shoe cabinet, can be parked to one side against the dining room wall.

Back to top

Kitchen island, fridge, and a wine fridge in a 3-bedroom condo in East Coast.

Kitchen island, fridge, and a wine fridge in a 3-bedroom condo in East Coast.

Image from akiHAUS

The kitchen underwent a major reconfiguration. The kitchen space itself was expanded by removing an existing toilet and downsizing the yard and utility room. The extra space made it possible to accommodate a new peninsula island in the kitchen. Beyond just cooking and preparing food, this counter is also where the family spends their mornings over coffee, breakfast and news before heading off to work and school.

Kitchen in a 3-bedroom condo in East Coast.

Kitchen in a 3-bedroom condo in East Coast.

Image from akiHAUS
Kitchen before renovation in a 3-bedroom condo in East Coast.

Kitchen before renovation in a 3-bedroom condo in East Coast.

Image from akiHAUS

Kitchen Design

The kitchen entrance was shifted to align with the dining room. It was also widened and replaced with a frameless glass pocket sliding door to maximise the “borrowed” light from the kitchen into the dining room, which is the darkest area within the home.

Back to top

A luxurious master bathroom after renovation in a 3-bedroom condo in East Coast.

A luxurious master bathroom after renovation in a 3-bedroom condo in East Coast.

Image from akiHAUS

Master Bathroom Design

Both the common bathroom and master bathroom were extended as the original bathrooms were just too small. The extra space in the master bathroom went towards creating a larger vanity counter and shower area. It being the master bathroom, interior designer Lawrence went with a more luxurious look.

Bathroom after renovation in a 3-bedroom condo in East Coast.

Bathroom after renovation in a 3-bedroom condo in East Coast.

Image from akiHAUS

Common Bathroom Design

As the common bathroom is to be shared between the children and guests, he continued the light wood and white palette from the living spaces, but introduced smaller mosaic tiles that are more fun for the kids.

Image from akiHAUS

The enlarged common bathroom made it possible to extend the shower compartment and create recessed niches for shampoo and other shower essentials that are positioned at a child-friendly height.

The bathroom before renovation in a 3-bedroom condo in East Coast.

The bathroom before renovation in a 3-bedroom condo in East Coast.

Image from akiHAUS

The ledge for the concealed WC cistern has been cleverly disguised by building a flush mirrored cabinet above it that incorporates hidden storage behind.

Back to top

Walk-in wardrobe after renovation in a 3-bedroom condo in East Coast.

Walk-in wardrobe after renovation in a 3-bedroom condo in East Coast.

Image from akiHAUS
Master bedroom with a TV console after renovation in a 3-bedroom condo in East Coast.

Master bedroom with a TV console after renovation in a 3-bedroom condo in East Coast.

Image from akiHAUS

Master Bedroom

Apart from the usual bed and wardrobe, the couple also wanted a study desk within the master bedroom. After exploring various layouts, they finally settled on one with a long desk that extends across the window in the room.

Master bedroom after renovation in a 3-bedroom condo in East Coast.

Master bedroom after renovation in a 3-bedroom condo in East Coast.

Image from akiHAUS

This solution maximises the desk length, which can double up for both work and vanity purposes. It also ensures that the desk is well-lit without compromising on the natural light that enters the bedroom. A cabinet at one end provides a space to neatly store cosmetics, books and a mirror

Master bedroom with wardrobe before renovation in a 3-bedroom condo in East Coast.

Master bedroom with wardrobe before renovation in a 3-bedroom condo in East Coast.

Image from akiHAUS
Entrance to the master bathroom after renovation in a 3-bedroom condo in East Coast.

Entrance to the master bathroom after renovation in a 3-bedroom condo in East Coast.

Image from akiHAUS

akiHaus Review

With a background in architecture, akiHAUS approaches interior design from both stylistic and architectural perspectives. Helmed by design director Lawrence Puah, the team regards design as an ever-evolving art form and keeps an open mind towards exploring new frontiers and refining their craft.

No two projects are alike even though they share the same DNA of spatial and functional sensibilities. The award-winning studio takes great joy in collaborating with clients in exploring their aesthetic preferences to create a home that will be timeless and uniquely theirs.

Back to top

$199,000 Renovation Cost Breakdown

Here’s a breakdown of the renovation of a 3-bedroom condo unit. While such renovation price guides are helpful, here are many nuances to these figures, such as electrical works excluded air conditioner, heater, appliance installations, but included light fittings. Carpentry works, on the other hand, excludes plumbing, sanitary, but included countertop works.

KitchenLiving DiningMaster BedroomMaster BathroomCommon Bathroom
Hacking$3,600$2,700$5,700$2,100$1,800
Masonry$8,800$3,395$1,800$14,100$11,900
Flooring$9,200$1,500$2,100$2,400$2,500
Ceiling$1,300$6,100$4,500$800$650
Electricals$6,900$28,000$10,700$2,300$1,200
Carpentry$25,000$21,500$29,400$5,300$5,400

The entire table totals to a $199,195 renovation cost for this 3-bedroom condominium unit.

Back to top

Share this article