Missed the last episode? Here it is.
Episode 5: Budget and Hacking for home renovation
So after five weeks of discussions (and emails) between my interior designer and HDB, we finally got approval to proceed with the renovation works.
Sigh!
During that time, my interior designer and I also decided to work on lowering the estimated cost of the project.
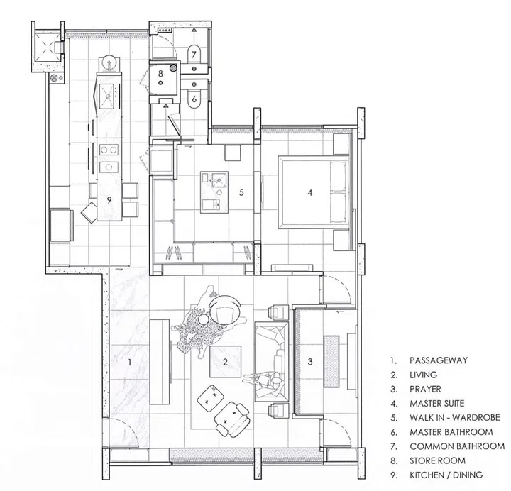
My interior designer explained that if we were to follow the original plans below, it would cost at least $200,000 to achieve the look.
The reasons for the high cost being the hacking of almost all the walls, and reconfiguring of the room layouts.
Here's a look at the original home layout we had planned.
Now I really, really love the original plan, which was provided after my consultation with my consulting designer and friend, Shukun Bu, from Architology. However, being a first-time homeowner I wanted to see how I could make it work for a lower cost of somewhere between $60K - $95K.
So after two weeks of deliberation, Alan came back to me with a revised layout based on the original. You can see it below.
Here are the major changes:
- The TV console in the main living room was moved against the wall instead of being a floating console close to the middle of the room.
- The broom storage area was taken away from the back of the kitchen.
- The wall between the prayer room and the living area is replaced with a glass wall.
- The built-in carpentry in the living area was reduced.
- Minimal works will be done to the common bathroom since it recently underwent upgrading anyway, so most of the bathroom renovation will be for the master bathroom instead.
- Only the living and kitchen floors will the tiled, while the bedroom, walk-in wardrobe area and prayer room will have vinyl flooring.
- The sliding door to the kitchen was removed.
Here, you can see a side-by-side comparison of the original and revised plans.
BEFORE
AFTER
It doesn’t look like much has changed, but we managed to push the costs down! After going through the revision, including the choice of materials, here is the revised quote from the interior design team.
Proposed Quotation
- Wetworks: $24,175
- Carpentry: $24,267
- Additional enhancements: $11,200
- Optional/Variable items (depending on the choice of materials): $16,930
Total: $76,572
I was over the moon that the figure was in the region that I hoped for, and even though I’m expecting the final bill to be slightly more than that, I think it seems a reasonable-enough sum to work with!
After we’d settled on the estimated cost, the design team proceeded with the hacking of the walls! You can find out more from the video below.

Stay tuned to find out what happens next! Click here to watch the next episode.