House Tour: A $15,000 DIY Renovation for this couple's 3-room Bidadari BTO

This resourceful couple designed and DIY-ed their home

Share this article

For most adventurous homeowners, bypassing the interior designer and designing their own home is as far as they would ever go.

So it was quite astonishing to learn of a couple that not only designed but took on the jobs of the main contractor as well — all at a measly budget of $30,000.

And mind you, this wasn't just a simple styling job, it was proper hacking of walls, and inclusive of new furniture and appliances as well.

DIY Home Renovation Cost: $15,000

Quite amazingly, the final DIY home renovation cost was just $15,000 for the whole project. The couple spent another $15,000 for furniture and appliances.

Meet Yi Ting and Wen Xiang, or, what we'd like to call the most resourceful couple in Singapore.

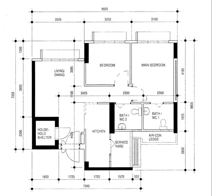
When they first received the keys for their 65 square metre BTO in Bidadari, although the space was small, they wanted to "recreate the feel of a space that is airy, bright, functional and easy to upkeep''.

They were inspired by lofts , hence the name of their lnstagram account (@thebareloft).

Stacked Homes
1/22

The couple took charge of the entire project - coordinating all the processes without having a main interior designer or contractor. And while it made their renovation journey challenging, it also helped them stay within their spending plan.

Let's take an in-depth look and tour inside to see just how they managed to pull this project off. And for those looking to take the leap to DIY the home renovation yourself, there are definitely some tips to learn from this.

 

Stacked Homes
2/22

DIY Hacking Walls
Given the size of the space, the main concern for the couple was to recreate that open, loft-like feel.

And the only way to do that was to tear everything down. " We hacked down all the dry walls in the unit, only retaining the original kitchen, service yard, and toilets;' Yi Ting said. "The house had been basically transformed into a studio '.' she added.

Stacked Homes
3/22

DIY Renovation On a Budget
For a $30k budget, the couple initially thought it would only cover the renovation and the furniture. But they were able to include expenses for appliances in the end, as Yi Ting gleefully shared.

"It was made possible as my husband self-installed a lot of things," she revealed.  "We spent $15k on renovation and 15k for furniture & electrical appliances."

The final outcome of their reno project was exactly how they envisioned them during the planning phase.  "But we did go through many rounds of alterations before deciding on the current layout," Yi Ting admitted.

Stacked Homes
4/22

Although, the lengthy planning was well worth it because their customised home now matches their lifestyle. Here's how they managed to pull off a seamless design in their home in Bidadari.

Stacked Homes
5/22

Living And Dining Room
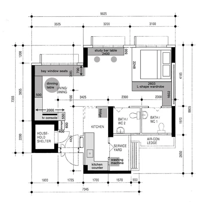
First, they removed the wall that separated one of the bedrooms from the living room, but still retained the area where the living room should be. And rather than dividing the living room space to accommodate a separate dining area, they decided to create one seamless space instead.

A living room offers several functions, from a place to relax to an area to receive and entertain guests. On the other hand, a dining room provides a comfy place to dine. Yi Ting's smart design made sure that no compromise would take place.

Instead of a traditional sofa, they built a bay window seat in the sofa's intended location to maximise the space.

Stacked Homes
6/22

Yi Ting elaborates, "It continues into an L-shape seating area which wraps around our 1 metre round dining table. This structure not only seats 6 to 7 people when needed but also provides us with ample storage space."

The L-shape seating can even extend into a U-shape to accommodate their TV console. To soften up the look and provide additional comfort, they added foldable cushioned seats and cushions to the structure.

Stacked Homes
7/22

"By building a multi-functional single structure into a small space, it occupies less space than loose furniture pieces. Plus, it helps make small spaces look bigger," Yi Ting said.

Stacked Homes
8/22

Study And Gym Room
The bedroom, which had initially been sitting between the living space and the master bedroom, is now the couple's study and gym room.

"We kept this area relatively unblocked with minimal furniture pieces so as not to break the flow of an open space," said Yi Ting.

It was indeed a great decision because aside from making the space appear larger, it also makes it clutter ­ free. Since it's where the couple will either be working out or getting busy with work, keeping it tidy makes it easier to concentrate on tasks.

Stacked Homes
9/22

And since work-related stuff and working out don't really jive well together, they made sure they could clear away their gym equipment when not in use.

Stacked Homes
10/22

Yi Ting and Wen Xiang dubbed this area 'The Gallery' but not because they have art pieces hanging on the wall. With a customised long home office table with a 2.4-metre height that goes to the base of their window, they even get to have a good view of the rooftop garden while working from home.

Stacked Homes
11/22

Bedroom
The most common issue of studio spaces is a lack of separation between the bedroom space and the living/dining areas.

Well, the couple easily hopped over these obstacles with a simple, well-thought-of design. They placed their bed on top of a built-in platform, creating a clear separation between the bedroom space and the rest of the house.

Stacked Homes
12/22

The elevation also allows them to get a clear view of the house while creating an invisible wall containing all bedroom-related stuff within.

The master bedroom is not entirely without walls, though.

 

Stacked Homes
13/22

"We have an L-shape wardrobe that divides the side of the platform from the master bathroom. The wardrobe also forms a walk-in dry area for dressing before entering the bath. We love how the bedroom turns into a cosy nook in this way," said Yi Ting.

Stacked Homes
14/22

Kitchen and Bath
Even if Yi Ting and Wen Xiang did not change the kitchen and bathroom layouts entirely, they still ensured that the interior was on par with the major changes in the house.

Compared to the colour theme in the living, study, and bedroom, Yi Ting created a contrasting effect in the kitchen. Their entire kitchen cabinet set, sourced from IKEA, is coloured black. They assembled the cabinet, installed the lighting fixtures and oven, and performed the plumbing all by themselves .

Stacked Homes
15/22

It was a monumental task that allowed them to cut down the reno cost, but the work is something they don't recommend to everyone as it was very taxing.

Another thing is that the couple only cooks simple meals, so the narrow kitchen was not a showstopper for them . However, coffee is crucial to them, so you can understand why the coffee machines were made the highlight of the room.

Stacked Homes
16/22

For the bathrooms, they didn't go through too much alteration at all, except for the new sink, a 1.3-metre tub, and 1.8-metre wood shelves. The walls, floors, and toilet bowls remained the same. To save on further unnecessary costs, they left the kitchen and bathroom tiles as they were.

Stacked Homes
17/22

Materialising The Concept and Design
Simplicity and timelessness is the most concise way that Yi Ting described their home design. "We wanted a look that could stand the test of time and did not want to follow any existing interior trends," she shared.

And even if their home only has 65 sqm of space, she and her husband wanted it to be airy, bright, functional, and easy to maintain.

And the best way to accomplish this is with a home with an open concept floor plan. "It forces us to keep things neat and uncluttered because there is really no space to hide the clutter,' she added. "We named our home 'The Bare Loft; which means an open loft with bare essentials."

The couple's home design was five years in the making. It wasn't until they started using an app for 3D home design modelling that they were able to get a clearer vision of what they wanted.

Stacked Homes
18/22

Yi Ting and Wen Xiang's vision was obviously closely matched with the outcome. But how were they able to achieve these results?

Their approach was to go hands-on in managing the project. "We did not engage a primary contractor nor an ID and chose to coordinate the process ourselves by going directly to individual service vendors."

However, the same method that helped them achieve the outcome was also the greatest challenge they had to overcome.

They had to coordinate the renovation process themselves. And that is beside the fact that the couple also had to source individual vendors for each service they required.

"It takes a lot of effort and time. In fact, we were on-site almost every day during the renovation period of 6 weeks," she remarked.

What about their furniture sourcing process?

As you may have guessed already, most of them are from IKEA, especially the basic storage units. Yi Ting shared that they looked for a modular series with dimensions that fit their home. Then, they went with it pretty much throughout the entire house for a more uniform look. Plus, the couple added customised pieces on top of the IKEA products to break the standard and common look.

For the rest, Taobao was the place of choice for affordable furniture and fittings. They found it easier to acquire similar varieties from this online shopping platform than searching locally.

Stacked Homes
19/22

DIY Makes A Big Difference
Aside from taking on the role of main contractor and interior designer, Yi Ting and Wen Xiang also chose to get their hands dirty. As you already know, they set up their kitchen all by themselves - and this helped save a lot of money.

However, their DIY adventure didn't end there. For a couple who could do plumbing work and kitchen cabinetry themselves, it wouldn't be a surprise for them to take over other do-it-yourself stuff.

For instance, Wen Xiang spent eight long hours replacing their standard front door lock with a Samsung digital lock. While it took a lot of chiselling, drilling, and filling, the effort only cost them less than $200.

It's not for everyone, that's for sure. But the sense of fulfilment can sometimes be worth the effort!

Stacked Homes
20/22

You're also probably wondering how they neatly hung the window blinds in the living room. Well, it's no surprise that it was also one of the couple's handiwork.

Even in their bedroom, Wen Xiang's DIY spirit continues to shine. He installed cove lighting on the bed platform using LED light strips. This task may sound easy on paper, but it's still hard work which includes concealing the plug at the end panel, extending a power source, and linking up the LED lights.

Stacked Homes
21/22

A Slight Oversight Is Inevitable
Yi Ting and Wen Xiang's hard work in managing the project full time paid off exceptionally well. Aside from the hurdles they jumped through in coordinating different contractors, their only slight regret was the choice of flooring material.

"We wished we opted for tiles instead of vinyl flooring. We chose vinyl over tiles because we wanted it to be cost-effective. But the feeling of vinyl under the feet just isn't too great as we do experience random slight creaking sounds when stepping on certain areas."

Stacked Homes
22/22

Lessons From A Successful RenovationJoumey
Indeed, something's got to give for such limited funding. In most cases, it would be at the expense of time and effort. And if you're someone still inexperienced in renovations, expect a lot of stress from project complications as well.

We asked Yi Ting if she had any advice for new homeowners who wanted to start their renovation journey. She emphasised the importance of spending significant time in the planning stage.

"Research is very important, and you need to understand your current lifestyle. Start by creating mood boards & collecting layout ideas;' she shared.

Getting a second and a third opinion is an excellent technique to approach any challenges from different angles. And you can easily do so by following homeowners' lnstagram accounts and asking them for advice. As Yi Ting revealed, "We do get lots of questions from our IG followers and we try to share with them what we can."



Coordinating the renovation process all by yourself - like what Yi Ting and Wen Xiang did - is a different story, though. You need some prior experience to be able to pull it off.

So, where can you get some renovation experience? Yi Ting recommends helping out in a friend's or parent's renovation works to understand the process. Also, you need to be ready to commit a lot of time and go really hands-on throughout the reno journey.

Still, if you're new to this, Yi Ting suggests seeking help from an ID or main contractor that aligns well with your goals. And we cannot agree more.



A $30K budget to open up the space of their BTO flat in Bidadari was well worth it. If you consider that it also covered the purchase of new furniture and appliances to spruce up the place, then you can even say it's money well spent.

And sometimes, it starts with just a single decision - in Yi Ting and Wen Xiang's case, it's the tearing down of walls.

"The removal of the dry walls really opened up the space for us. The original configuration of the house made the space far too crammed for us and we cannot imagine living within the tight space," Yi Ting said contently.

Share this article