35 Gilstead Condo Review: 10 Pros & cons of this freehold condo near Newton Circus

Artist's impression of the 35 Gilstead condominium aerial view façade. Image from official 35 Gilstead website
Artist's impression of the 35 Gilstead condominium aerial view façade. Image from official 35 Gilstead website
Share this article

35 Gilstead, a freehold condo located in the Newton area, offers affluent buyers the chance to live on prime land near the famous Newton Circus hawker centre, all while being a short distance from the Orchard Road shopping belt.

Launched on 30 March 2019 by TEE Forward Pte Ltd, 35 Gilstead is located in District 11 about 10 minutes’ walk from Newton MRT in a low-rise enclave located close to United Square Shopping Mall. It was expected to receive its Temporary Occupation Permit on 31 May 2024.

35 Gilstead Condo Review (Summary Table)

35 Gilstead SingaporeCondo Details
TOP Date31 May 2024
Location35 Gilstead Road
Showflat35 Gilstead Road
Balance Units-
Launch PriceAverage of about $2,550 psf
Current Price$2,499,990 to $3,928,000 ($2,317 to $2,831 psf)
Total units70
Freehold/ LeaseFreehold
AmenitiesInfinity pool, wading pool, gym
MRTNewton
Bus service5, 48, 67, 54, 124, 143, 167, 170, 960, 960E, 972M

*Information from 99.co, Propertyguru, and other property listing websites is accurate as of time of writing.

35 Gilstead Price

At its launch on 30 March 2019, 35 Gilstead units were sold at an average of about $2,550.

Right now, 35 Gilstead units are being sold on PropertyGuru for $2,499,990 to $3,928,000, or $2,317 psf to $2,831 psf.

It is perhaps too early to judge the capital gains of 35 Gilstead, but so far they do not look good. This could be due in part to the recent rafts of cooling measures which have dampened investors’ appetite.

Let’s compare this with another freehold condo within walking distance of Newton MRT, The Vermont on Cairnhill. According to data on PropertyGuru, units there are being sold for $1,390,000 to $7,500,000, which translates to a psf price of $2,638 psf to $3,214 psf.

While a little pricier than 35 Gilstead, The Vermont on Cairnhill has enjoyed 2.33% capital gains annualised over 8 years, with strong gains over the last 3 to 5 years. This could be an indication of decent long-term investment potential on the part of 35 Gilstead, too.

Back to top

35 Gilstead Brochure

You can view the 35 Gilstead Brochure here. You’ll be able to check out artists’ mock-ups of the units, discover the shared facilities on the property and have a look at the floor plans of the different unit types.

The 35 Gilstead balance unit chart can be found here. As it has been a few years since the launch of the development, all the units have been sold.

Back to top

35 Gilstead road condo is a 10 minute walk from Newton MRT Station. Screengrab from Google Maps

35 Gilstead road condo is a 10 minute walk from Newton MRT Station. Screengrab from Google Maps

35 Gilstead Location

35 Gilstead is located at 35 Gilstead Road, about 10 minutes’ walk from Newton MRT, in a quiet, low-density residential area a stone’s throw from the city core.

With the Orchard Road shopping belt less than 2 km away, the condo enjoys an extremely convenient location. The immediate vicinity also abounds with shopping and food options, including Newton Food Centre, United Square Shopping Mall, Balmoral Plaza, Velocity@ Novena and Square 2.

35 Gilstead is also located near Novena Hospital and Thomson Medical Centre, making it a practical choice for those who work in the area or require frequent medical care.

One big draw for families with kids is the proximity of numerous sought-after schools in the area, with Anglo-Chinese School (Primary) and Anglo-Chinese School (Barker Road) located less than 15 minutes’ walk away. Other nearby elite schools include Singapore Chinese Girls’ School, Saint Joseph’s Institution (Junior), Saint Joseph’s Institution, Anglo-Chinese Junior School, Catholic Junior College and the National University of Singapore Law Faculty.

Back to top

Virtual tour of the 35 Gilstead condominium showroom. Screengrab from official 35 Gilstead website

Virtual tour of the 35 Gilstead condominium showroom. Screengrab from official 35 Gilstead website

35 Gilstead Floor Plan

Units at 35 Gilstead range from 1- to 3-bedroom. A boutique development consisting of just 70 units spread out over three 5-storey blocks, it is a relatively exclusive residence for smaller households.

All units have private lift access, which offers a huge touch of luxury as these are usually reserved only for penthouses or bigger suites.

35 Gilstead road condo floor plan for Type A1 474sqft. Image from official 35 Gilstead website

35 Gilstead road condo floor plan for Type A1 474sqft. Image from official 35 Gilstead website

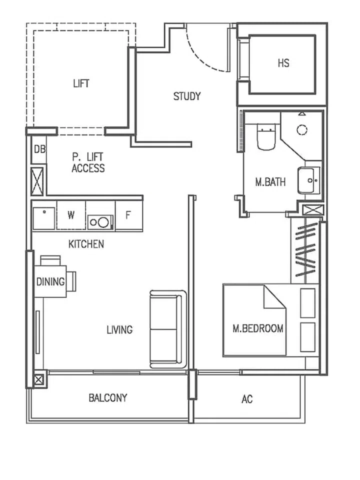
1 Bedroom

There are four 1-bedroom unit types measuring 474 sqft (44 sqm) to 710 sqft (66 sqm). Buyers can opt for units with or without a study, and there is also a 1-bedroom penthouse, which is very rare in Singapore. There is also a 1-bedroom + study unit with a powder room. I like that there is such a wide range of 1-bedroom sizes and styles. These units are perfect for singles and couples without children, who often do not have too many options when it comes to compact housing.

35 Gilstead road condo 2-bedroom floor plan Type B1 700sqft. Image from official 35 Gilstead website

35 Gilstead road condo 2-bedroom floor plan Type B1 700sqft. Image from official 35 Gilstead website

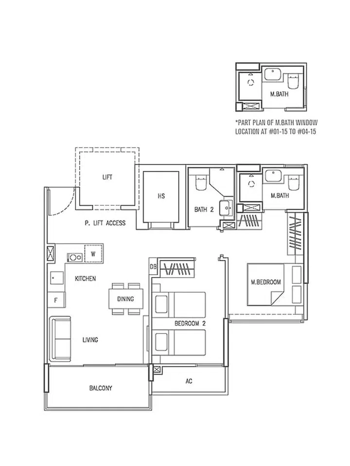
2 Bedroom

The 2-bedroom units range from 549 sqft (51 sqm) to 743 sqft (69 sqm). One of the layouts on offer is a dual-key layout, which is ideal for those who wish to earn rental income from the property.

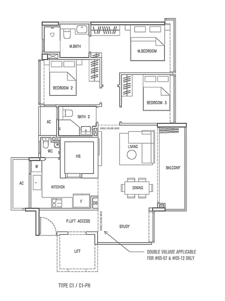
35 Gilstead 3-bedroom floor plan Type C1 1,012sqft. Image from official 35 Gilstead website

35 Gilstead 3-bedroom floor plan Type C1 1,012sqft. Image from official 35 Gilstead website

3 Bedroom

The 3-bedroom units range in size from 883 sqft (82 sqm) to 1,647 sqft (153 sqm) for the largest penthouse units. They come with or without studies, and there are also penthouse options, as well as premium penthouses with roof terrace access.

Overall, the high number of layouts and the availability of rare attributes like dual-key access make 35 Gilstead very attractive to small households looking for a unique home rather than a cookie-cutter condo unit.

However, on the downside, there are no 4- or 5-bedroom units, so large families will have to look elsewhere.

Back to top

35 Gilstead road condo site plan. Image from official 35 Gilstead website

35 Gilstead road condo site plan. Image from official 35 Gilstead website

35 Gilstead Rent

As 35 Gilstead is still under construction, none of the units are being rented out yet.

However, we can gain some insight into rents in the area by using nearby freehold condos such as The Vermont on Cairnhill as a benchmark. The Vermont on Cairnhill currently commands monthly rents of $4,880 to $10,200, with 3-bedroom units measuring 1,335 to 1,442 sqft going for $8,000 to $9,500 a month. According to PropertyGuru, it has achieved a 5-year rental yield of 3.42%, which is decent in my opinion.

Back to top

35 Gilstead road condo pavilion. Image from Google Maps

35 Gilstead road condo pavilion. Image from Google Maps

35 Gilstead Condo Review

35 Gilstead’s location is ideal for those who want peace and quiet, all while being close to the city centre. There’s a great selection of amenities, and in my opinion, the convenience of being so close to Orchard Road is a big draw. Due to its central location, it is of course priced at a premium.

One thing I like really about 35 Gilstead is the diversity of its units and the fact that it is targeted at smaller households. The 1- and 2-bedroom units enjoy a level of luxury that is rare for such small apartments, including private lift access. It’s also one of the few condos with 1-bedroom penthouses, and the dual-key 2-bedroom units are also great for renting out.

Overall, 35 Gilstead is an exciting choice if you’re looking for a luxurious smaller unit, but not so great if you need more than three bedrooms.

Pros

  • 10 minutes’ walk from Newton MRT
  • Attractive location near city centre
  • Plenty of elite schools nearby
  • Many good food options nearby including Newton Circus
  • Good selection of shopping malls nearby
  • Abundant selection of 1- to 3-bedroom unit layouts
  • Rare features such as 1-bedroom penthouses and dual-key access for certain 2-bedroom units
  • Private lift access for all units

Cons

  • Pricey
  • No 4- or 5-bedroom units

Back to top

Share this article