Kassia Condo Review: Quiet location in Changi, but far from public transport

Artist's impression of Kassia condo, aerial view.
Image Kassia Condo Official Website
Share this article

The east side of Singapore has a reputation for being more laid back than other parts, which explains its popularity with residents. Kassia Condo, a new freehold condo located on Flora Drive in the Changi area, offers the chance to truly enjoy the tranquility of the east.

Launched on 20 July 2024 by Tripartite, a joint venture company by Hong Leong Holdings Limited, City Developments Limited and TID Pte. Ltd, Kassia Condo consists of 276 1- to 4-bedroom units, spread out over four eight-storey blocks. The development’s Temporary Occupation Permit (TOP) is expected in November 2027.

During Kassia Condo’s launch weekend, 52% of the 276 units were snapped up by buyers, with prices starting from $883,000 for a one-bedroom unit. For those looking for a new launch condo to purchase or invest in, is Kassia Condo worth checking out? Let’s find out.

Artist's impression of Kassia Condo entrance foyer, drop off point.

Artist's impression of Kassia Condo entrance foyer, drop off point.

Image Kassia Condo Official Website

Kassia Condo Review (Summary Table)

Kassia CondoDetails
TOP DateNovember 2027
Location31 Flora Drive, Singapore 509904
Showflat1045 Eunos Avenue 4, Singapore 409795
Balance Units132
Launch Price$1,821 psf to $2,177 psf
Current Price-
Total units276
Freehold/ LeaseFreehold
AmenitiesVertical garden, sky leisure walk deck, swimming pools, urban farming plots, barbecue pits
MRTTampines East MRT Station
Bus service2. 2B, 4, 5, 5A, 5B, 29, 37

*Information from 99.co, PropertyGuru, and other property listing websites is accurate as of time of writing.

Artist's impression of Kassia Condo's swimming pool.

Artist's impression of Kassia Condo's swimming pool.

Image Kasia Condo Official Website

Kassia Condo Price

Kassia Condo was launched at a starting price of $883,000 for one-bedroom units measuring 473 sq ft and above. The starting price for 2-bedroom units was $1.196 million, that for 3-bedroom units was $1.659 million, while that for 4-bedroom units was $2.462 million.

The launch prices of $1,821 psf to $2,177 psf are considered competitive for a freehold property in the area.

Units at The Jovell, a 2022 condo by the same developer located next door to Kassia Condo on Flora Drive, are currently being sold for $760,000 for 1-bedroom units (measuring 441 sq ft) to $2,100,000 for 4-bedroom units (measuring 1,270 sq ft). The psf price range is $1,492.26 psf to $1,870.87 psf.

3-bedroom units measuring 904 sq ft to 1,033 sq ft are selling for $1,349,000 to $1,690,000, or $1,492.26 psf to $1,648.23 psf.

Since its launch in 2018, The Jovell has seen good price appreciation, with psf prices trending upwards. This indicates that the area has enjoyed decent capital gains over the past few years, a pattern which will benefit Kassia buyers if it continues.

Back to top

Illustration of the Kassia condo site plan.

Illustration of the Kassia condo site plan.

Image Kassia Condo Official Website

Kassia Condo Site Plan

You can find the Kassia Condo site plan here.

Kassia Condo’s amenities are quite basic, with a swimming pool and barbecue pits. There are some unusual scenic features, such as the vertical garden and sky leisure walk deck. However, some typical condo sporting amenities that are missing include tennis courts and a gym.

Back to top

Kassia Condo is a 27-minute walk, or 20-minute direct bus ride from the nearest Tampines East MRT Station.

Kassia Condo is a 27-minute walk, or 20-minute direct bus ride from the nearest Tampines East MRT Station.

Image Google Map

Kassia Condo Location

Kassia Condo is located in a residential enclave in the Changi area on Flora Drive, which is populated mainly by other condos, including its neighbours Dahlia Park Condo, The Jovell and The Inflora, all by the same developer.

Flora Park is off Upper Changi Road and Flora Road, and runs parallel to the Tampines Expressway (TPE)

For those who drive, Kassia Condo is within 10 minutes’ ride of Changi Business Park, Pasir Ris Park, Downtown East, Singapore Expo and Changi Airport, making it ideal for those who work and play in the east. The TPE and Pan Island Expressway (PIE) entrances are located nearby, which makes connectivity by car even more convenient.

However, in my opinion, those without a vehicle will find that Kassia Condo is poorly served by public transport. The nearest MRT stations, Tampines East and Pasir Ris East, are more than a 25 minute walk away, meaning that residents will probably need to take the bus there.

In addition, I don’t think there are that many shopping and dining amenities within easy walking distance of the condo.

While parents with kids might need to contend with a commute via car or public transport, there are quite a few schools located within 2 or 3km of the property, including Dunman Secondary School, Hai Sing Catholic School, Temasek Junior College, Singapore University of Design and Technology.

The condo might also be popular for Japanese owners or tenants, as The Japanese Primary School is located a stone’s throw away.

Overall, I think the location is great for those who drive and who want to live in a peaceful and tranquil area away from the hustle and bustle of the city, but is not convenient if you do not have a vehicle.

Back to top

Kassia Condo 1-bedroom Type 1A floor plan.

Kassia Condo 1-bedroom Type 1A floor plan.

Image Kassia Condo Official Website

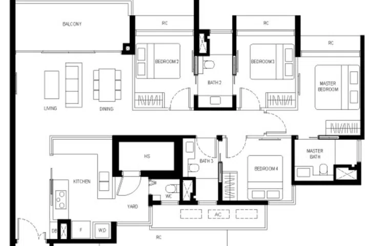
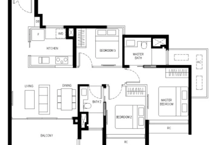
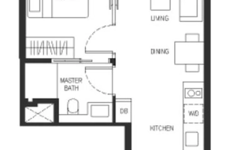
Kassia Condo Floor Plan

You can see the Kassia Condo floor plans here. Kassia Condo consists of 1- to 4-bedroom apartments. The 1-bedoom units and 2-bedroom units come with and without a study, while the 3-bedroom units come with and without a yard.

1-Bedroom

The 1-bedroom units measure 474 sq ft (44 sqm) without a study, or 549 sq ft (51 sqm) with a study. All come with a balcony. The kitchen and dining/living areas are relatively elongated, and I find that the kitchen is almost the same size as the entire dining and living area, which as a result is a bit cramped.

Kassia Condo 2-bedroom type 2a floor plan.

Kassia Condo 2-bedroom type 2a floor plan.

Image Kassia Condo Official Website

2-Bedroom

The 2-bedroom units measure 657 sq ft (61 sqm) without a study, or 753 to 775 sq ft (70 to 72 sqm) with a study. All the units without a study and some of those with a study place the living room in the centre of the layout, with the bedrooms on either side, which provides residents with greater privacy. Some of the units with studies, however, place the bedrooms next to each other. All units have either a balcony or a terrace (in the case of those on the ground floor).

Kassia Condo 3-bedroom type 3a floor plan.

Kassia Condo 3-bedroom type 3a floor plan.

Image Kassia Condo Official Website

3-Bedroom

The 3-bedroom units without a yard measure 904 to 926 sq ft (84 to 86 sqm), while those with a yard measure 1,055 sq ft (98 sqm). All layouts feature two bedrooms which share a connecting wall and one which does not, enabling one of the residents to enjoy greater privacy. There are two variations of the yard attached to the kitchen, one bigger and one smaller. All units have a balcony or terrace (for ground floor units), but the size varies depending on the layout, so you should be aware of this if having a more spacious balcony is important to you.

Kassia Condo 4-bedroom type 4a floor plan.

Kassia Condo 4-bedroom type 4a floor plan.

Image Kassia Condo Official Website

4-Bedroom

The 4-bedroom units measure 1,345 sq ft (125 sqm). They are all on the ground floor and equipped with a terrace. The kitchen is equipped with a sizeable yard. The living and dining areas are clustered on one end of the flat, with the bedrooms arranged in the other half of the layout. In my opinion, this is nice as it allows residents to entertain in the common areas without disturbing the occupants of the bedrooms.

Back to top

Artist's illustration of a waterfall within Kassia Condo.

Artist's illustration of a waterfall within Kassia Condo.

Image Kassia Condo Official Website

Kassia Condo Rent Price

As Kassia Condo will only receive its TOP in 2027, none of the units can be put up for rent yet. But we can look at neighbouring condo The Jovell to get an idea of the kinds of rents owners can expect.

3-bedroom units at The Jovell measuring 904 sq ft are currently being advertised for rent on PropertyGuru for $3,600 to $4,200, which works out to a price of about $3.98 to $4.65 psf. To be honest, the rental yield here is not that attractive in my opinion.

It is possible that the long distance to the nearest MRT station is lowering the attractiveness of the property to potential tenants. While rental condos in the area tend to be popular amongst tenants who work in the east, the lack of public transport connections cancels out the convenience factor unless the tenant owns a vehicle.

Back to top

Artist's impression of the Kassia Condo swimming pool.

Artist's impression of the Kassia Condo swimming pool.

Image Kassia Condo Official Website

Kassia Condominium Review

If you are looking for a property in a quiet residential enclave and have your own vehicle, Kassia Condo offers a certain degree of seclusion as it is located in the far east of Singapore in a relatively tranquil area. Vehicle owners enjoy easy access to amenities in the east, such as Changi Airport and Pasir Ris Park.

However, if you do not have a vehicle, Kassia Condo is not a convenient choice, as the nearest MRT station is located far away and there are not too many amenities in the immediate vicinity.

From an investment point of view, Kassia Condo is probably more attractive for capital gains than rental. The distance of the property to the nearest MRT station might be one of the reasons the rental yield is so lacklustre.

Back to top

Share this article