What is Townhouse? Townhouse vs Cluster House in Singapore

Modern cute modular private black townhouses. Residential architecture exterior
Image 123RF
Share this article

Usually, the when talking about housing types in Singapore, the three that come to mind are HDB flats, condominium apartments, and landed properties. Townhouses are rarely ever mentioned, and their elusiveness is further exacerbated because 80% of us will likely never have to consider buying a townhouse, so there's really no point in reading about it.

But if you're considering buying a condominium, or other properties within and above that tax bracket, you might want to look at townhouses as an option too. In this article I'll be breaking down what exactly is a townhouse, how they're different from condominium apartments, and why they might be a better option.

What is a townhouse?

Townhouses are hybrid developments that emulate the experience of living on landed property, but also includes shared facilities such as gyms, swimming pools, and other recreational facilities with other members of the estate. Townhouses can either be apart of a condominium estate, or a whole townhouse by themselves, and are usually multistorey houses that connect to other similar homes by a common wall similar to that of terrace housing.

These townhouses are terrace-like structures that are apart of a larger condominium estate as seen at the back.

These townhouses are terrace-like structures that are apart of a larger condominium estate as seen at the back.

Image: Edgeprop

4 Benefits of a townhouse in Singapore

For foreigners, townhouses are ideal as they are a form of 'landed' property that can be easily bought. As non-residents often need a variety of permits before buying landed property, and are a additionally to a myriad of restrictions on the property they own, it's simply too much of a hassle. Townhouses, on the other hand, are private and can be easily bought and sold, making it appealing for foreigners.

But for Singaporeans, why not just buy landed property? Well, there are many other benefits that set townhouses aside from private properties for residents too.

Townhouse estates share common facilities such as pools and recreational areas.

Townhouse estates share common facilities such as pools and recreational areas.

99.co

Shared facilities

Unlike private housing, townhouses have shared recreational facilities like pools, playgrounds, gyms, BBQ pits, et cetera. It's having the best of both worlds - the security and amenities of a condominium, but the space and privacy of a landed property.

Ease of maintenance

What's even better is that you don't have to personally maintain any of the facilities stated above. You also get to skip out on the landscaping chores a private property owner might face, and even the facade of the home is taken care of. The maintenance fee is included within the mortgage or rent, just like a condominium.

Back to top

Bishopsgate Residences Condo Floor Plan 5 Bedroom Townhouse.

Bishopsgate Residences Condo Floor Plan 5 Bedroom Townhouse.

Image NewLaunchProperties

Larger space

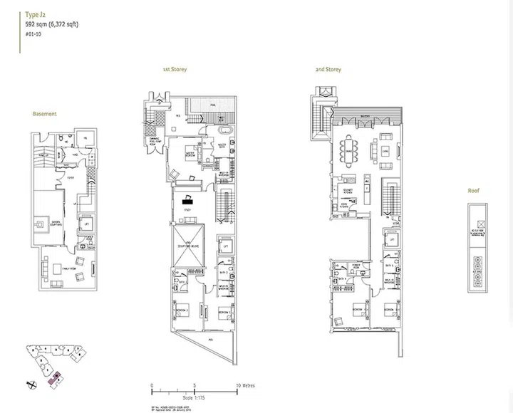
Of course, the main reason anyone would consider a private property. Townhouses are multi-storey, and can hence provide far greater space than condominiums.

A typical 3 bedroom condominium flat ranges from 1,200 sq ft to 1,500 sq ft, while a townhouse is on average above 3,000 sq ft.

Bishopsgate Residences Condo Floor Plan 4 Bedroom Family Room

Bishopsgate Residences Condo Floor Plan 4 Bedroom Family Room

Image NewLaunchProperties

The above images of the floorplan of a townhouse vs a condo apartment unit within the same Bishopsgate Residences condominium complex in the Chatsworth area shows the stark difference in floorspace between the types of houses.

Back to top

Price

I'll get into the details of pricing later, but townhouses seem to be more affordable than other forms of private property, especially when including the compounding long-term price of maintenance.

Kent Ridge Hill Residences has both condominium flats and townhouses.

Kent Ridge Hill Residences has both condominium flats and townhouses.

Image 99.co

Townhouse vs Cluster House vs Terrace House

The distinctions between these types of housing are small but prominent, and can lead to vastly different experiences for homeowners. Here's a brief overview of the variations in characteristics of townhouse vs cluster house vs terrace house, and a more in-depth explanation afterwards.

TownhouseCluster HouseTerrace HouseCondominium
Landed PropertyLanded PropertyLanded PropertyNon-Landed
Strata titleStrata titleLand titleStrata title
Shared facilitiesShared facilitiesPrivate facilitiesShared facilities
TerracedAny form of landedTerracedApartment
Anyone can buyAnyone can buyForeigners subject to approvalAnyone can buy
$1.8 to $4.81 million (average)$2.36 to $4.9 million (average)$2.5 to $5 million (average)$850k to $1.5 million (average)
$1,200 per sqft$1,200 per sqft$1,600 per sqft$1,800 per sqft

*Information is accurate as of time of writing, taken from PropertyGuru and 99.co. *Condominium rates are assumed to have 3 bedrooms

Este Villa Cluster Houses.

Este Villa Cluster Houses.

Image Property Singapore

Townhouse vs Cluster House

While both townhouses and cluster houses are groups of housing that share common recreational facilities, there's actually a pretty distinct difference.

Townhouse are properties within condominiums, whereas cluster houses are landed properties that share facilities. This means foreigners and PRs need approval from Singapore Land Authority to purchase a cluster house.

Cluster houses can also be terraced, semi-detached, or even bungalows, whereas townhouses are largely terraced houses.

Lastly, the maintenance fees for cluster homes are usually much higher than that of townhouses. As townhouses share facilities with a condominium, the cost of maintenance is spread out across more people, whereas cluster houses usually have less residents and would hence pay more per household.

Back to top

Terrace Housing along Jalan Pintau.

Terrace Housing along Jalan Pintau.

Image EdgeProp

Townhouse vs Terrace House

Townhouses are modeled like terrace houses, with at least 3 units that are side-by-side and joined by a common wall. However, terrace houses are private landed property with shared recreational facilities, and townhouses are apart of a condominium estate.

Owning a terrace home would mean taking care of all forms of maintenance independently, including facade and landscaping, whereas townhouses are maintained by the condominium management corporation. Terrace housing also has its own land title, whereas townhouses are strata titled (joint ownership of the whole plot of land).

Back to top

Jadescape condominium. Image from official Jadescape website

Exterior of Jadescape condominium.

Image Jadescape

Townhouse vs Condo

Townhouses are usually apart of condominium complexes, sharing recreational facilities, security, and management. However, townhouses are exclusively referring tot he terrace housing within condominiums, whereas condos typically refer to a flat within a block.

Townhouses have more space and privacy, and consequently comes at a higher cost.

Townhouse for sale

The listing for townhouses on sale in Singapore as of July, 2024, ranged from 30 to 50 on sites such as PropertyGuru and 99.co. This makes townhouses more elusive when compared to cluster houses, which has over 300 listings in Singapore.

Price of Townhouses Singapore

The average price of townhouses range from $1.8 to $4.81 million, and generally hovers around S$3.5 million for approximately 4000 sqft. They usually have 3 to 5 bedrooms and 3 to 5 bathrooms, and most include facilities such as pools, gyms, private parking, barbeque pits, function rooms, and security. More exclusive houses may have home lifts, jacuzzis, courtyards, and patios to name a few facilities.

Back to top

Modern residential buildings with outdoor facilities, Façade of new apartment houses.
Image 123RF

Townhouse Singapore Lease

Most freehold townhouses were built before the 1990s, and are on the more expensive end (think $5 million and up), and the more affordable townhouses are built between 2010 and 2020, but are on a 99 year leasehold. Some exceptions do pop up, such as this freehold townhouse built in 2011 or this 999-year leasehold built in 2013, but these are few and far in between.

Most of them seem to be in the central region of Singapore, strewn around Orchard, Fort Canning, Holland Road, Newton, but there are also number of listings in the periphery of Singapore, like Woodleigh, Yishun, Bedok, and West Coast.

Repeated listing I've found online (as of time of writing) include Skies Miltonia and Hillsta.

Townhouse for rent

Rent prices range from $1,500 a month for a room, up to $20,000 a month for the whole house. Most of them stay around $8,000 and slightly more to rent the house with four bed and baths, but a few of the listings were partially furnished, so you might want to check twice before moving.

Back to top

Share this article