HDB BTO 2025 Summary: February, July, October Launches

HDB’s final October 2025 BTO sales exercise closed on 22 October 2025, Wednesday.

Artist's impression of Berlayar Residences – Prime (Oct 2025 Build-To-Order).
Image HDB Portal
Share this article

The HDB October 2025 BTO sales exercise is set to be the largest and most exciting of the year, with several highly anticipated projects. This launch is unique due to the introduction of two brand-new housing estates and a high supply of flats.

Earlier in the year, the HDB BTO July 2025 sales exercise launched on 23 - 30 July with significant changes to the HDB Singles Scheme. BTO flats launched were in Alexandra, Bangkit, Clementi, Sembawang, Simei, Toa Payoh, and Woodlands. Here’s a bird’s eye view of the February, July, and October 2025 BTO sales exercises:

February 2025 BTOJuly 2025 BTOOctober 2025 BTO
Total Units~5,000~5,500~9,100
LocationsKallang/Whampoa, Queenstown, Woodlands, YishunBukit Merah, Bukit Panjang, Clementi, Sembawang, Simei, Toa Payoh, WoodlandsAng Mo Kio, Bedok, Bishan, Bukit Merah, Jurong East, Sengkang, Toa Payoh, Yishun
Key EstatesQueenstown (Plus), Kallang/Whampoa (Prime), and a new precinct in YishunProjects in Bukit Merah and Clementi (Prime) and Woodlands North (Standard)Greater Southern Waterfront (Prime/Plus) and Mount Pleasant (Prime/Plus)
Wait Time8 in 10 flats with <4 years wait time. Yishun projects had shorter wait times of just over 3 years.Some projects with shorter waiting times of under 3 years in Bukit Panjang and Sembawang.Expected to have a mix of standard and longer wait times for prime projects, which are larger in scale.
Date10-17 February23-30 July15-22 October
  1. 1. Oak Ville @ Ang Mo Kio
  2. 2. Ping Yi Court (Bedok)
  3. 3. Bishan Terraces
  4. 4. Berlayar Residences (Keppel)
  5. 5. Redhill Peaks (Bukit Merah)
  6. 6. Teban Heights
  7. 7. Fernvale Plains (Sengkang)
  8. 8. Mount Pleasant Crest
  9. 9. Chencharu Grove (Yishun)
  10. 10. Yishun Glade

There are 10 BTO locations launching in the upcoming October BTO 2025 sales exercise. They are namely: Ang Mo Kio, Bedok, Bishan, two in Bukit Merah, Jurong East, Sengkang, Toa Payoh, and two in Yishun.

  • 2 New Estates: The launch will feature the first-ever BTO projects in the new Greater Southern Waterfront (in Bukit Merah) and Mount Pleasant BTO (in Toa Payoh), which are expected to be classified as Plus or Prime projects.
  • Large Supply: With around 9,100 flats, this launch is almost as large as the combined supply from the February and July 2025 exercises.
  • Community Care Apartments (CCA): The fifth batch of Community Care Apartments will also be offered in the Sengkang project, catering to the needs of seniors.
October BTO 2025Unit TypesPrice Range
Oak Ville @ Ang Mo Kio2-Room Flexi, 3-Room, 4-Room$194,000 - $650,000
Ping Yi Court (Bedok)2-Room Flexi, 3-Room, 4-Room, 5-Room, 3Gen$201,000 - $874,000
Bishan Terraces2-Room Flexi, 3-Room, 4-Room$229,000 - $735,000
Berlayar Residences (Keppel)2-Room Flexi, 3-Room, 4-Room$218,000 - $788,000
Redhill Peaks (Bukit Merah)2-Room Flexi, 4-Room$183,000 - $778,000
Teban Heights (Jurong East)2-Room Flexi, 3-Room, 4-Room, 5-Room, 3Gen$145,000 - $738,000
Fernvale Plains (Sengkang)Community Care, 2-Room Flexi, 4-Room, 5-Room$59,000 - $617,000
Mount Pleasant Crest2-Room Flexi, 3-Room, 4-Room$209,000 - $787,000
Chencharu Grove (Yishun)2-Room Flexi, 3-Room, 4-Room, 5-Room$154,000 - $597,000
Yishun Glade2-Room Flexi, 4-Room$132,000 - $415,000

I will fill up the price range on the BTO October 2025 launch day! So bookmark this page!

Ang Mo Kio BTO October 2025 site is near Ang Mo Kio Avenue 5 and Street 81, between Anderson Serangoon Junior College and ITE College Central.

Ang Mo Kio BTO October 2025 site is near Ang Mo Kio Avenue 5 and Street 81, between Anderson Serangoon Junior College and ITE College Central.

Image HDB Portal

Oak Ville @ Ang Mo Kio

  • Address: Ang Mo Kio Avenue 5, Ang Mo Kio Street 81
  • Total Units; 1,420
  • Unit Types: 2-Room Flexi, 3-Room, 4-Room

The Oak Ville @ Ang Mo Kio October 2025 BTO site is located near Ang Mo Kio Avenue 5 and Street 81, near ITE College Central. Due to its location, it will likely be classified under the new Standard or Plus flat model, replacing the old “mature estate” system. Given its distance from the MRT station, a “Standard” classification is more probable, which means it will have a standard Minimum Occupation Period (MOP) of 5 years and no clawback of subsidies.

Also, since it’s surrounded by schools, this place may prove to be a good place for growth from a Feng Shui perspective.

There are 2 primary schools within 1km, 2 supermarkets within comfortable walking distance, and 4 food centres in the wider Ang Mo Kio region.

Back to top

I visited the Chai Chee Bedok October 2025 BTO site. The construction for the BTO estate has already started. This is an aerial view from the opposite HDB block in September 2025.

I visited the Chai Chee Bedok Ping Yi Court October 2025 BTO site. The construction for the BTO estate has already started. This is an aerial view from the opposite HDB block in September 2025.

Home & Decor

Ping Yi Court (Bedok)

  • Address: Chai Chee Drive, Chai Chee Street
  • Total Units: 862
  • Unit Types: 2-Room Flexi, 3-Room, 4-Room, 5-Room, 3Gen
  • Wait Time: 2 Years, 9 Months

The Ping Yi Court Bedok October 2025 BTO project is well-positioned in a mature estate, offering good connectivity. While it’s not directly next to an MRT station, it’s a short bus ride away from key transport hubs.

The October 2025 BTO site is located between Chai Chee Drive and Chai Chee Street.
HDB Portal

The nearest MRT stations are Kembangan MRT and Bedok MRT (East-West Line). The new estate will be served by two feeder buses - bus service 222 (which seems much more frequent for the hour I was there), and bus service 26.

By the road, I saw the Chai Chee Bedok October 2025 BTO construction site’s notice states that the building is estimated to be completed in 2029.

By the road, I saw the Chai Chee Bedok October 2025 BTO construction site's notice states that the building is estimated to be completed in 2029.

Home & Decor

I visited the Chai Chee Bedok Ping Yi Court October BTO 2025 site and here is what I think:

  • Next door HDB block 55 is really very old. At the moment, it’s quite ugly and run down to be honest. There are HDB rental blocks further down the road.
  • Good news is - the neighbouring Block 55 has got a HDB painting project going on, so it will hopefully will look nicer (see pictures below for the upgrading plans)
  • Also, there seems to be a rodent problem on this BTO side of the street (and on the opposite side of the street too). I guess it’s a given since its an old estate. Bring your cats!

As a mature estate, you’ll find a variety of retail and food options at Bedok Mall and the popular Bedok Town Centre. The neighbourhood is also known for its hawker centres, such as Bedok 85, a renowned foodie paradise. There are also supermarkets like FairPrice and Giant Express within the vicinity for daily necessities.

There is a Chinese temple nearby, a Masjid and church a bus ride away. The nearest Indian temple is, however, pretty far. And that’s shocking considering the significant Indian population here (not statistically proven, just eye power counting).

Since it’s a mature estate, the amenities are quite exactly what you’d expect from an older estate. At the void deck of Block 55 Chai Chee Drive, you will find:

  • 2 GP clinics
  • 1 Barber
  • 1 Self-service laundromat
  • 2 TCM massage shops
  • 4 Mama shops
  • 2 Non-halal food stalls
  • 2 Halal food stalls
  • 1 Fish aquarium shop

Back to top

The Bishan Terraces October 2025 BTO site is located along Bishan Street 12, next to Guangyang Secondary School.

The Bishan Terraces October 2025 BTO site is located along Bishan Street 12, next to Guangyang Secondary School.

Image HDB Portal

Bishan Terraces

  • Address: Bishan Street 12, Guangyang Secondary School
  • Total Units: 538
  • Unit Types: 2-Room Flexi, 3-Room, 4-Room

This Bishan Terraces HDB BTO project next to Guangyang Secondary School would likely be located on the former site of Guangyang Primary School in Bishan Street 12 - proposed for rezoning to a residential site in December 2023.

Bishan is a mature estate with high demand and limited new housing supply. Previous BTO projects in the area, such as Bishan Towers (August 2020) and Bishan Ridges (November 2020), have been highly anticipated and well-received.

It would be within walking distance of both Bishan MRT station (North-South and Circle Lines) and Braddell MRT station (North-South Line). The site is well-served by amenities in the mature Bishan and Toa Payoh towns, including Junction 8 shopping mall, Bishan Bus Interchange, and Bishan-Ang Mo Kio Park.

Back to top

The Keppel 2025 BTO site is located along Telok Blangah Road.

The Keppel 2025 BTO site is located along Telok Blangah Road.

HDB Portal

Berlayar Residences (Keppel)

  • Address: Telok Blangah Road
  • Total Units: 880
  • Unit Types: 2-Room Flexi, 3-Room, 4-Room

This Berlayar Residences BTO is particularly significant as it marks the first-ever HDB development in the Greater Southern Waterfront (GSW). Due to its prime location and excellent attributes, the project is classified under the Prime category, which will come with stricter conditions like a longer Minimum Occupation Period (MOP) and a subsidy recovery upon resale.

The site is highly accessible, with Telok Blangah MRT station on the Circle Line and Labrador Park MRT station within a short walking distance. Residents will be near the Southern Ridges and Labrador Nature Park, offering a connection to nature. It is also close to Vivocity and HarbourFront, providing a wide array of retail, dining, and entertainment options.

This launch is the first phase of a larger development plan for the Greater Southern Waterfront, which will eventually see the construction of about 6,000 HDB flats and 3,000 private homes in the area.

Back to top

The Redhill Peaks Bukit Merah October 2025 BTO site is located along Jalan Bukit Merah.

The Redhill Peaks Bukit Merah October 2025 BTO site is located along Jalan Bukit Merah.

HDB Portal

Redhill Peaks (Bukit Merah)

  • Address: Redhill Close and Jalan Bukit Merah
  • Total Units: 1,021
  • Unit Types: 2-Room Flexi, 4-Room

The closest landmark, Gan Eng Seng Primary School, is situated at 100 Henderson Road, in a mature estate. The Redhill Peaks BTO site would occupy the land surrounding the school, likely within walking distance of existing amenities.

As a mature estate, it is well-established with robust infrastructure, including schools, hawker centers, and community facilities. This means residents will not have to wait for amenities to be built.

It is within walking distance of Redhill MRT station, The area is also well-served by bus services.

Residents will be a short walk from the Bukit Merah Town Centre, which has a bus interchange, and several hawker centres, including the popular Bukit Merah View Market & Food Centre and Redhill Market & Food Centre. Other nearby amenities include the Alexandra Hospital, various retail shops, and supermarkets.

The most significant advantage for families is the direct proximity to Gan Eng Seng Primary School, which is a key factor for the Primary 1 registration exercise.

Back to top

The Teban Heights Jurong East October 2025 BTO launch will be located along West Coast Road and Jurong Town Hall Road.

The Teban Heights Jurong East October 2025 BTO launch will be located along West Coast Road and Jurong Town Hall Road.

Image HDB Portal

Teban Heights

  • Address: West Coast Road, Jurong Town Hall Road (Teban)
  • Total Units: 638
  • Unit Types: 2-Room Flexi, 3-Room, 4-Room, 5-Room, 3Gen

This Teban Heights BTO site is bounded by West Coast Road and Jurong Town Hall Road, across from Commonwealth Secondary School. One most significant advantage is the proximity to a future MRT station on the Jurong Region Line. This will provide seamless public transport access, connecting you to key hubs in Jurong, like Jurong East MRT station (interchange for the JRL and East-West Line), and beyond. However, as most West-siders know, Teban is quite an ‘ulu’ spot right now - not that well linked to the rest of Jurong East. But if you’re moving in 5 years later, transport options may be much more different by then.

This BTO project is near the Pandan Reservoir, which means some residents may get to enjoy unblocked views of the water, offering a sense of tranquility and an escape from the city hustle. This is a unique selling point.

This Teban Heights Jurong East BTO project is a “Standard” BTO, which means it won’t have the stricter resale conditions (e.g., a 10-year Minimum Occupation Period) associated with Prime or Plus flats .As a Standard BTO, the flats will be more affordable than those in the open market, and you will be eligible for various CPF Housing Grants (like the Enhanced CPF Housing Grant), depending on your income.

The project’s location in a mature estate and its proximity to a future MRT station make it a strong contender for future resale value. The ongoing development of Jurong East as a regional hub also contributes to its potential for appreciation.

As with the romatic dating scene - you look at what your date currently presents, or you date for potential. If you’re buying into Teban Heights, you must fall into the latter.

Back to top

The Fernvale Plains Sengkang Seletar October 2025 BTO launch will be located along Fernvale Drive, Fernvale Link, and Fernvale Street, right next to Kupang LRT Station.

The Fernvale Plains Sengkang Seletar October 2025 BTO launch will be located along Fernvale Drive, Fernvale Link, and Fernvale Street, right next to Kupang LRT Station.

Image HDB Portal

Fernvale Plains (Sengkang)

  • Address: Fernvale Drive, Fernvale Link, and Fernvale Street
  • Total Units: 1,037
  • Unit Types: 2-Room Flexi, 4-Room, 5-Room (830 units), Community Care Apartments (207 units)
  • Wait Time: 2 Years 8 Months

The most significant advantage of this Fernvale Plains site is its direct proximity to Kupang LRT Station. This means you’re just a few steps away from a mode of public transport that connects you to the rest of the Sengkang LRT loop - which links you to Sengkang MRT Station and Sengkang Bus Interchange.

The Urban Redevelopment Authority (URA) Master Plan for Sengkang indicates ongoing enhancements to public transport. The Fernvale Plains project is strategically located within Sengkang West, an area slated for further development and better connectivity, including new cycling paths and park connectors, which is a big plus for a car-lite lifestyle.

While Fernvale Plains Sengkang is a relatively new town, the Fernvale area is a mature neighbourhood with established amenities. You can expect to find a range of hawker centres, supermarkets, and neighbourhood shops within walking distance or a short LRT ride. A major anchor amenity is The Seletar Mall, which is located a short distance away.

Back to top

The Mount Pleasant Crest HDB BTO October 2025 site is located along Thomson Road, Mount Pleasant Avenue, and Old Police Academy Road.

The Mount Pleasant Crest HDB BTO October 2025 site is located along Thomson Road, Mount Pleasant Avenue, and Old Police Academy Road, next to an upcoming Mount Pleasant MRT Station.

Image HDB Portal

Mount Pleasant Crest

  • Address: Thomson Road, Mount Pleasant Avenue, and Old Police Academy Road.
  • Total Units: 1,348
  • Unit Types: 2-Room Flexi, 3-Room, 4-Room
  • Wait Time: 4 Years 11 Months
  • Category: Prime

The upcoming Mount Pleasant Crest HDB BTO project at the site of the former Old Police Academy, bounded by Thomson Road, Mount Pleasant Avenue, and Old Police Academy Road, is a unique and highly attractive location.

Condo location, HDB prices! The site is located in a highly coveted city-fringe area, bordering the mature and well-established Toa Payoh town. This means you get the convenience of a central location without the exorbitant prices of a private condominium.

Also, the upcoming Mount Pleasant MRT station on the Thomson-East Coast Line (TEL) will be right at your doorstep. The station’s opening is set to be timed to the completion of the housing developments.

You’ll have heritage conserved buildings from the Old Police Academy (OPA) in your new estate. This provides a unique historical context and a sense of place that is not typically found in new BTO projects. Some of the conserved buildings will be repurposed for community use, such as a neighbourhood police post and a heritage gallery.

Given the prime location and excellent connectivity, this Mount Pleasant Crest BTO is classified as a “Prime” BTO project. This means the flats will be priced higher than typical BTOs in non-mature estates, and will come with stricter resale conditions, such as a longer Minimum Occupation Period (MOP) (likely 10 years) and a subsidy recovery (12% clawback) upon the first resale. As a homeowner, you must be prepared for this, as it significantly impacts your ability to sell the flat in the future.

The combination of a city-fringe location, MRT access, and proximity to nature will make this BTO project extremely popular. You should expect very high application rates and strong competition for flats.

HDB has announced that this project will be one of the first to offer the “white flat” layout, which is an open-concept living and bedroom space without internal partition walls.

Back to top

The Yishun (Khatib) October 2025 BTO launch will be located along Bah Soon Pah Road, and Chencharu Link, next to Peiying Primary School.

The Yishun (Khatib) Chencharu Grove October 2025 BTO launch will be located along Bah Soon Pah Road, and Chencharu Link, next to Peiying Primary School.

Image HDB Portal

Chencharu Grove (Yishun)

  • Address: Bah Soon Pah Road, and Chencharu Link, next to Peiying Primary School
  • Total Units: 826
  • Unit Types: 2-Room Flexi, 3-Room, 4-Room, 5-Room
  • Wait Time: 2 Years, 7 Months
  • Category: Standard

The upcoming HDB BTO site in Yishun Chencharu Grove, bounded by Bah Soon Pah Road and Chencharu Link, next to Peiying Primary School. This is part of the larger Chencharu development. The site is a short bus ride or about a 10-minute walk from Khatib MRT Station on the North-South Line.

A new road, Chencharu Link, will run through the center of the estate and will be designated as a “bus-only corridor.” The highlight of the Chencharu master plan is a mixed-use integrated development that will include a new bus interchange, hawker centre, and shops.

Peiying Primary School is right next to the site, which is a major advantage for families with school-going children.

The flats in this Chencharu Grove project are likely to be classified as “Standard” flats. This means they will not come with the stricter resale conditions (like a longer MOP and subsidy clawback) associated with Prime or Plus flats, giving you more flexibility for future resale.

Back to top

The Yishun Glade October 2025 BTO will be located along Yishun Street 31 and Yishun Ring Road.

The Yishun Glade October 2025 BTO will be located along Yishun Street 31 and Yishun Ring Road.

Image HDB Portal

Yishun Glade

  • Address: Yishun Street 31 and Yishun Ring Road
  • Total Units: 569
  • Unit Types: 2-Room Flexi, 4-Room
  • Waiting Time: 2 Years 7 Months
  • Category: Standard

The Yishun Glade BTO site is located in Yishun, a mature residential town. This is a significant advantage as the area is already well-developed with a complete suite of amenities, and schools.

The Yishun Glade site is not directly next to an MRT station. The nearest MRT station, Yishun MRT on the North-South Line, is a bus ride away or a brisk walk. This may be a drawback, but it also contributes to a more affordable price point. For more extensive shopping, dining, and entertainment, Northpoint City is a short bus ride or a longer walk away.

A major draw for families is the proximity to a number of schools. The site is right next to Northland Primary School, and there are other schools like Yishun Secondary School and Northland Secondary School in the vicinity.

This Yishun Glade project is classified as a “Standard” BTO. This is good news for potential homeowners, as it means the flats will be priced more affordably than Plus or Prime flats, and there will not be any strict resale conditions like a 10-year Minimum Occupation Period (MOP) or a subsidy recovery fee upon resale.

Back to top

The BTO project, the first to be launched on the 48ha site, will have two-room flexi to four-room flats and public rental flats.

The BTO project, the first to be launched on the 48ha site, will have two-room flexi to four-room flats and public rental flats.

Image Desmond Lee/ Facebook

HDB BTO July 2025 Changes

On 20 July 2025, HDB announced 3 changes to be implemented with the July BTO sales exercise, and 2 changes from October 2025. They are namely:

  • HDB Singles Scheme (Family Care Scheme): Singles get BTO proximity priority to their parents’ house.
  • HDB Singles Scheme (Family Care Scheme): From October 2025, singles applying with parents for 2 BTO units (in same project) get priority.
  • HDB Family Care Scheme (Second-Timer Married Couples): From October 2025, 5% increase in allocation for married couples applying with parents for 2 BTO units (in the same project). Only for 3-room and up.
  • HDB Deferred Income Assessment Scheme: Only 1 of 2 applicants need to be a recent or full-time student or NSF to apply for a BTO. This means even younger couples (while serving NS) can apply for BTO.
  • HDB Fresh Start Housing Grant: Grant increased from $50,000 to $75,000 for families with children living in HDB public rental flats (applying for 2-rom flexi or 3-room BTO or SBF for the second time). This helps propel families in public rental flats to homeownership.

Zeroing in on the BTO changes for singles - this means singles applying for a BTO near their parents’ house will get higher chances.

To be exact, here’s a table showing the allocation of BTO flats for singles applying for a BTO with 4km proximity priority to their parents’ house. If you’re a single applying for BTO (with proximity access to your parents’ house), your greatest competitor will be the seniors. Married couples are welcome to apply for 2-room flexi flats too, though you don’t have to worry about them since their allocation is the smallest.

This is exciting, since the 4km proximity access priority was previously only enjoyed by married couples. You can use the HDB proximity checker to check if your parents’ house is within the 4km limit (hyperlinked).

Standard HDB BTOPlus HDB BTOPrime HDB BTO
2-Room Flexi2-Room Flexi2-Room Flexi
First-Timer Singles30%30%20%
Seniors20%20%10%
First-Timer Families5%5%3%
Second-Timer Families5%5%2%

HDB BTO July 2025

Now back to the actual July BTO launch. In July 2025, HDB is set to roll out around 5,400 new BTO flats across various areas like Bukit Merah, Bukit Panjang, Clementi, Sembawang, Tampines, Toa Payoh, and Woodlands. At the same time, they’ll also be holding a Sale of Balance Flats (SBF) exercise, putting up about 3,000 flats for grabs.

Altogether, this brings the total number of SBF units released in 2025 to roughly 8,500 – the highest since 2017, especially with 5,500 of them already offered back in February. More information on the 3,000 SBF units will be shared during the July SBF launches.

BTOHDB Flat TypesPrice
Alexandra Peaks (Prime)3-room$403,000 - $511,000
4-room$560,000 - $771,000
Alexandra Vista (Prime)2-room Flexi$205,000 - $355,000
3-room$420,000 - $518,000
4-room$547,000 - $775,000
Bangkit Breeze (Standard)2-room Flexi$149,000 - $236,000
3-room$289,000 - $367,000
4-room$362,000 - $458,000
5-room$518,000 - $599,000
Clementi Emerald (Prime)2-room Flexi$214,000 - $351,000
3-room$388,000 - $512,000
4-room$562,000 - $780,000
Sembawang Beacon (Standard)2-room Flexi$148,000 - $207,000
3-room$267,000 - $323,000
4-room$328,000 - $413,000
5-room$487,000 - $586,000
3-Gen$497,000 - $585,000
Simei Symphony (Standard)2-room Flexi$193,000 - $280,000
4-room$529,000 - $625,000
5-room$658,000 - $763,000
Toa Payoh Ascent (Prime)2-room Flexi$212,000 - $354,000
3-room$406,000 - $514,000
4-room$583,000 - $777,000
Woodlands North Grove (Standard)2-room Flexi$160,000 - $250,000
3-room$305,000 - $389,000
4-room$388,000 - $544,000
5-room$517,000 - $714,000
Artist's impression of Alexandra Peaks HDB BTO, launched in the July 2025 HDB BTO sales exercise.

Artist's impression of Alexandra Peaks HDB BTO, launched in the July 2025 HDB BTO sales exercise.

Image HDB Portal

Alexandra Peaks ($403,000 - $771,000)

  • Address: Alexandra Road and Prince Charles Crescent (Estate is existing Blocks 139 to 151 Alexandra Road)
  • 2 Blocks: 38 storey, 46 storey
  • Total Units: 498 units
  • Prime: 10-year MOP, tight resale conditions, no renting out entire flat
  • Waiting Time: 56 Months (4 years, 8 months)
  • Estimated Completion: March 2030
490 BTO units will be launched at this Alexandra Road BTO site in July 2025.

490 BTO units will be launched at this Alexandra Road BTO site in July 2025.

Image HDB
Site pan of of Alexandra Peaks HDB BTO, launched in the July 2025 HDB BTO sales exercise.

Site pan of of Alexandra Peaks HDB BTO, launched in the July 2025 HDB BTO sales exercise.

Image HDB Portal

In this Alexandra Road BTO plot of land - flanked by adjacent condominiums Tanglin View, Echelon, and Alex Residences, there will be 76 units of 3-room flats and 422 units of 4-room flats. You’ll have direct access to the Alexandra Canal and Alexandra Park Connector.

Artist's impression of Alexandra Peaks HDB BTO, launched in the July 2025 HDB BTO sales exercise.

Artist's impression of Alexandra Peaks HDB BTO, launched in the July 2025 HDB BTO sales exercise.

Image HDB Portal

This will be a BTO estate completely surrounded by the Alexandra enclave of condominiums - which will bode well for the property appreciation (but likely will make it a Prime or PLH BTO location). Take note that these 2 blocks come as an extension to the existing Alexandra Peaks HDB BTO estate that previously launched in the HDB BTO December 2023 sales launch (hyperlinked).

Artist's impression of Alexandra Peaks HDB BTO, launched in the July 2025 HDB BTO sales exercise.

Artist's impression of Alexandra Peaks HDB BTO, launched in the July 2025 HDB BTO sales exercise.

Image HDB Portal

Facilities nearby include three mosques, Chinese temples, and churches. The renovated Delta Sports Centre will be within walking distance, and schools such as Crescent Girls’ School, Queenstown Secondary School, Alexandra Priary School, and Gan Eng Seng School are within a few bus stops.

Artist's impression of Alexandra Vista HDB BTO, launched in the July 2025 HDB BTO sales exercise.

Artist's impression of Alexandra Vista HDB BTO, launched in the July 2025 HDB BTO sales exercise.

Image HDB Portal

Alexandra Vista ($205,000 - $775,000)

  • Address: Tanglin Road and Jervois Lane
  • 3 Blocks: 32 storeys
  • Total Units: 609 units
  • Prime: 10-year MOP, tight resale conditions, no renting out entire flat
  • Waiting Time: 47 Months (3 years, 11 months)
  • Estimated Completion: June 2029
Approximately 590 BTO units will be launched at the Tanglin Road (Bukit Merah) BTO site in July 2025.

Approximately 590 BTO units will be launched at the Alexandra Vista Tanglin Road (Bukit Merah) BTO site in July 2025.

Image HDB
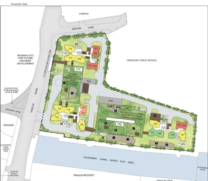
Site plan of Alexandra Vista HDB BTO, launched in the July 2025 HDB BTO sales exercise.

Site plan of Alexandra Vista HDB BTO, launched in the July 2025 HDB BTO sales exercise.

Image HDB Portal

Two streets away from the Alexandra Peaks BTO site, there will be another Alexandra Vista BTO estate directly located next to Crescent Girls’ School. This Alexandra Vista Tanglin Road BTO estate will be flanked by a church, a mosque, and the Alexandra Canal.

Artist's impression of Alexandra Vista HDB BTO, launched in the July 2025 HDB BTO sales exercise.

Artist's impression of Alexandra Vista HDB BTO, launched in the July 2025 HDB BTO sales exercise.

Image HDB Portal

At Alexandra Vista, there will be approximately 248 2-room Flexi units, 93 3-room units, and 268 4-room units. Again, you’ll have direct access to the Alexandra Canal and Alexandra Park Connector. If you’re a fan of cycling or jogging, you have easy access down Tanglin Road into the tranquil Dempsey neighbourhood as well.

Artist's impression of Bangkit Breeze HDB BTO, launched in the July 2025 HDB BTO sales exercise.

Artist's impression of Bangkit Breeze HDB BTO, launched in the July 2025 HDB BTO sales exercise.

Image HDB Portal

Bangkit Breeze ($149,000 - $599,000)

  • Address: Bukit Panjang Ring Road
  • 6 Blocks: 13 storeys
  • Total Units: 643 units
  • Standard: 5-year MOP
  • Waiting Time: 35 Months (2 years, 11 months)
  • Estimated Completion: June 2027
Approximately 620 BTO units will be launched at this Bukit Panjang Ring Road BTO site in July 2025.

Approximately 620 BTO units will be launched at this Bukit Panjang Ring Road Bangkit Breeze BTO site in July 2025.

Image HDB
Site plan of Bangkit Breeze HDB BTO, launched in the July 2025 HDB BTO sales exercise.

Site plan of Bangkit Breeze HDB BTO, launched in the July 2025 HDB BTO sales exercise.

Image HDB Portal

At Bangkit Breeze, 643 units will be launched at this Bukit Panjang Ring Road BTO site in HDB’s July 2025 sales exercise.

Artist's impression of Bangkit Breeze HDB BTO, launched in the July 2025 HDB BTO sales exercise.

Artist's impression of Bangkit Breeze HDB BTO, launched in the July 2025 HDB BTO sales exercise.

Image HDB Portal

The Bukit Panjang Ring Road Bangkit Breeze BTO site will be located right next to Beacon Primary School (which is fantastic for parents with toddlers!) and Zhenghua Nature Park. The nearest LRT station seems like it’s Bangkit LRT Station, where a neighbourhood centre is located too. You’ll also have Fajar Shopping Centre and Fajar LRT Station further down the road.

Honestly, this is a great location for families with school enrolment anxiety. Other primary schools nearby include Zhenghua Primary School, West Spring Primary School, and West View Primary School.

Artist's impression of Clementi Emerald HDB BTO, launched in the July 2025 HDB BTO sales exercise.

Artist's impression of Clementi Emerald HDB BTO, launched in the July 2025 HDB BTO sales exercise.

Image HDB Portal

Clementi Emerald ($214,000 - $780,000)

  • Address: Clementi Avenue 6, Commonwealth Avenue West, and Clementi Close
  • 4 Blocks
  • Total Units: 753 units
  • Prime: 10-year MOP, tight resale conditions, no renting out entire flat
  • Waiting Time: 34 Months (2 years, 10 months)
  • Estimated Completion: May 2027
Map showing the location of approximate 750 BTO units along Clementi Close that will launch in the July 2025 HDB sales exercise.

Map showing the location of approximate 750 BTO units along Clementi Close that will launch in the July 2025 HDB sales exercise.

Image HDB
Site plan of Clementi Emerald HDB BTO, launched in the July 2025 HDB BTO sales exercise.

Site plan of Clementi Emerald HDB BTO, launched in the July 2025 HDB BTO sales exercise.

Image HDB Portal

Clementi is a dense town, and it’s about to get even more so. Perhaps the last few plots of empty land in the vicinity, Clementi Close will soon see approximately 750 units of BTO flats launched for sale in HDB’s July 2025 sales exercise. This Clementi Close Clementi Emerald BTO estate will be located directly next to a polyclinic under construction, Clementi Primary School, and Clementi Town Secondary School. Across the road (and past the towering new condominiums), you’ll find the desirable Nan Hua Primary School. Further down the road, you’ll find Pei Tong Primary School as well.

Artist's impression of Clementi Emerald HDB BTO, launched in the July 2025 HDB BTO sales exercise.

Artist's impression of Clementi Emerald HDB BTO, launched in the July 2025 HDB BTO sales exercise.

Image HDB Portal

You’ll be a 5 to 10-minute walk to the nearest Clementi MRT Station (unsheltered pavement roads), where an adjacent new extension of the Clementi MRT Station is under construction.

However, if you drive, note that your BTO estate will lead directly down Clementi Avenue 6 into a series of ERP gantries - starting from one right at your doorstep.

The Sembawang Beacon project has a waiting time of three years.

The Sembawang Beacon project has a waiting time of three years.

Image HDB

Sembawang Beacon ($148,000 - $586,000)

  • Address: Canberra Road, Admiralty Link, and Admiralty Lane
  • 4 Blocks: 18 storeys
  • Total Units: 775 units
  • Standard: 5-year MOP
  • Waiting Time: 36 Months (3 years)
  • Estimated Completion: July 2028

Located at the junction between Admiralty Lane, Admiralty Link, and Canberra Road the Sembawang Beacon BTO site launching in July 2025 will see approximately 775 BTO units spanning 2-room Flexi, 3-room, 4-room, and 5-room flats. The BTO estate will be a 16-minute walk from the nearest Sembawang MRT Station.

Artist's impression of Sembawang Beacon HDB BTO, launched in the July 2025 HDB BTO sales exercise.

Artist's impression of Sembawang Beacon HDB BTO, launched in the July 2025 HDB BTO sales exercise.

Image HDB Portal

The Sembawang Beacon BTO will mark the first BTO blocks to be launched in the newly released Sembawang North estate which will eventually house 8,000 BTO flats and 2,000 private homes. The BTO flats here will likely fall under the Standard (5-year MOP) category.

Site plan of of Sembawang Beacon HDB BTO, launched in the July 2025 HDB BTO sales exercise.

Site plan of of Sembawang Beacon HDB BTO, launched in the July 2025 HDB BTO sales exercise.

Image HDB Portal
Located at the junction between Admiralty Lane and Admiralty Link, the Sembawang BTO site launching in July 2025 will see approximately 750 BTO units.

Located at the junction between Admiralty Lane and Admiralty Link, the Sembawang BTO site launching in July 2025 will see approximately 750 BTO units.

Image HDB

This will be a location suitable for young families for homeowners will find several primary schools nearby, namely Endeavour Primary School just next door, Canberra Primary School, Wellington Primary School, Northoaks Primary School, Sembawang Primary School, and a Rainbow Centre Admiral Hill School for special education.

Since the estate is located near the Sembawang Shipyard, there are several dormitories and hostels peppered around the district housing migrant foreign workers.

Artist's impression of Simei Symphony HDB BTO, launched in the July 2025 HDB BTO sales exercise.

Artist's impression of Simei Symphony HDB BTO, launched in the July 2025 HDB BTO sales exercise.

Image HDB Portal

Simei Symphony ($193,000 - $763,000)

  • Address: Upper Changi Road East and Simei Road
  • 4 Blocks: 11 storeys
  • Total Units: 380 units
  • Standard: 5-year MOP
  • Waiting Time: 42 Months (3 years 6 months)
  • Estimated Completion: Jan 2029

Located right next to Upper Changi MRT Station and opposite the Singapore University of Technology and Design (SUTD), the Simei Road Tampines July 2025 Simei Symphony BTO site will see 380 units go on sale.

Site plan of Simei Symphony HDB BTO, launched in the July 2025 HDB BTO sales exercise.

Site plan of Simei Symphony HDB BTO, launched in the July 2025 HDB BTO sales exercise.

Image HDB Portal
Map showing location of the Simei Road BTO (approximately 380 units) launching in the July 2025 HDB BTO sales exercise.

Map showing location of the Simei Symphony BTO (approximately 380 units) launching in the July 2025 HDB BTO sales exercise.

Image HDB

The site is located down two streets from the Changi Business Park and Expo MRT Station. Also located not too far from this Simei Symphony BTO estate is Simei MRT Station (yes, there are 3 MRT stations located around this estate!).

Artist's impression of Simei Symphony HDB BTO, launched in the July 2025 HDB BTO sales exercise.

Artist's impression of Simei Symphony HDB BTO, launched in the July 2025 HDB BTO sales exercise.

Image HDB Portal

Schools in the neighbourhood include Metta School for special education, Changkat Primary School, and Changkat Changi Secondary School. Other schools are an MRT station’s distance away - around Tampines MRT Station.

Artist's impression of Toa Payoh Ascent HDB BTO, launched in the July 2025 HDB BTO sales exercise.

Artist's impression of Toa Payoh Ascent HDB BTO, launched in the July 2025 HDB BTO sales exercise.

Image HDB Portal

Toa Payoh Ascent ($212,000 -$777,000)

  • Address: Toa Payoh Rise and Braddell Rise
  • 2 Blocks: 40 storeys
  • Total Units: 741 units
  • Prime: 10-year MOP, tight resale conditions, no renting out entire flat
  • Waiting Time: 41 Months (3 years, 5 months)
  • Estimated Completion: December 2028

Located opposite Caldecott MRT Station, the Toa Payoh July 2025 BTO site is flanked by Toa Payoh Rise and Braddell Rise. For easier navigation, it’s surrounded by Lighthouse School, Marymount Convent School, and Raffles Girl’s Secondary School.

Site plan of Toa Payoh Ascent HDB BTO, launched in the July 2025 HDB BTO sales exercise.

Site plan of Toa Payoh Ascent HDB BTO, launched in the July 2025 HDB BTO sales exercise.

Image HDB Portal
Map showing location of the Toa Payoh Rise/ Braddell Rise BTO site (approximately 720 units) launching in the July 2025 HDB BTO sales exercise.

Map showing location of the Toa Payoh Ascent BTO site (approximately 720 units) launching in the July 2025 HDB BTO sales exercise.

Image HDB

Here, you’ll have access the mature Toa Payoh estates’ food and shops located near Braddell MRT Station estate. However, if you’re familiar with this area, you’ll know that supermarkets are few and far between. You may have to travel to find a larger, more comprehensive supermarket for your weekly marketing.

Artist's impression of Toa Payoh Ascent HDB BTO, launched in the July 2025 HDB BTO sales exercise.

Artist's impression of Toa Payoh Ascent HDB BTO, launched in the July 2025 HDB BTO sales exercise.

Image HDB Portal

This is perhaps one of the few plots of available land in Toa Payoh that’s up for sale - the most recent launch being The Orie condominium.

In the future, you’ll get to enjoy the refurbished Toa Payoh integrated sports, polyclinic, and library centre that’s located next to SAFRA Toa Payoh - though it’s quite a distance away!

Artist's impression of Woodlands North Grove HDB BTO, launched in the July 2025 HDB BTO sales exercise.

Artist's impression of Woodlands North Grove HDB BTO, launched in the July 2025 HDB BTO sales exercise.

Image HDB Portal

Woodlands North Grove ($160,000 - $714,000)

  • Address: Woodlands North Road
  • 5 Blocks: 25 to 33 storeys, 1 block of rental flats
  • Total Units: 1,148 units
  • Standard: 5-year MOP
  • Waiting Time: 55 Months (4 years 5 months)
  • Estimated Completion: December 2029

JB lovers, rejoice! If you’re a fan of (or already have the lifestyle habit of) travelling into Johor Bahru to do your weekly or monthly grocery run, this July 2025 Woodlands BTO site could be ideal for you.

Located next to the Admiralty Park near the Woodlands Checkpoint, the Woodlands July 2025 BTO site will see approximately 1,130 units go on sale.

Located next to the Admiralty Park near the Woodlands Checkpoint, the Woodlands North Grove July 2025 BTO site will see approximately 1,130 units go on sale.

Image HDB
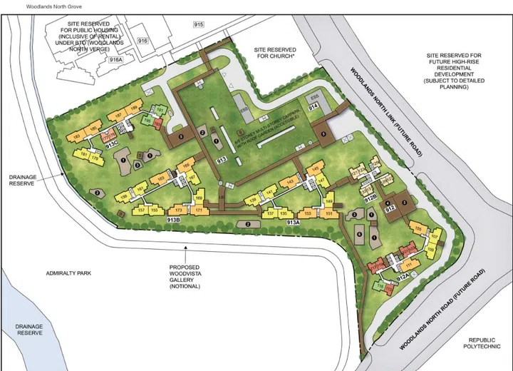
Site plan of Woodlands North Grove HDB BTO, launched in the July 2025 HDB BTO sales exercise.

Site plan of Woodlands North Grove HDB BTO, launched in the July 2025 HDB BTO sales exercise.

Image HDB Portal

Located near Admiralty Park, and a street away from Woodlands North MRT Station, this Woodlands BTO estate will see approximately 1,130 units.

Artist's impression of Woodlands North Grove HDB BTO, launched in the July 2025 HDB BTO sales exercise.

Artist's impression of Woodlands North Grove HDB BTO, launched in the July 2025 HDB BTO sales exercise.

Image HDB Portal

Primary schools in the wider Marsiling and Woodlands vicinity will include Marsiling Primary School, Qihua Primary School, Si Ling Primary School, Fuchun Primary School, Woodgrove Primary School, Innova Primary School, Evergreen Primary School, Admiralty Primary School, and Riverside Primary School - though some of them are going to be a decent bus ride away.

HDB BTO February 2025

BTOHDB Flat TypePricePrices of Resale Flats Nearby
Woodlands North Verge (Standard)2-room FlexiFrom $140,000$368,000 - $408,000
3-roomFrom $275,000$500,000 - $530,000
4-roomFrom $365,000$615,888 - $728,888
5-roomFrom $486,000$710,000 - $790,000
Yishun Chencharu Vines and Chencharu Green (Standard)2-room FlexiFrom $108,000-
3-roomFrom $245,000$470,000 - $515,888
4-roomFrom $316,000$560,000 - $638,000
5-roomFrom $447,000$705,000 - $760,000
Queenstown Stirling Horizon (Plus)2-room FlexiFrom $224,000-
3-roomFrom $408,000$600,000 - $720,000
4-roomFrom $554,000$891,000 - $1,050,000
Tanjong Rhu Parc Front (Prime)2-room FlexiFrom $211,000-
3-roomFrom $399,000$760,000 - $838,000
4-roomFrom $548,000$960,000 - $1,050,000

*Information derived from HDB Portal

HDB BTO February 2025 Application Rate

HDB BTO ProjectTotal UnitsTotal ApplicantsApplication Rate
Tanjong Rhu Parc Front (Prime)81245075.55
Queenstown Stirling Horizon (Plus)112627632.45
Woodlands North Verge (Standard)156325661.64
Yishun Chencharu Green & Chencharu Vines (Standard)1531 (total)33872.12

The most popular project for February 2025’s BTO launch was Tanjong Rhu Parc Front with 5.55 applicants vying for 1 unit.

So, how will the BTO units be allocated? All Community Care Apartments (CCAs) are reserved for seniors aged 65 and above.

For 2-room Flexi flats, 40% of the flats, or a minimum of 100 flats per BTO project, will be allocated to seniors. The remaining 60% is set aside for non-seniors and, when adjusted to 100%, is distributed as follows: 20% for first-time families, 65% for first-time singles, and 15% for second-time families.

For 3-room and larger BTO flats, the allocation varies based on the type of BTO flat. For standard flats, first-time families receive 85% of 3-room flats and 95% of 4-room and larger flats, while second-time families are allocated 15% of 3-room flats and 5% of 4-room and larger flats. For Plus and Prime flats, first-time families receive 95% of all 3-room and larger flats, with the remaining 5% allocated to second-time families.

Artist impression of Woodlands North Verge BTO flats.

Artist impression of Woodlands North Verge BTO flats.

HDB

Woodlands North Verge HDB BTO (Standard)

Called Woodlands North Verge, this project comprises a total of 1,563 units. These include 335 2-room Flexi, 85 3-room, 608 4-room, and 535 5-room units, spread across 6 residential blocks ranging from 27 to 35 storeys high.

Major developments will take place over the next few years to cater to the new HDB BTO estate, and the substantial increase in foot traffic expected with the introduction of the RTS Link.

Woodlands RTS Link

The Rapid Transit System (RTS) Link is a cross-border rail project connecting Woodlands North in Singapore to Bukit Chagar in Johor Bahru, Malaysia. Once completed, it will provide a seamless and efficient transport link between the two countries, significantly reducing congestion at the Causeway. The RTS Link is expected to be operational by end 2026.  The Singapore terminus at Woodlands North will be linked to the Thomson-East Coast MRT Line (TEL), allowing easy connectivity to the rest of Singapore.

Woodlands North Verge HDB BTO is a 6-minute walk from the nearest Woodlands North MRT Station.

Woodlands North Verge HDB BTO is a 6-minute walk from the nearest Woodlands North MRT Station.

Image Google Map

The nearest MRT station is Woodlands North MRT, located a 6-minute walk away. As the terminus of the Thomson-East Coast Line (TEL), it provides direct connections to key destinations such as Orchard, Marina Bay, and Marine Parade. The next station, Woodlands, serves as an interchange with the North-South Line, offering further connectivity across Singapore.

Currently, only bus service 856 operates in the area, but additional bus routes are expected to be introduced in the future to enhance transport options.

The Woodlands North Verge BTO launch in February 2025 marks the first release of HDB flats in the new Woodlands North Coast estate.

Schools nearby include Fuchun Primary School, Fuchun Secondary School, Singapore American School, Marsiling Secondary School, and Woodlands Secondary School. Other amenities and facilities nearby include Woodlands Sports Centre, Woodlands Community Club, Marsiling Park Connector, Woodlands Sports Centre, and Causeway Point shopping mall.

Artist impression of Chencharu Vines BTO flats.

Artist impression of Chencharu Vines BTO flats.

HDB

Yishun Chencharu Vines and Chencharu Green HDB BTO (Standard)

The first BTO project in Chencharu was launched in June 2024. Chencharu Vines and Chencharu Green comes as the second and third BTO estates to launch in this new Yishun residential district.

Schools in the area include Naval Base Secondary School, Peiying Primary School, Yishun Secondary School, Yishun Innova Junior College (Holding), Chung Cheng High School (Yishun), Naval Base Primary School, Orchid Park Secondary School, and Northland Primary School.

Amenities nearby include Yishun Swimming Complex, Sembawang Country Club Golf Course, Yishun Sports Hall, Yishun Stadium, preschool, Residents’ Network Centre, and the Khatib Polyclinic.

Categorised by HDB as Standard flats, both Chencharu Green and Chencharu Vines BTO flats have a 5-year Minimum Occupation Period (MOP) and the least stringent resale conditions.

Yishun Chencharu Vines HDB BTO is a 19-minute walk to the nearest Khatib MRT Station.

Yishun Chencharu Vines HDB BTO is a 19-minute walk to the nearest Khatib MRT Station.

Image Google Map

Chencharu Vines BTO

Chencharu Vines is situated between Sembawang Road and Bah Soon Pah Road. This Yishun BTO development, part of the February 2025 launch, offers 848 units for sale across 7 blocks ranging from 13 to 14 storeys. It will feature a supermarket, a preschool, and a residents’ network centre. (Chencharu Green, by comparison, has a total of 683 units across 6 residential blocks of 15 storeys.)

Chencharu Vines is located further from the nearest Khatib MRT Station. Google Map recommends a 19-minute walk to the MRT Station. However, when both estates are built, you can probably walk through the adjacent HDB estates to Khatib MRT Station in shorter time.

Artist's impression of Yishun Chencharu Green HDB BTO, launched in the February 2025 sales exercise.

Artist's impression of Yishun Chencharu Green HDB BTO, launched in the February 2025 sales exercise.

Image HDB

Chencharu Green BTO

Chencharu Green is located between Chencharu Link, Bah Soon Pah Close, and Bah Soon Pah Road. The estate consists of 683 BTO flats, spread across 4 residential blocks, each 15 storeys high. It’s a smaller estate than Chencharu Vines.

Yishun Chencharu Green HDB BTO is a short walk to the nearest Khatib MRT Station if you were to walk through the neighbouring HDB estates.

Yishun Chencharu Green HDB BTO is a short walk to the nearest Khatib MRT Station if you were to walk through the neighbouring HDB estates.

Image Google Map

Chencharu Green sits closer to the nearest Khatib MRT Station (than its neighbouring Chencharu Vines). Although Google Map currently suggests a long 30-minute odd walk to the MRT Station, you can probably try to walk across the HDB blocks to reach Khatib MRT Station directly when the estate is properly built up.

Artist's impression of the Queenstown Stirling Horizon HDB BTO estate, launched in the February 2025 sales exercise.

Artist's impression of the Queenstown Stirling Horizon HDB BTO estate, launched in the February 2025 sales exercise.

HDB

Queenstown Stirling Horizon HDB BTO (Plus)

Located centrally in the attractive Queenstown neighbourhood, the Stirling Horizon HDB BTO is classified under HDB’s Plus category - meaning it will come with a 10-year Minimum Occupation Period (MOP), and tighter resale conditions when you can eventually sell it.

Located between Queensway Road and Mei Chin Road, the Stirling Horizon HDB BTO estate comes with 1,126 units ranging from 2-room Flexi, 3-room, and 4-room units. The project will consist of 3 residential blocks, ranging from 35 to 47 storeys. Take note that one of these blocks was designated for 12 HDB rental units.

Queenstown Stirling Horizon HDB BTO is an 11-minute walk to the nearest Queenstown MRT Station.

Queenstown Stirling Horizon HDB BTO is an 11-minute walk to the nearest Queenstown MRT Station.

Image Google Map

Schools nearby include MDIS, Tanglin Trust School, Queensway Secondary School, Queenstown Secondary School, Queenstown Primary School, Bukit Merah Secondary School, Gan Eng Seng Primary School, New Town Primary School, and Crescent Girls’ School.

The parcel of land (bottom left) bordered by Queensway Road and Mei Chin Road in which the Stirling Horizon BTO will be built on, pictured on Feb 10, 2025. This is part of HDB?s BTO launch in February where they will be an offer of about 5,000 BTO flats in Kallang/Whampoa, Queenstown, Woodlands and Yishun.

The parcel of land (bottom left) bordered by Queensway Road and Mei Chin Road in which the Stirling Horizon BTO will be built on, pictured on Feb 10, 2025. This is part of HDB?s BTO launch in February where they will be an offer of about 5,000 BTO flats in Kallang/Whampoa, Queenstown, Woodlands and Yishun.

Image The Straits Times

Since this BTO project sits in an existing mature (and pretty old!) estate, you’ll have access to amenities and facilities such as Mei Ling Market and Food Centre, Alexandra Village, ABC Brickworks Market, IKEA Alexandra, Alexandra-Queensway Park Connector, Alexandra Hospital, Queenstown Polyclinic, Alexandra Central, Anchorpoint Shopping Centre, Queensway Shopping Centre, and an upcoming QMall.

The most popular units were the four-room flats at Tanjong Rhu Parc Front, which had more than three first-time applicants vying for each of the 464 units. Bounded by the existing Tanjong Rhu Road, KPE, and ECP expressways, Tanjong Rhu Parc Front will have a total of 812 BTO flats across 3 residential blocks. 

The most popular units were the four-room flats at Tanjong Rhu Parc Front, which had more than three first-time applicants vying for each of the 464 units. Bounded by the existing Tanjong Rhu Road, KPE, and ECP expressways, Tanjong Rhu Parc Front will have a total of 812 BTO flats across 3 residential blocks. 

HDB

Tanjong Rhu Parc Front HDB BTO (Prime)

The Tanjong Rhu Parc Front BTO estate - classified under the Kallang/ Whampoa district - is bordered by Tanjong Rhu Road, the Marina Coastal Expressway (MCE), and the East Coast Parkway (ECP). It is categorised as a Prime HDB flat (previously known as Prime Location Housing, or ‘PLH’), so residents will have a 10-year Minimum Occupation Period, and stricter resale conditions if they should sell their unit in the open market afterwards.

Amenities nearby include Singapore Sports Hub, Leisure Park Kallang, Kallang Wave Mall Kallang Squash & Tennis Centre, Kallang Netball Centre, Kallang Football Hub. There is, unfortunately, only one school in close proximity - Dunman High School.

Tanjong Rhu Parc Front HDB BTO is a 9-minute walk from the nearest Tanjong Rhu MRT Station.

Tanjong Rhu Parc Front HDB BTO is a 9-minute walk from the nearest Tanjong Rhu MRT Station.

Image Google Map

The closest MRT station is Tanjong Rhu MRT Station (9-minute walk), followed by Stadium MRT Station (16-minute walk across the Tanjong Rhu Bridge).

Share this article